走南闯北老了还是要回到家乡,只有家乡才是真正的家,有钱了就应该建一套好别墅在家乡好好长长脸,人活一口气,有实力别人才会高看你一眼。今天给大家推荐的是一款="://www.lemeizhai.com/Picture.asp?PicClassID=91" target="_self">三层新中式别墅设计,这房子有一种儿时老房子的味道,很有童年回忆的感觉。
效果图:



别墅层数: 三层
别墅风格: 中式
占地面积:203㎡
开 间:11.3m
进 深:18m
建筑占地:11.3m×18m
建筑面积:409㎡
主体造价:57.0~62.0万
建筑结构:框架结构
效果图:


主体设计:

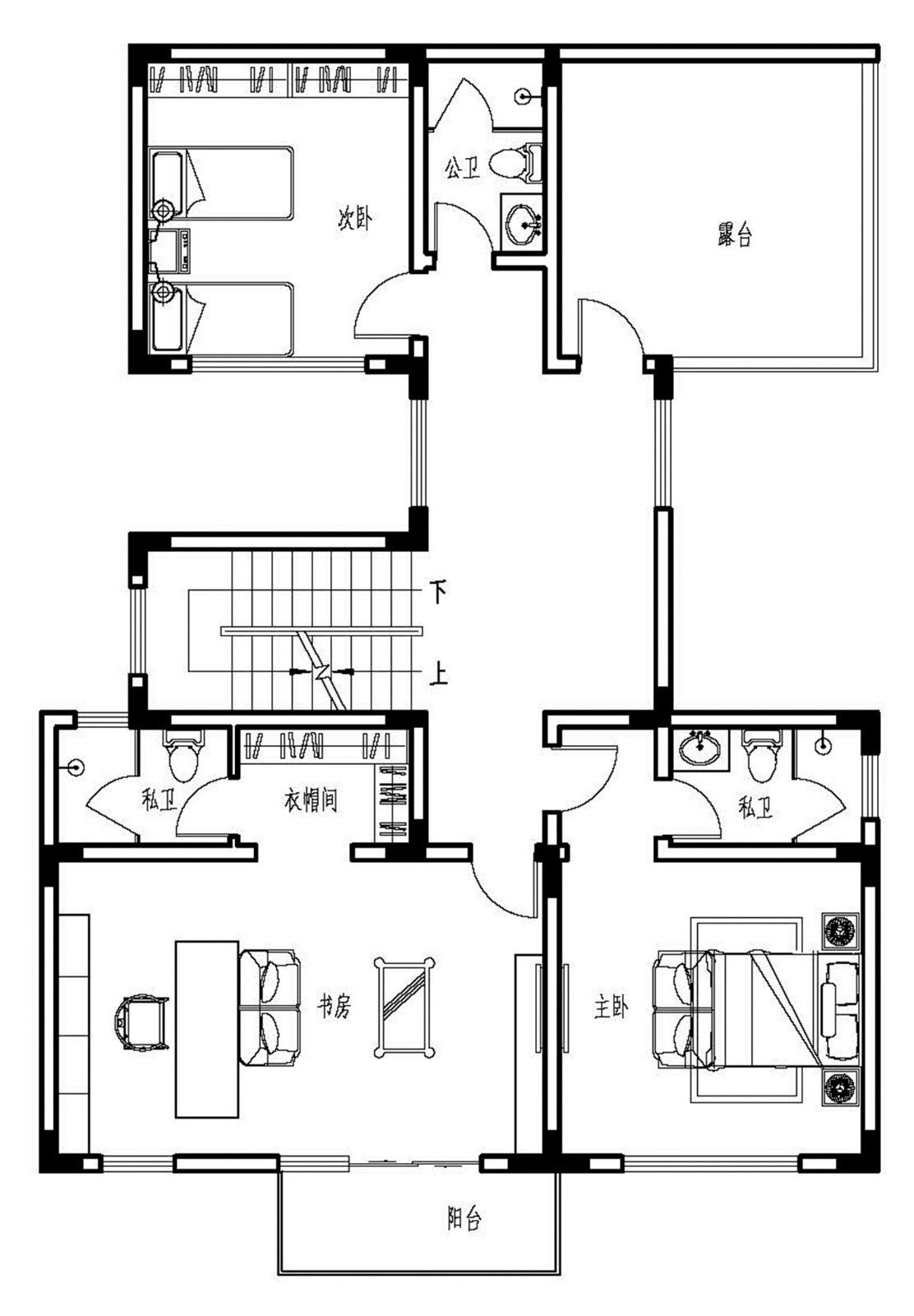
客厅、餐厅、厨房、卧室、公卫、阳台、露台。


。
转载请注明出自轩鼎自建房:://www.lemeizhai.com/