福建的别墅可以说是名扬天下,他们当地有句话那就是“中国别墅看福建,福建别墅看莆田”福建莆田的别墅那是真豪华,但今天说的是浙江农村的别墅,在建大别墅虽然没有那么豪华但很有味道,小洋楼一栋一栋的很是漂亮,就拿审美来说浙江的别墅就不输福建的。今天给大家介绍的是浙江黄总私人订制的="://www.lemeizhai.com/Picture.asp?PicClassID=91" target="_self">三层别墅设计希望大家喜欢
效果图:


别墅层数: 三层
别墅风格: 欧式
占地面积:247㎡
开 间:16.5m
进 深:15m
建筑占地:16.5m×15m
建筑面积:610㎡
主体造价:86.0~91.0万
建筑结构:砖混结构
效果图:


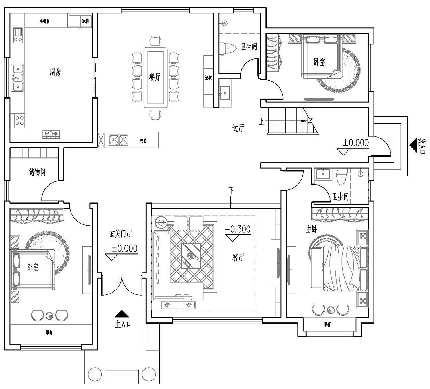
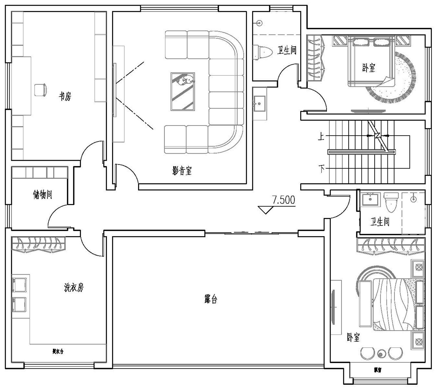
主体设计:

客厅、餐厅、厨房、卧室、公卫、阳台、露台。


。
转载请注明出自轩鼎自建房:://www.lemeizhai.com/