新农村建设效果显著,乡村环境好了也增多了风土人情,有的集体住上了自建别墅,整个村子都住上了舒适的小别墅,农村自建别墅会越来越多的,不仅造价便宜造型还能随意定制。进入今天的主题吧,小编给大家推荐一款二层="://www.lemeizhai.com/search.asp?SearchType=Software&imageField.x=43&imageField.y=44&SearchKey=%D0%C2%D6%D0%CA%BD" target="_self">新中式农村自建别墅设计,这套别墅采用大量的现代化设计,很适合寒区建造。
效果图:

别墅层数: 二层
别墅风格: 新中式
占地面积:113㎡
开 间:12m
进 深:10m
建筑占地:12m×10m
建筑面积:226.9㎡
主体造价:23.0~28.0万
建筑结构:砖混结构
效果图:


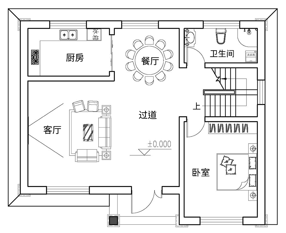
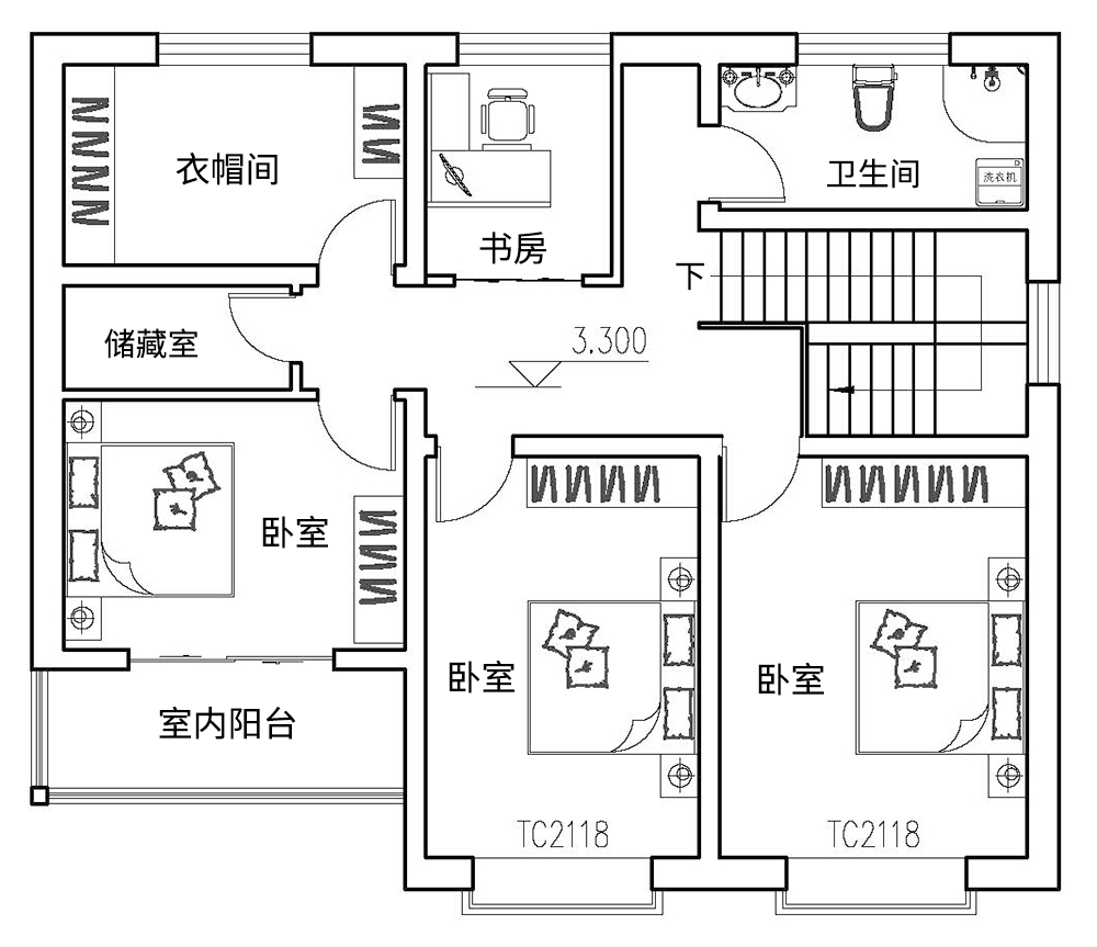
主体设计:。

客厅、餐厅、厨房、卧室、公卫、阳台、露台。

。
转载请注明出自轩鼎自建房:://www.lemeizhai.com/