只要基础设施完善在农村建别墅肯定很舒服,医院、门诊、学校都不缺的地方非常适合农村建别墅,这样的农村条件应该是应该能达到的,农村建别墅就看当地的基础设施了。今天小编给大家推荐一款十分符合农村环境的="://www.lemeizhai.com/Picture.asp?PicClassID=88" target="_self">二层现代别墅设计方案,内部布局非常舒适,这样的农村自建别墅你万万不能错过!
效果图:

别墅层数: 二层
别墅风格: 现代
占地面积:210㎡
开 间:14.5m
进 深:14.5m
建筑占地:14.5m×14.5m
建筑面积:256㎡
主体造价:33.4~38.4万
建筑结构:砖混结构
效果图:




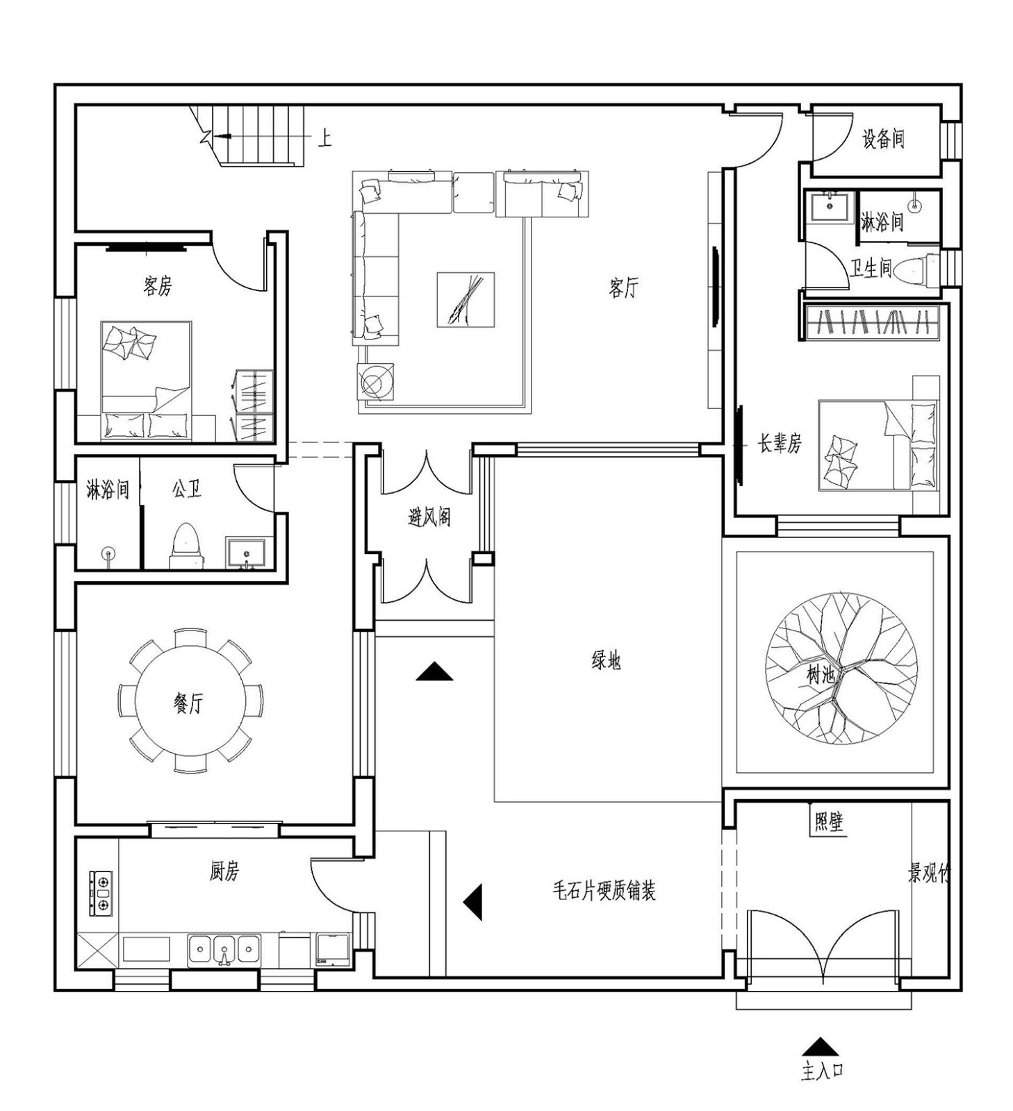
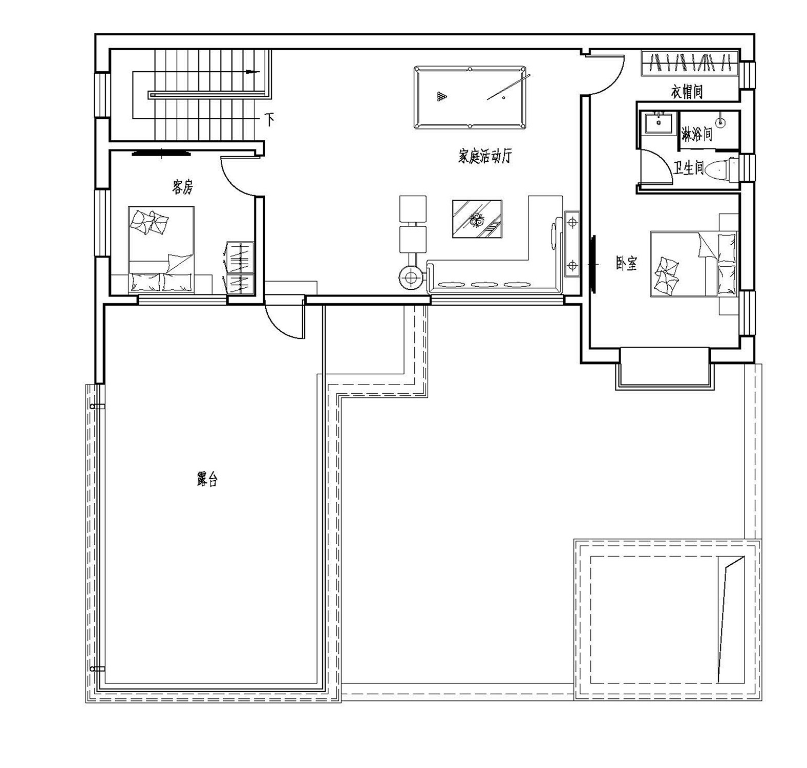
主体设计:

客厅、餐厅、厨房、卧室、公卫、阳台、露台。

。
转载请注明出自轩鼎自建房:://www.lemeizhai.com/