农村自建别墅北方建二层的居多,而南方建三层的居多,可能是因为气候和环境的因素导致的。说到="://www.lemeizhai.com/Picture.asp?PicClassID=85" target="_self">农村自建别墅最适合南方人的是新中式风格的,而三层中式风格的别墅设计只适合南方。今天给大家推荐的是缪总定制新中式三层农村自建设计方案。
效果图:


别别墅层数: 三层
别墅风格: 中式
占地面积:320㎡
开 间:20m
进 深:16m
建筑占地:20m×16m
建筑面积:607㎡
主体造价:86.0~91.0万
建筑结构:砖混结构
效果图:


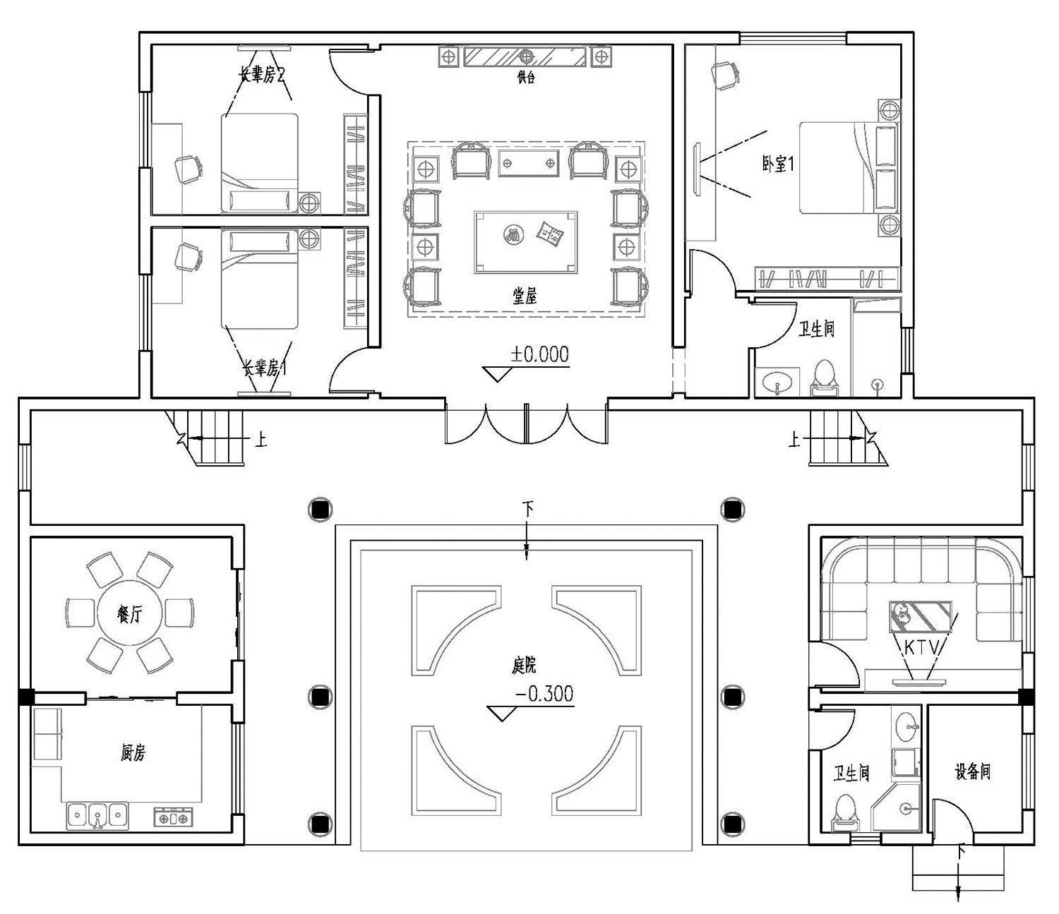
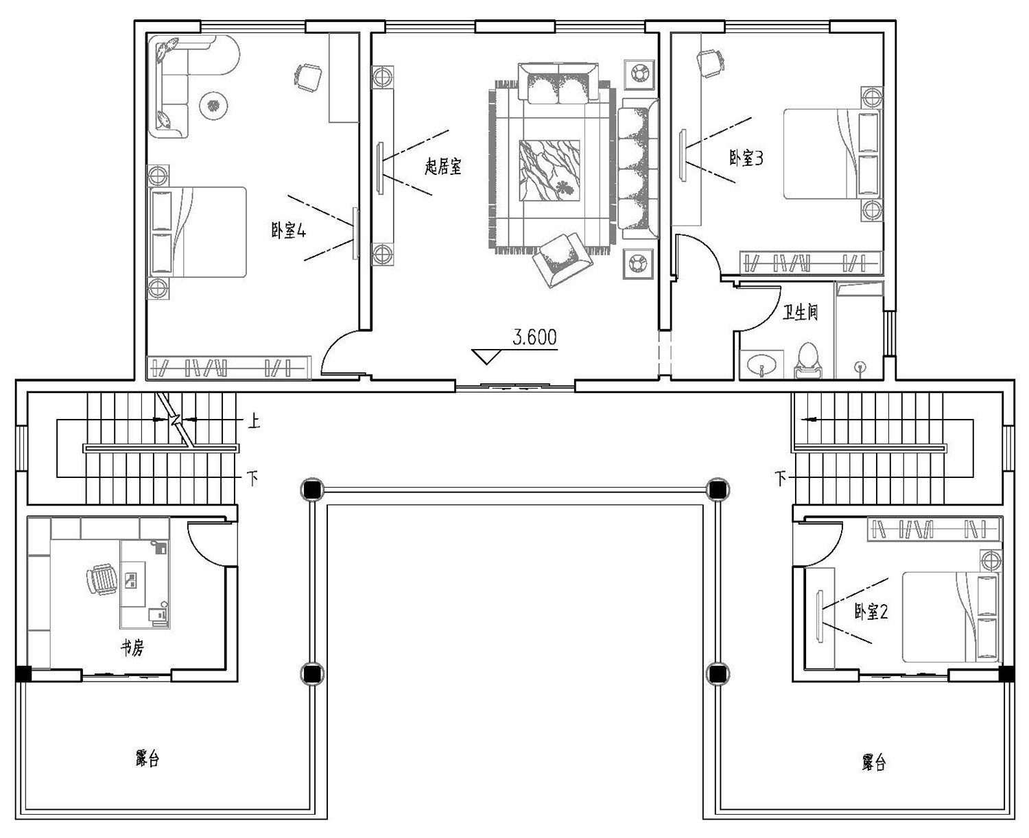
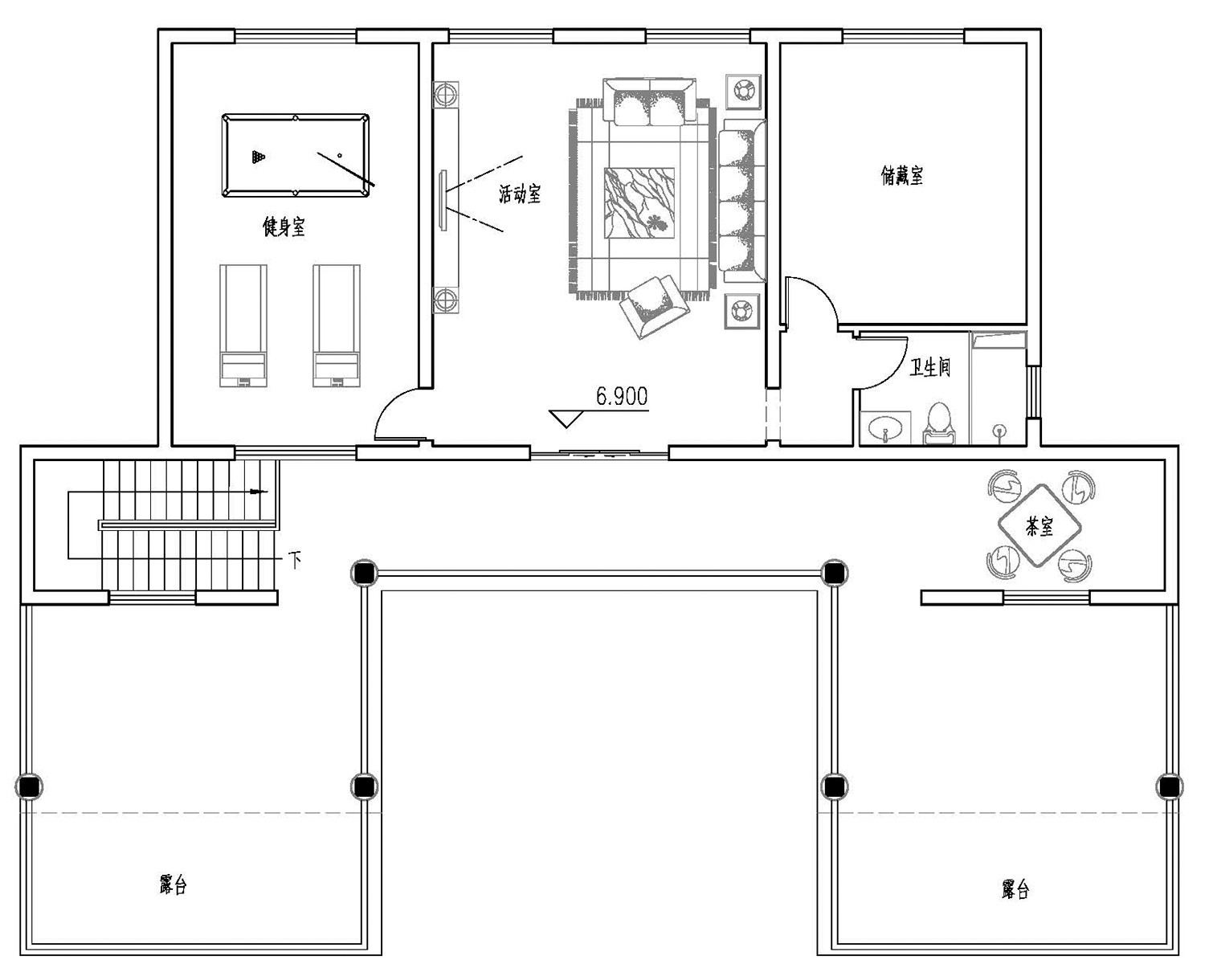
主体设计:

客厅、餐厅、厨房、卧室、公卫、阳台、露台。

。

转载请注明出自轩鼎自建房:://www.lemeizhai.com/