真羡慕那些农村有宅基地的朋友,能住上那么好的自建别墅能不让人羡慕嘛,尤其是宅基地大的家庭,宅基大就能建一栋霸气的别墅,空间大了住着也舒心。今天给大家推荐一款大气豪华的二层="://www.lemeizhai.com/search.asp?SearchType=Software&imageField.x=40&imageField.y=24&SearchKey=%D0%C2%D6%D0%CA%BD" target="_self">新中式农村自建别墅,这套别墅比较复古看起来非常高大漂亮家,有钱就应该建这样的别墅。
效果图:


别墅层数: 二层
别墅风格: 中式
占地面积:960㎡
开 间:40m
进 深:24m
建筑占地:40m×24m
建筑面积:1200㎡
主体造价:175.0~180.0万
建筑结构:砖混结构
效果图:



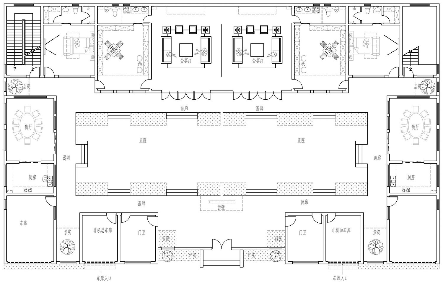
主体设计:。

客厅、餐厅、厨房、卧室、公卫、阳台、露台。

。
转载请注明出自轩鼎自建房:://www.lemeizhai.com/