看见别人建别墅是不是自己也想建了?农村很多地方都兴起建别墅,有的地方家家户户都住别墅。现在多胎家庭慢慢出现,农村的多口之家会越来越多,大型的自建房即将成为潮流,现在非常适合建大房子!今天给大家推荐刘总="://www.lemeizhai.com/Picture.asp?PicClassID=91" target="_self">私人订制的三层别墅设计,是一款大气的三层农村自建房,多胎家庭一定要建造这样的房子。
效果图:


别墅层数: 三层
别墅风格: 欧式
占地面积:348㎡
开 间:22.2m
进 深:15.7m
建筑占地:22.2m×15.7m
建筑面积:694㎡
主体造价:99.0~104.0万
建筑结构:砖混结构
效果图:



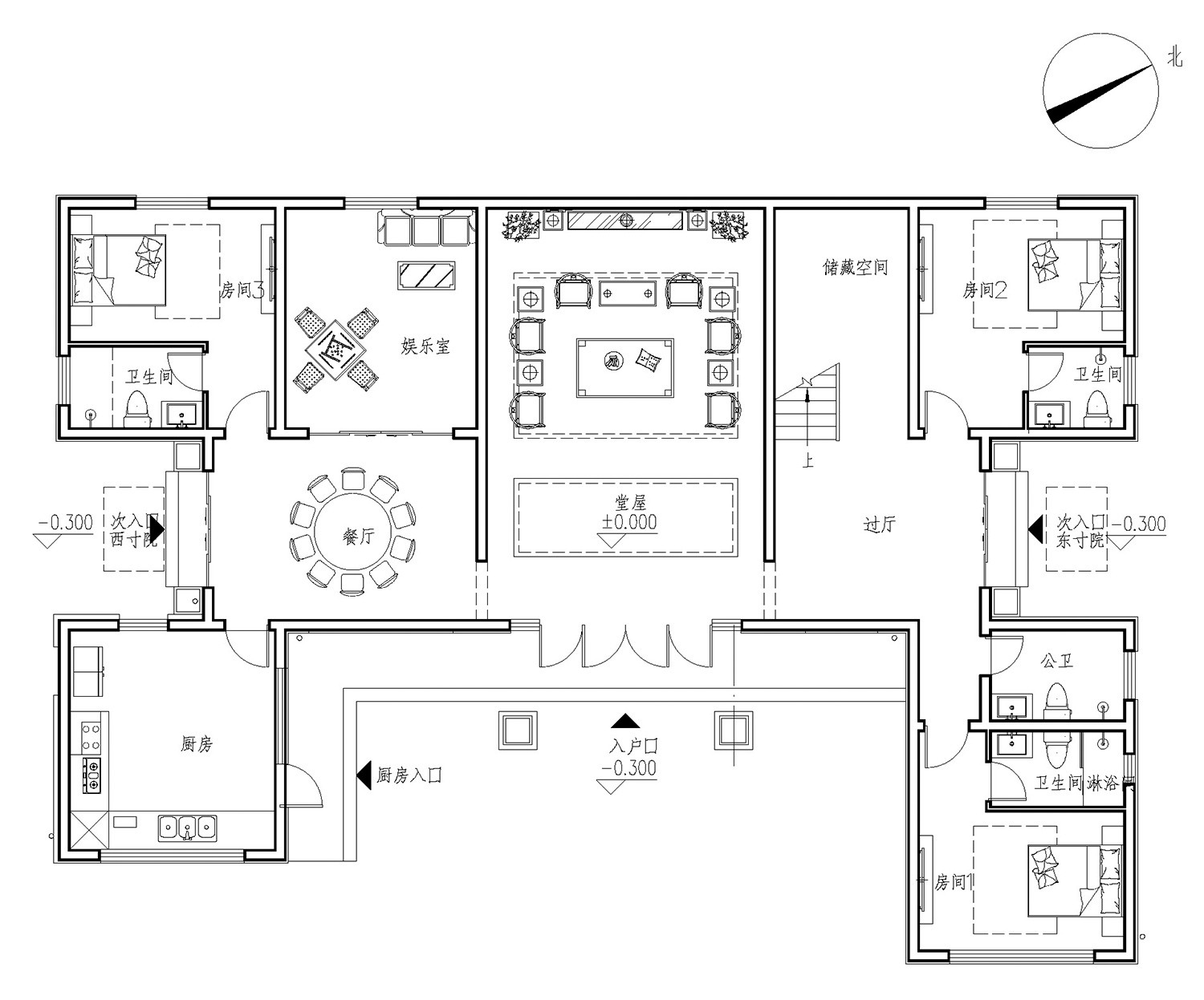
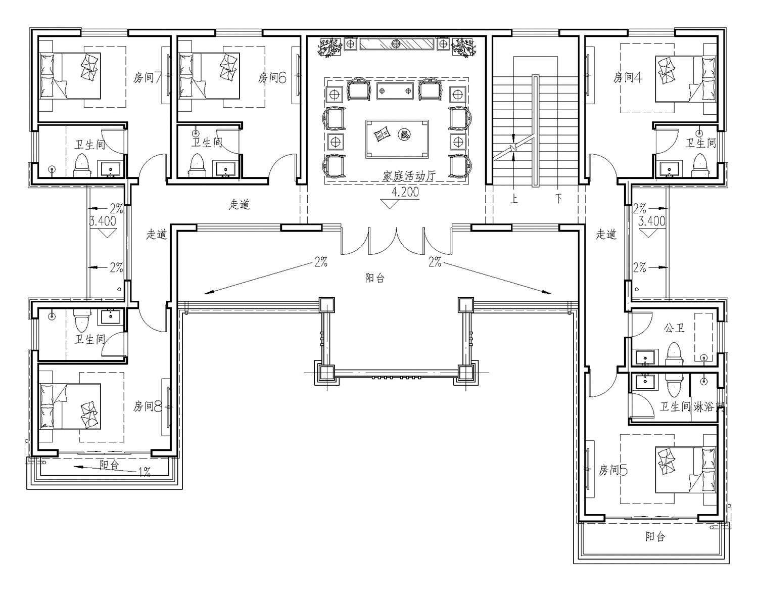
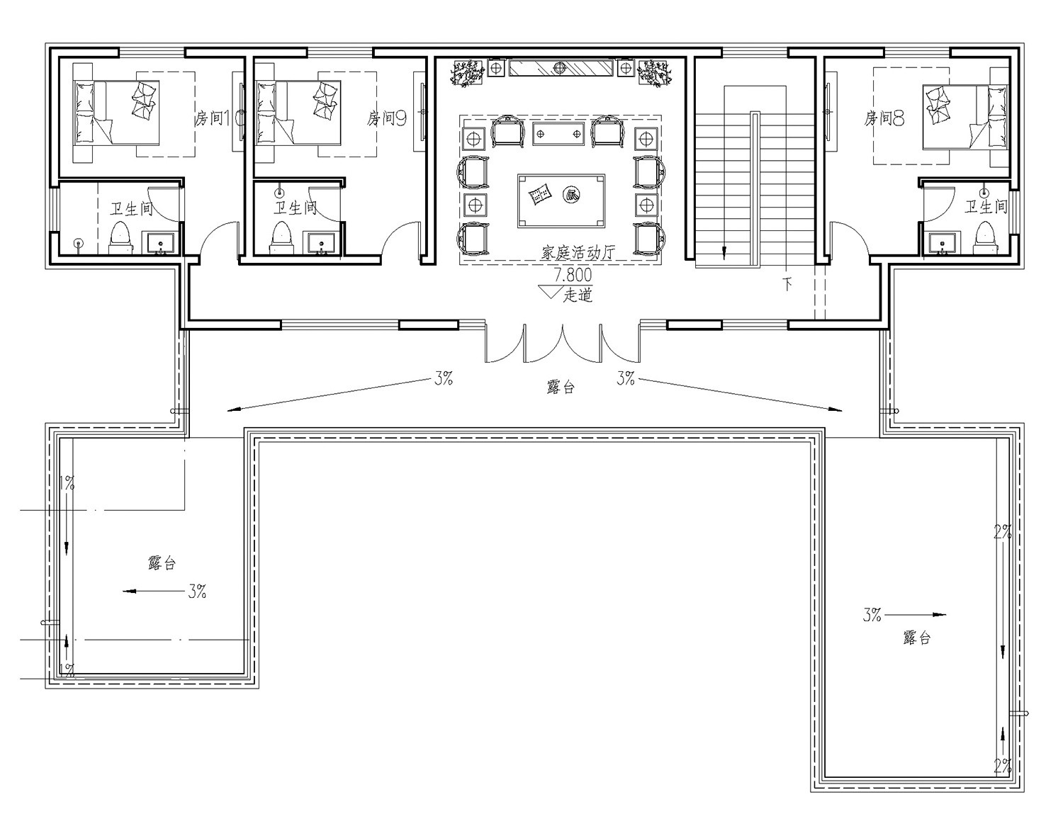
主体设计:

客厅、餐厅、厨房、卧室、公卫、阳台、露台。


。
转载请注明出自轩鼎自建房:://www.lemeizhai.com/