柴米油盐酱醋茶,人一生就这几件事,但没有遮风挡雨的家是不完美的,房子不仅仅是冰冷的建筑,更是亲情的港湾,有一栋属于自己的房子绝对是幸运的!今天给大家推荐一款适合农村地区建造的="://www.lemeizhai.com/Picture.asp?PicClassID=91" target="_self">自建别墅设计图,这是一套充满田园气息的自建房,三层的高度足够一家人居住的了。
效果图:



别墅层数: 三层
别墅风格: 欧式
占地面积:132㎡
开 间:13.8m
进 深:9.6m
建筑占地:13.8m×9.6m
建筑面积:372㎡
主体造价:51.0~56.0万
建筑结构:砖混结构
效果图:




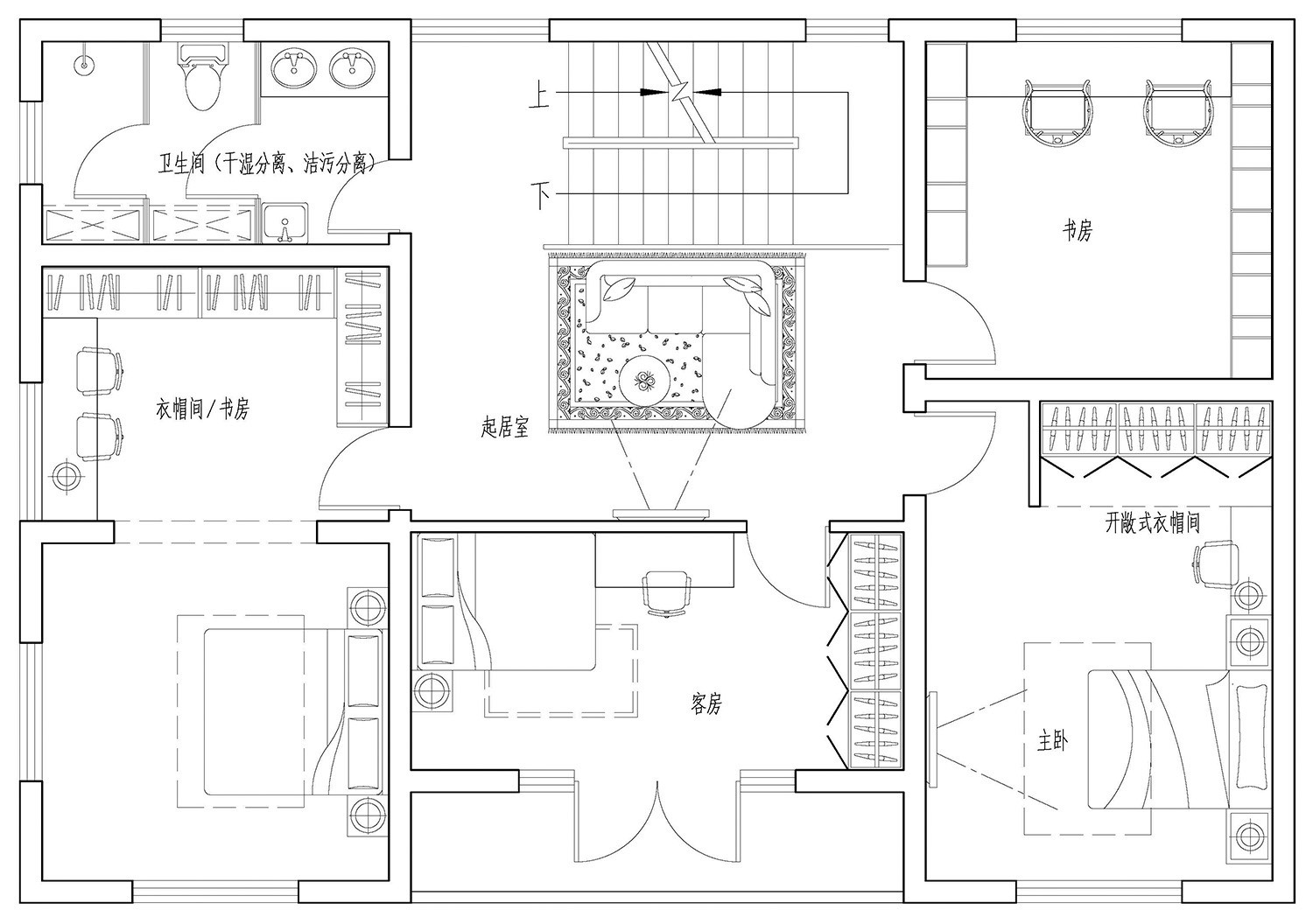
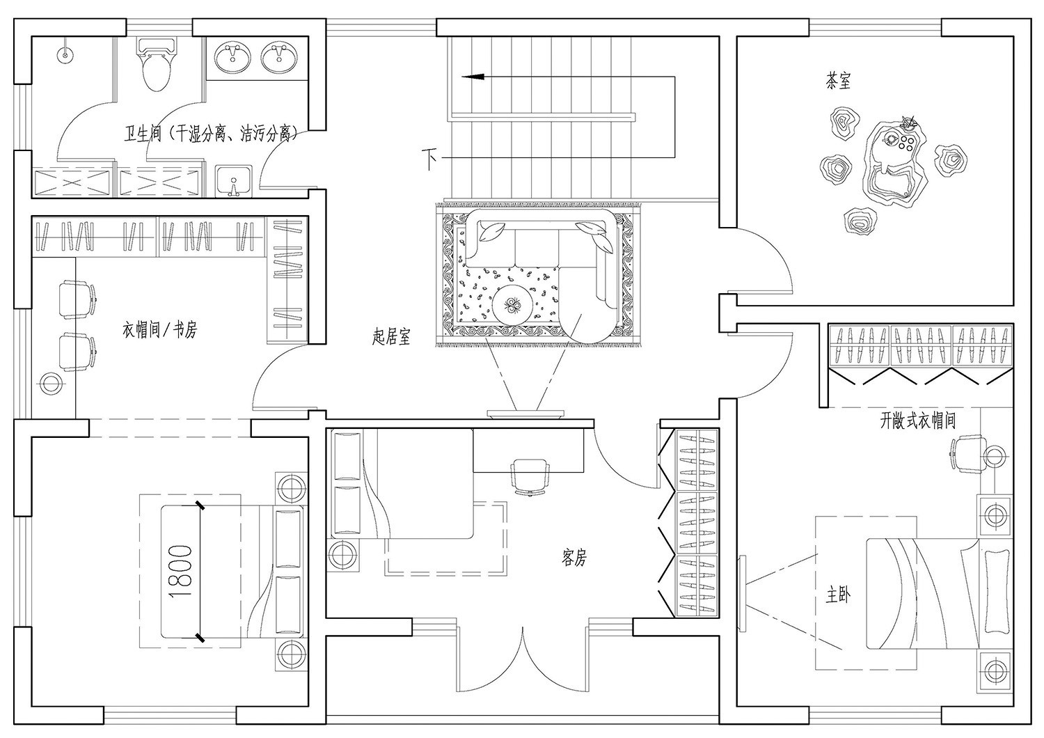
主体设计:

客厅、餐厅、厨房、卧室、公卫、阳台、露台。


。
转载请注明出自轩鼎自建房:://www.lemeizhai.com/