时代的变化往往是从千家万户的细微改变开始,农村自建别墅的出现就是一种变化,年代不同住的房屋也不一样,现在住的房子越来越好!未来我们住的房子可能还不一样,会越来越好。今天给大家推荐的是一款="://www.lemeizhai.com/Picture.asp?PicClassID=88" target="_self">欧式二层农村别墅设计,这套别墅外观经典布局实用,具体造价不超过五十万。
效果图:

别墅层数: 二层
别墅风格: 新中式
占地面积:154㎡
开 间:13.9m
进 深:12.4m
建筑占地:13.9m×12.4m
建筑面积:308.1㎡
主体造价:32.0~37.0万
建筑结构:砖混结构
效果图:




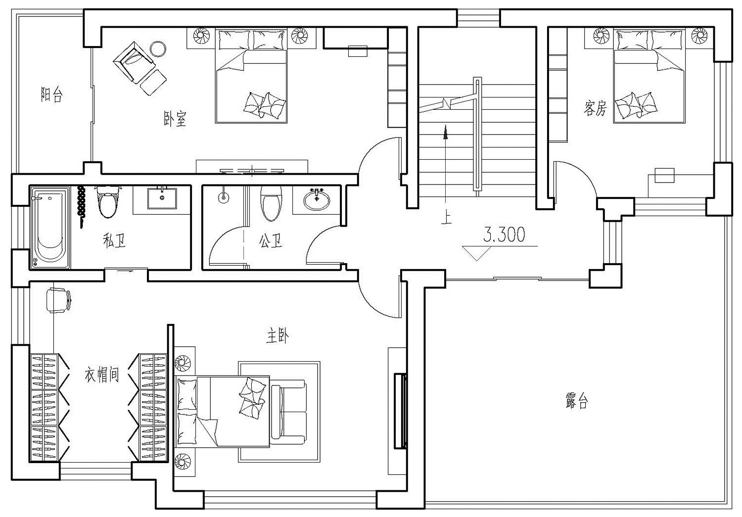
主体设计:

客厅、餐厅、厨房、卧室、公卫、阳台、露台。


。
转载请注明出自轩鼎自建房:://www.lemeizhai.com/