不在城里买房又想住得好,那就只能自己建了,只要当地允许自己建,马上就能开始建造,农村批给你的地根本不用花钱买,只掏个建房子的钱就成,建个大房子不用几百万,五六十万应该就成,自建别墅舒服好看比城里买房香多了!今天给大家推荐一款胡总私人订制的="://www.lemeizhai.com/Picture.asp?PicClassID=91" target="_self">新中式三层农村别墅设计,这样的别墅住着很舒服给套城里的房子都不换。
效果图:

别墅层数: 三层
别墅风格: 新中式
占地面积:270㎡
开 间:16.7m
进 深:16.2m
建筑占地:16.7m×16.2m
建筑面积:397㎡
主体造价:55.0~60.0万
建筑结构:砖混结构

效果图:



主体设计:

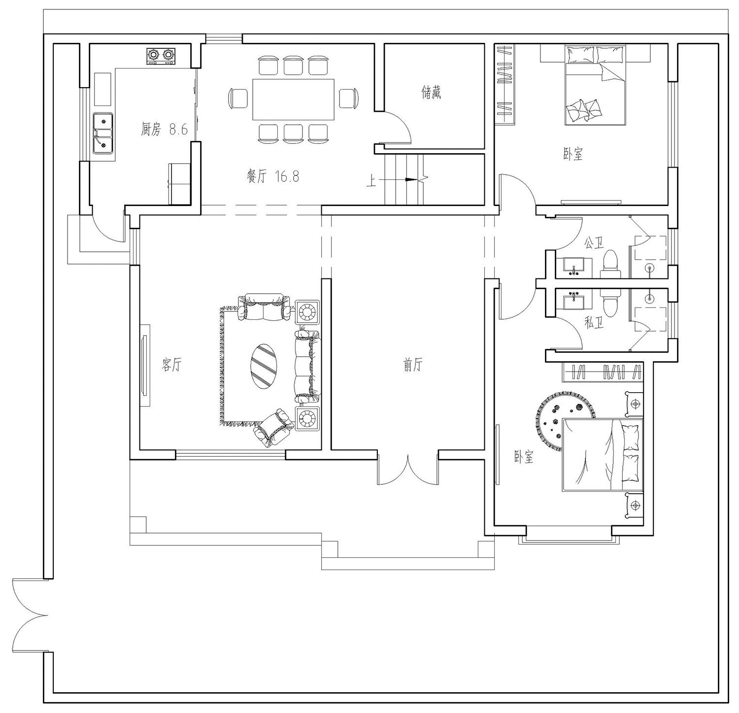
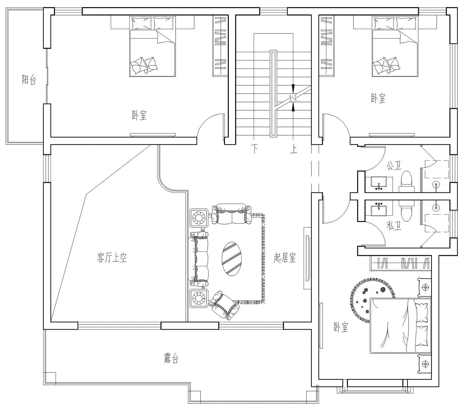
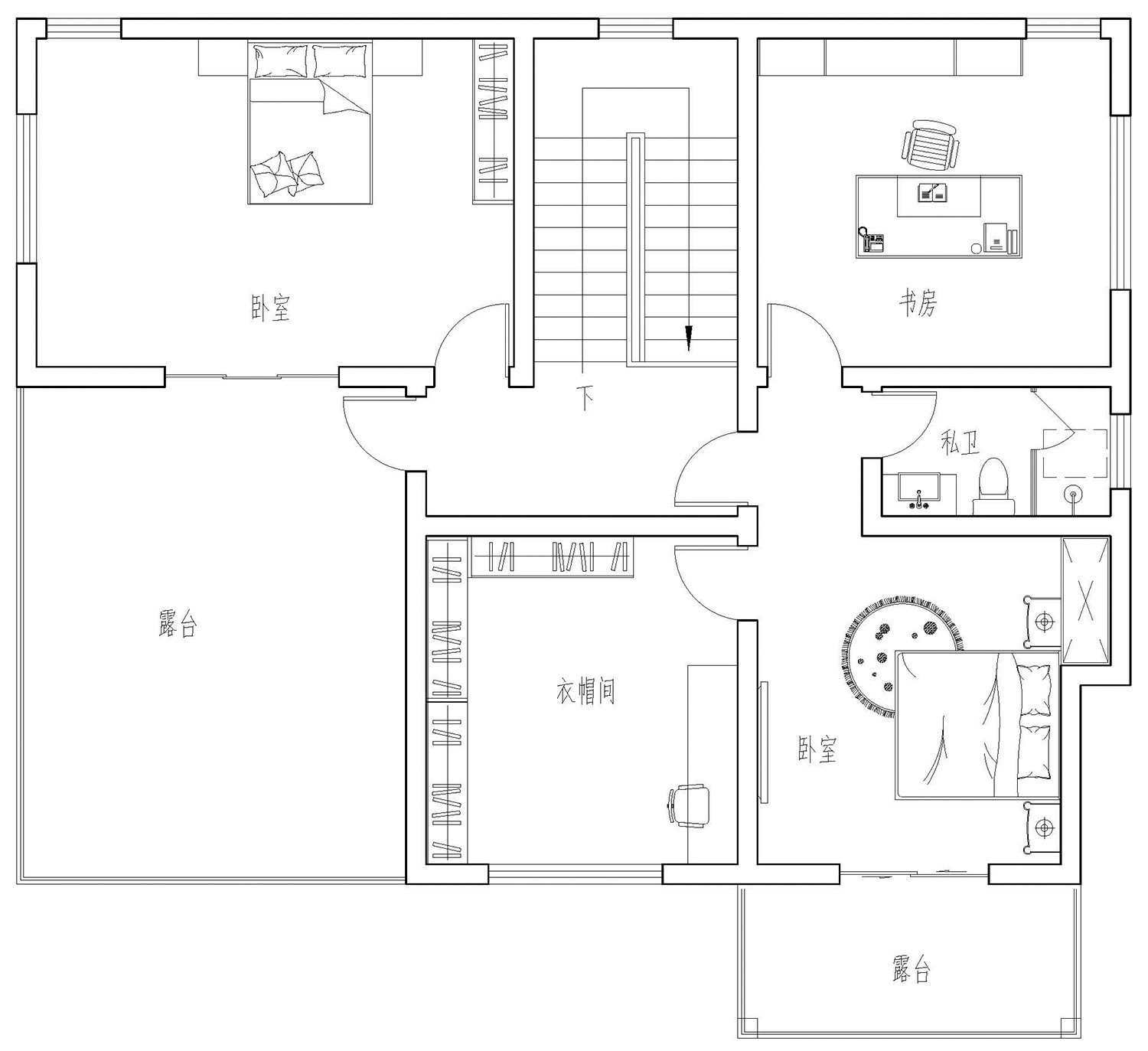
客厅、餐厅、厨房、卧室、公卫、阳台、露台。

。

转载请注明出自轩鼎自建房:://www.lemeizhai.com/