都知道双拼别墅可你知道双拼别墅适合什么样的家庭吗?双拼别墅适合兄弟和睦家庭和谐的人建造,这样的家庭可是很少见的,兄弟之间能一起建房子住的很少,这种兄弟情义是很可贵的。今天给大家推荐的是山东吕总兄弟俩私人订制的="://www.lemeizhai.com/Picture.asp?PicClassID=97" target="_self">二层双拼别墅设计,住着这样的房子一个亿都不换。
效果图:


别墅层数: 二层
别墅风格: 新中式
占地面积:154㎡
开 间:13.9m
进 深:12.4m
建筑占地:13.9m×12.4m
建筑面积:308.1㎡
主体造价:32.0~37.0万
建筑结构:砖混结构
效果图:



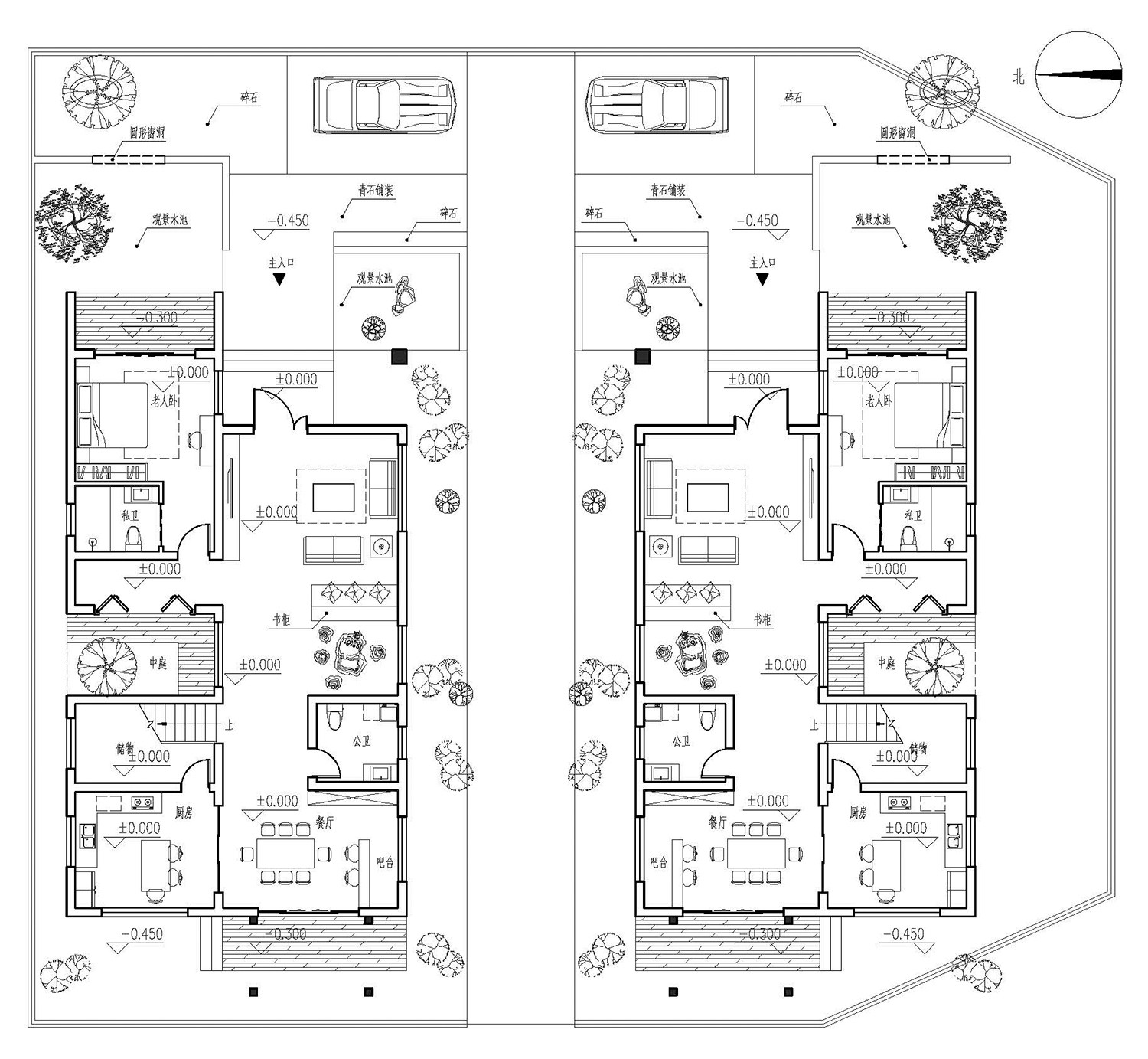
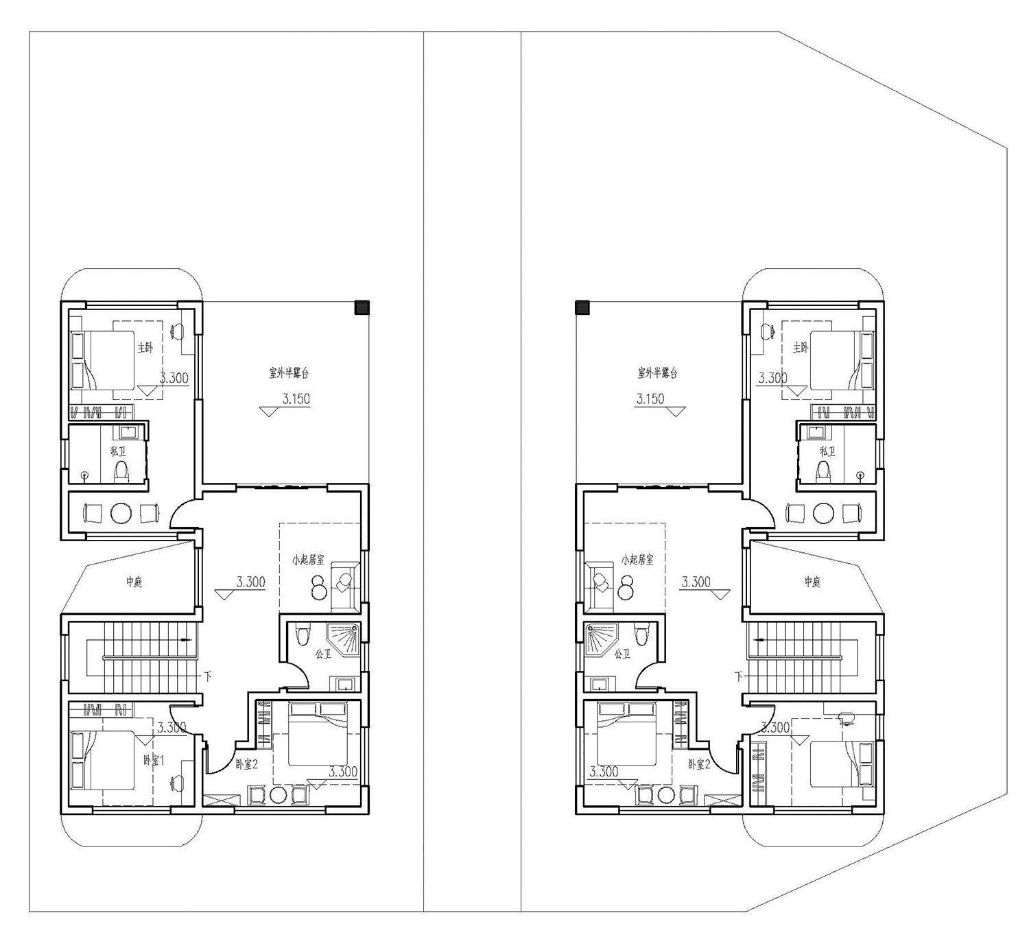
主体设计:

客厅、餐厅、厨房、卧室、公卫、阳台、露台。
。
转载请注明出自轩鼎自建房:://www.lemeizhai.com/