自建别墅推荐四层的大别墅,那样的别墅看起来大气!不论什么风格的,那怕是现代风格的自建别墅也是很霸气,不得不说有钱的大老板是真享受啊。今天给大家推荐一款现代风="://www.lemeizhai.com/Picture.asp?PicClassID=91" target="_self">三层别墅设计,这套别墅很霸气,喜欢宴请朋友的兄弟可以选择这款别墅绝对不亏。
效果图:


别墅层数: 四层
别墅风格: 现代
占地面积:165㎡
开 间:15m
进 深:11m
建筑占地:15m×11m
建筑面积:500㎡
主体造价:105.0~110.0万
建筑结构:砖混结构
效果图:




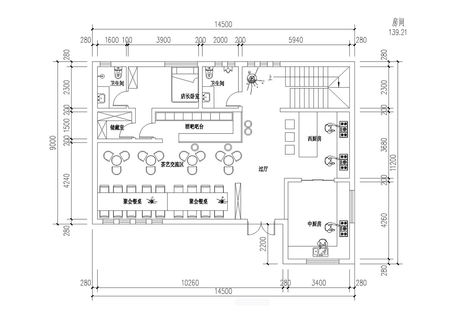
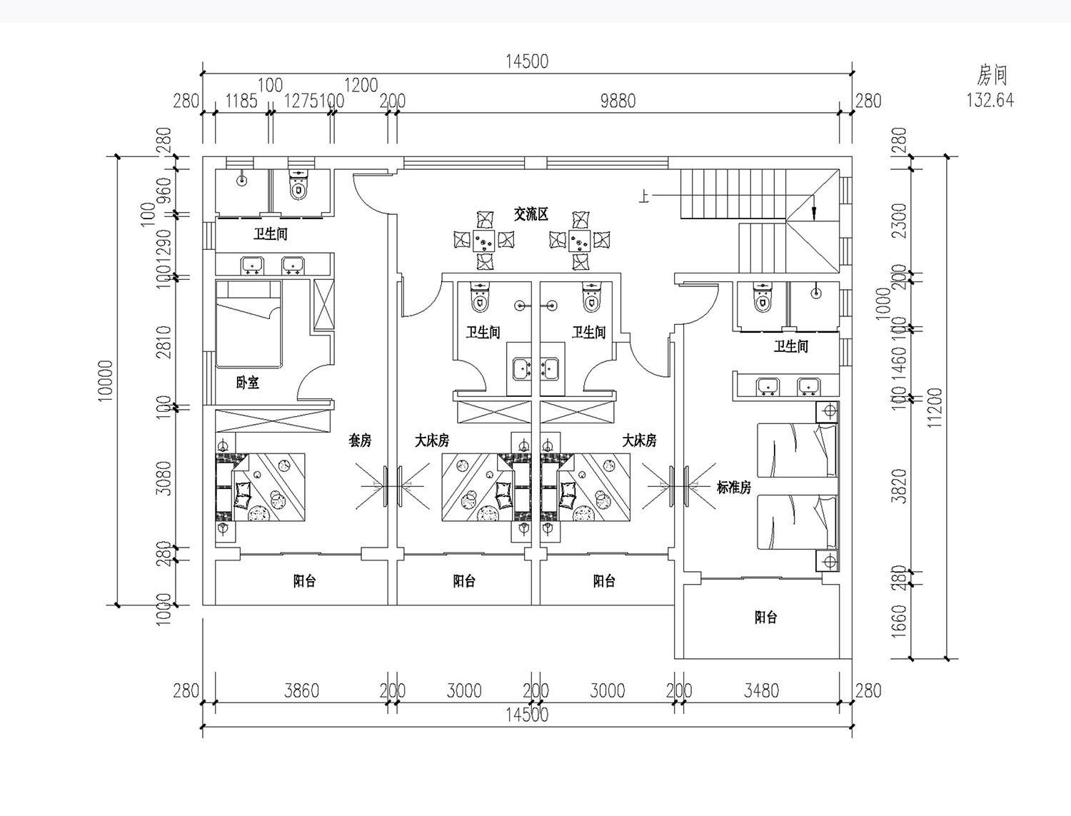
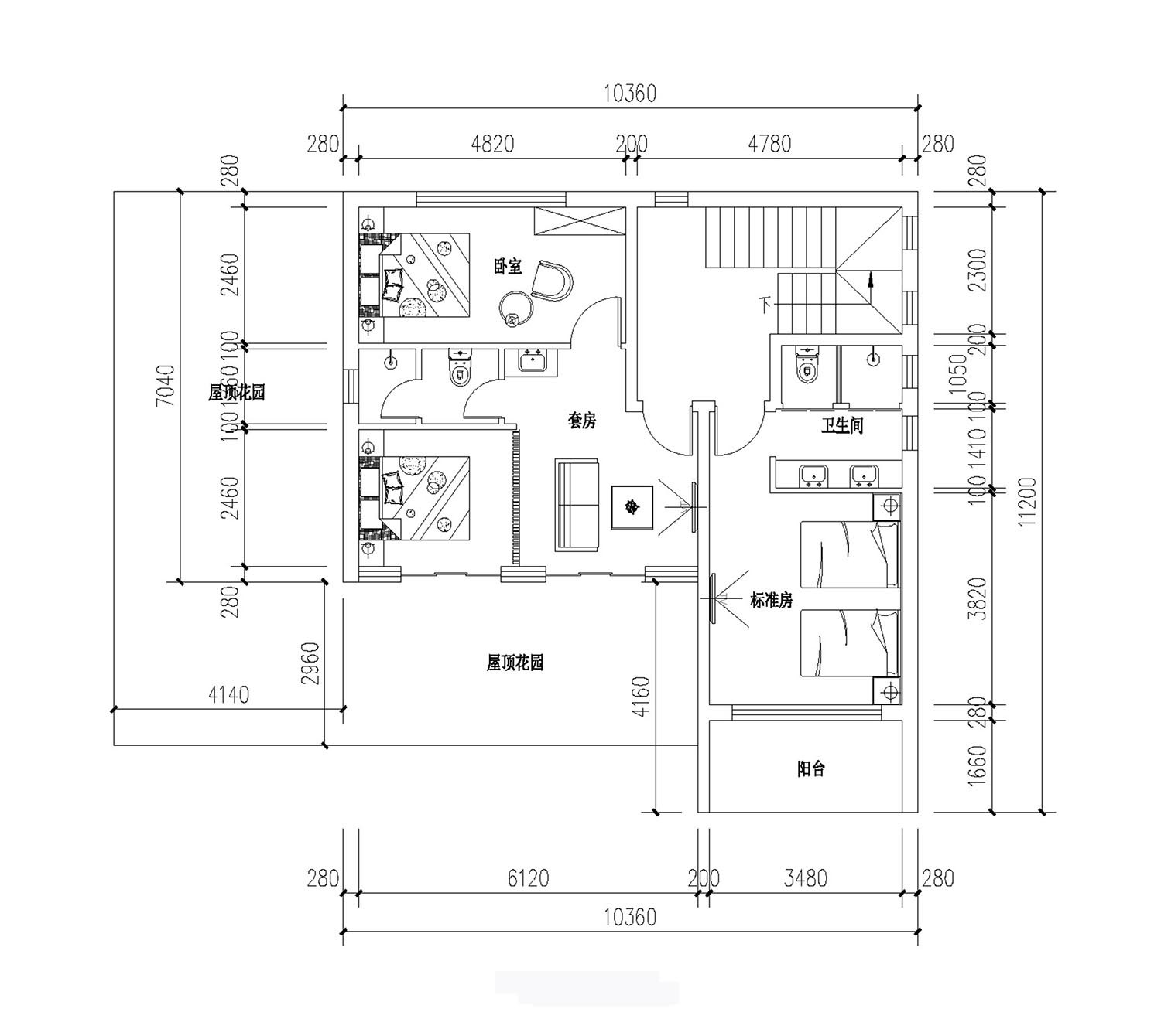
主体设计:

客厅、餐厅、厨房、卧室、公卫、阳台、露台。


。

转载请注明出自轩鼎自建房:://www.lemeizhai.com/