经过疫情了才知道农村的好,有的朋友都回农村老家搞起了养殖。在农村吃饭根本不用愁,蔬菜基本自给自足不用冒风险出门买菜,而且如果在农村建一栋房子都不用还房贷了。今天给大家推荐一款造价不超过100万的="://www.lemeizhai.com/Picture.asp?PicClassID=91" target="_self">三层农村别墅设计,希望大家喜欢。
效果图:

别墅层数: 三层
别墅风格: 新中式
占地面积:225㎡
开 间:15m
进 深:15m
建筑占地:15m×15m
建筑面积:660㎡
主体造价:90.0~95.0万
建筑结构:砖混结构
效果图:




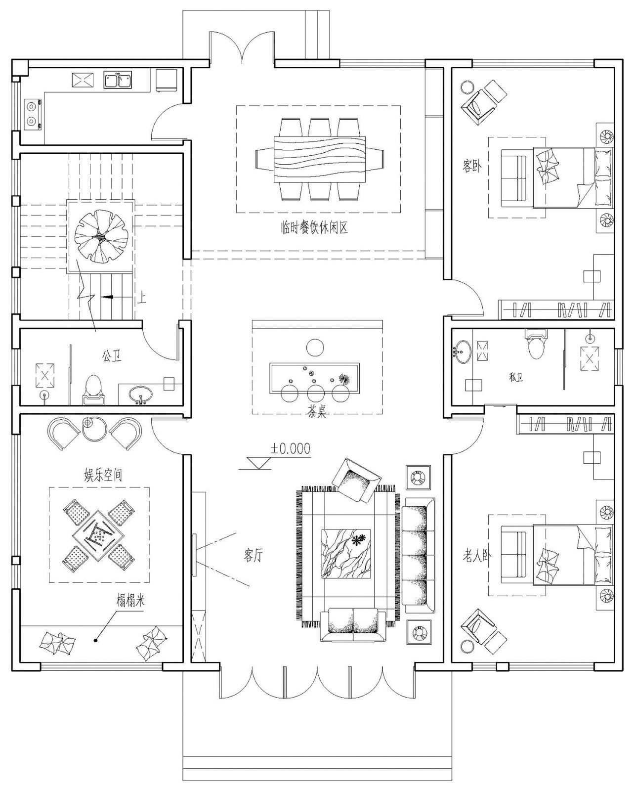
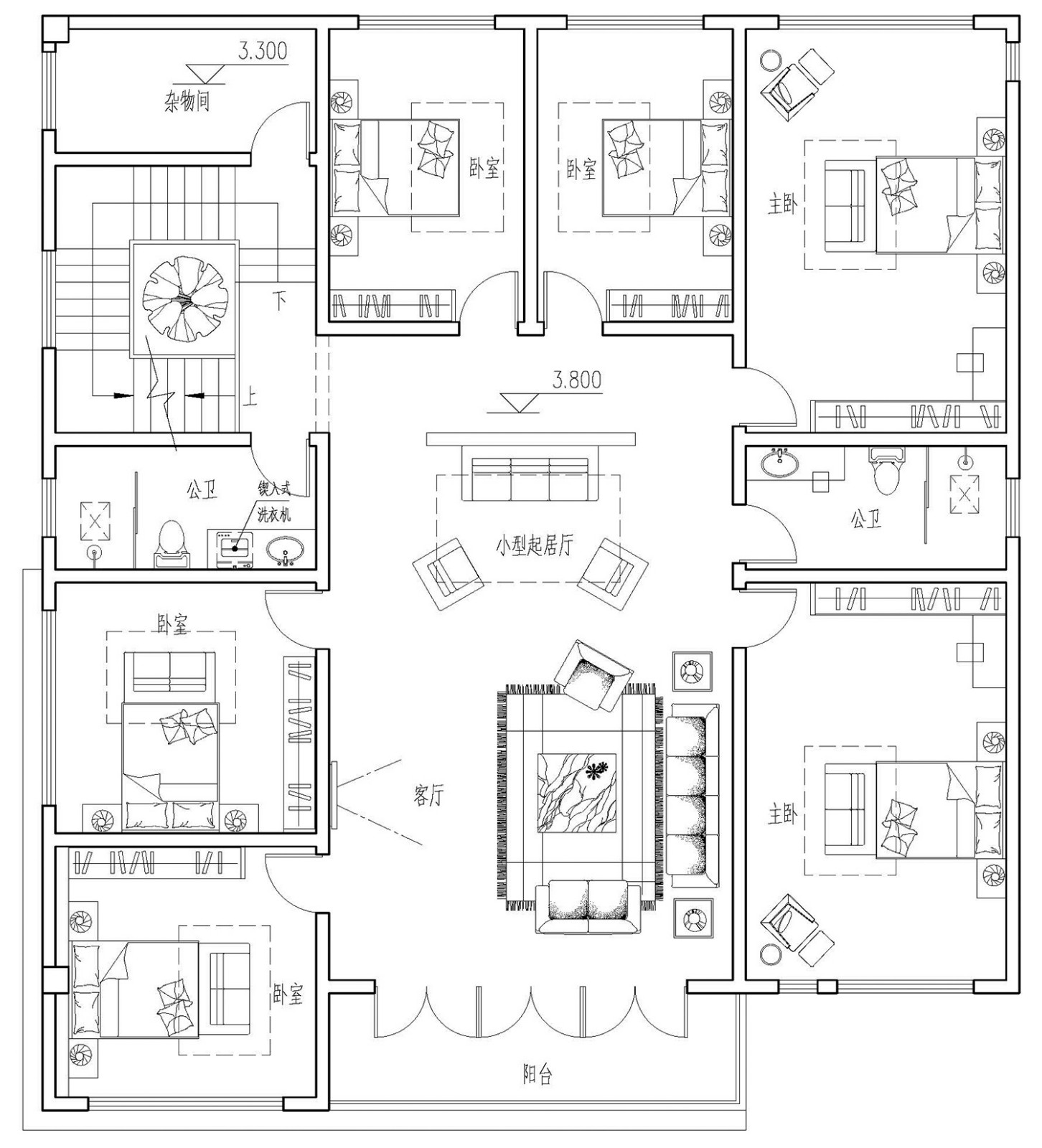
主体设计:

客厅、餐厅、厨房、卧室、公卫、阳台、露台。
。

转载请注明出自轩鼎自建房:://www.lemeizhai.com/