轩鼎小编给大家推荐李先生私人订制的="://www.lemeizhai.com/Picture.asp?PicClassID=88" target="_self">二层农村自建别墅设计,这套户型比较经典红白配色的墙体非常耐看,这样的别墅很适合农村的,建栋一栋在农村一点也不突兀,还有种田园的住宅的味道。这套别墅造价非常亲民,主体不超过60万内部布局非常实用客厅和私密的卧室隔开,共有五个卧室。
效果图:



别墅层数: 二层
别墅风格: 欧式
占地面积:157㎡
开 间:13.7m
进 深:11.5m
建筑占地:13.7m×11.5m
建筑面积:305㎡
主体造价:47.0~52.0万
建筑结构:砖混结构
效果图:


主体设计:

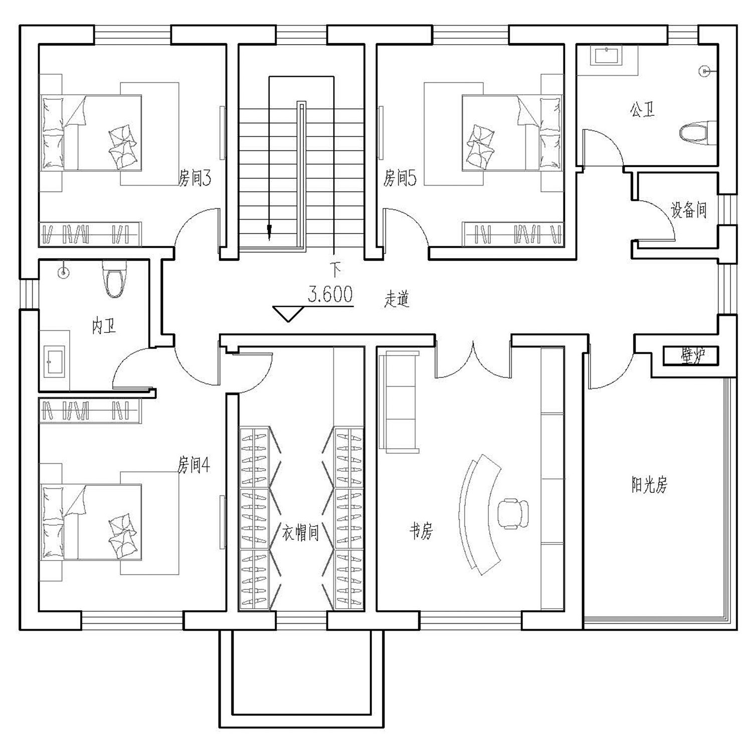
客厅、餐厅、厨房、卧室、公卫、阳台、露台。

。
转载请注明出自轩鼎自建房:://www.lemeizhai.com/