农村传统自建房屋的实用性不如现在的自建别墅,好房子不仅要舒适还要好看,一般二层的农村自建房就是平房叠起来的不怎么安全,自建别墅有专业的图纸和施工队,建出来又好看又实用结构还比一般的房子强!今天给大家推荐山东李总私人订制的="://www.lemeizhai.com/Picture.asp?PicClassID=91" target="_self">现代农村自建别墅图纸,布局实用开阔方便。
效果图:

别墅层数: 二层
别墅风格: 现代
占地面积:214㎡
开 间:18m
进 深:11.9m
建筑占地:18m×11.9m
建筑面积:443㎡
主体造价:64.0~69.0万
建筑结构:砖混结构
效果图:



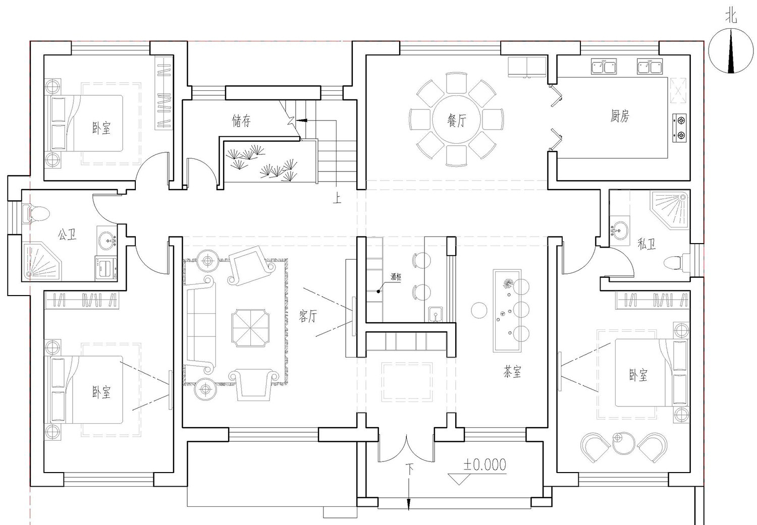
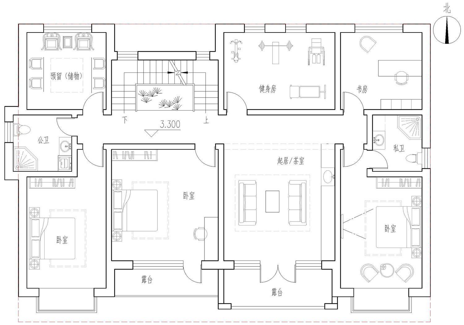
主体设计:

客厅、餐厅、厨房、卧室、公卫、阳台、露台。

。
转载请注明出自轩鼎自建房:://www.lemeizhai.com/