一层的房子永远不会淘汰,仿古建合院式的房子还是有不少的,新中式的="://www.lemeizhai.com/Picture.asp?PicClassID=85" target="_self">一层农村自建房设计图深受大众的喜爱。今天小编给大家推荐一款非常适合农村朋友的房屋设计图,这是一款传统布局的双拼新中式自建房,主体造价不超过40万,外观还算可以浓浓的古建风。
效果图:



别墅层数: 一层
别墅风格: 中式
占地面积:254㎡
开 间:21.2m
进 深:12m
建筑占地:21.2m×12m
建筑面积:228㎡
主体造价:31.0~36.0万
建筑结构:砖混结构
效果图:


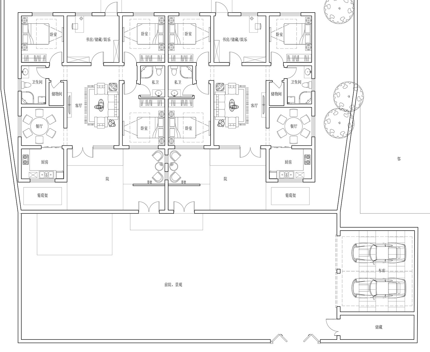
主体设计:

客厅、餐厅、厨房、卧室、公卫、阳台、露台。
。
转载请注明出自轩鼎自建房:://www.lemeizhai.com/