前段时间轩鼎小编一直给大家找了些乡村二层的别墅,今天特意从图纸中找了这栋农村三层别墅,红色的坡屋顶设计,十分“耀眼”,让人眼前一亮。它的配色也是十分的好看,一层的文化石外墙和“凉亭”式门洞也让整个建筑更加充满设计感,三楼的露台,可以看到远处的乡村美景。

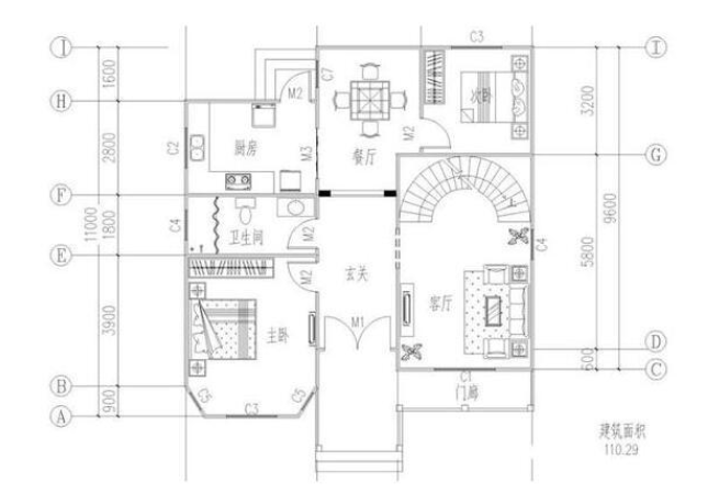
我们从一进门就可以看到室内布局是比较讲究的。 从玄关位置便可以通往各个区域空间,主卧和客厅都很亮堂,尤其是客厅是挑空的,在这样小面积的区域内,再加上旋转楼梯,使整个房间显得非常宽敞高挑,平日家里有朋友做客等,都是彰显生活的象征。厨房、餐厅和次卧都很紧凑,而厨房还有后门,油烟和垃圾从后门后窗排出,保持了室内的清洁。

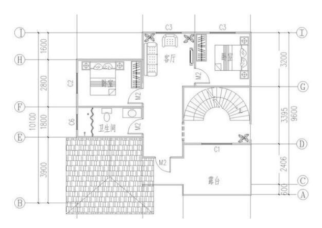
二层和三层为生活居住为主的空间,但是很有生活气息,很方便。各层都有自己的休息区和卫生间。二层三间卧室,主卧向阳还有衣帽间,三层是两间卧室一个卫生间,还有一个大露台,住着真是很美。


看完了这栋农村三层别墅,您有没有心生羡慕的感觉呢?占地面积虽然小,但能盖出这样的别墅,