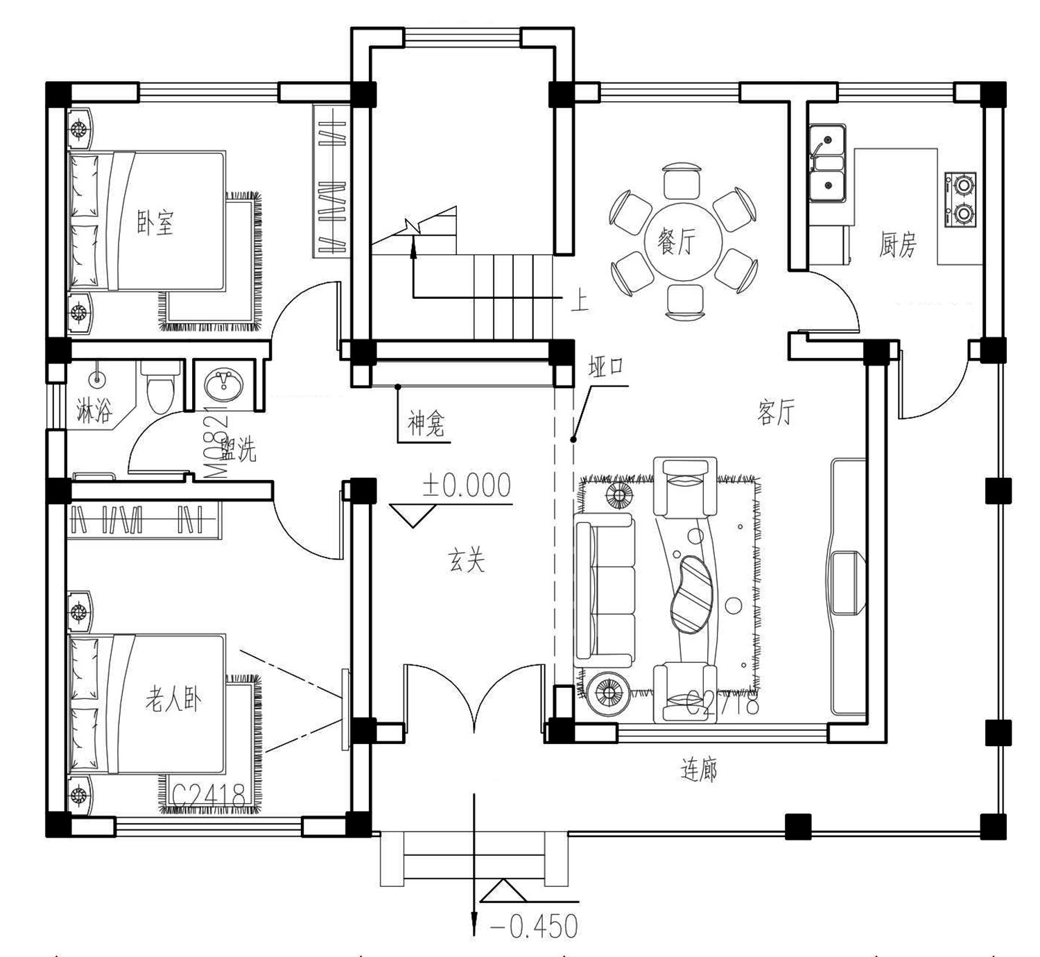
以后农村建别墅会成为平常事的,家家户户住别墅不是梦,今天给大家推荐="://www.lemeizhai.com/Picture.asp?PicClassID=88" target="_self">二层农村自建别墅设计,这是一套12m×10.1m的二层欧式田园风格的别墅,看起来很是顺眼,这套别墅的造价不超过40万。别墅有连廊非常实用晾晒衣物也不怕下雨,内部空间利用率非常好,很适合农村房屋自建。
效果图:

别墅层数: 二层
别墅风格: 欧式
占地面积:121㎡
开 间:12m
进 深:10.1m
建筑占地:12m×10.1m
建筑面积:219㎡
主体造价:28.0~33.0万
建筑结构:框架结构
效果图:



主体设计:

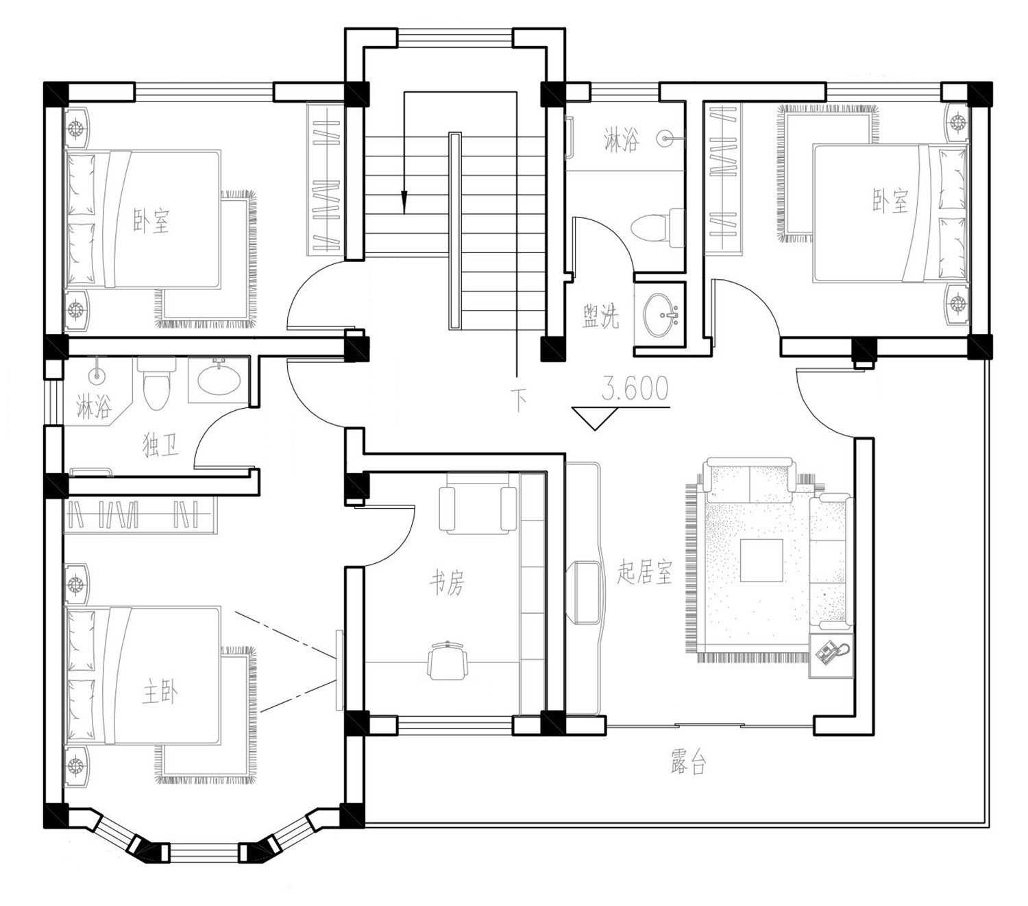
客厅、餐厅、厨房、卧室、公卫、阳台、露台。

。
转载请注明出自轩鼎自建房:://www.lemeizhai.com/