您好,欢迎访问轩鼎房屋图纸网,轩鼎建筑为您提供新农村房屋设计图、别墅设计图纸以及别墅定制设计与咨询服务。
 
 
  热门搜索:自建房 别墅设计 房屋设计图   
网站首页 图纸大全 定制设计 作品展示 建房图文 联系我们
一层房屋图纸
二层房屋图纸
三层房屋图纸
四层以上图纸
双拼房屋图纸
其他建筑图纸
 
 
 您的位置:首页 ->> 建房图文 ->> 新农村二层房屋设计大全(二层带车库别墅房屋设计图纸及效果图)
 
 

新农村二层房屋设计大全(二层带车库别墅房屋设计图纸及效果图)

发布时间:2022/11/3 14:13:17 点击数: 1369次 

在农村盖房子,大多数人还是倾向于选择别墅外观的样子既要好看又要造价不能太高的,而且内部的布局还要满足家庭人口所需。小编找了图库中的一款,今天我们就给大家介绍一栋这样类型的别墅,非常实用。

本款农村二层别墅单从外观看就很大气,这个配色您喜欢吗?外墙装修地很简单,这样很省钱,也很干净利索。

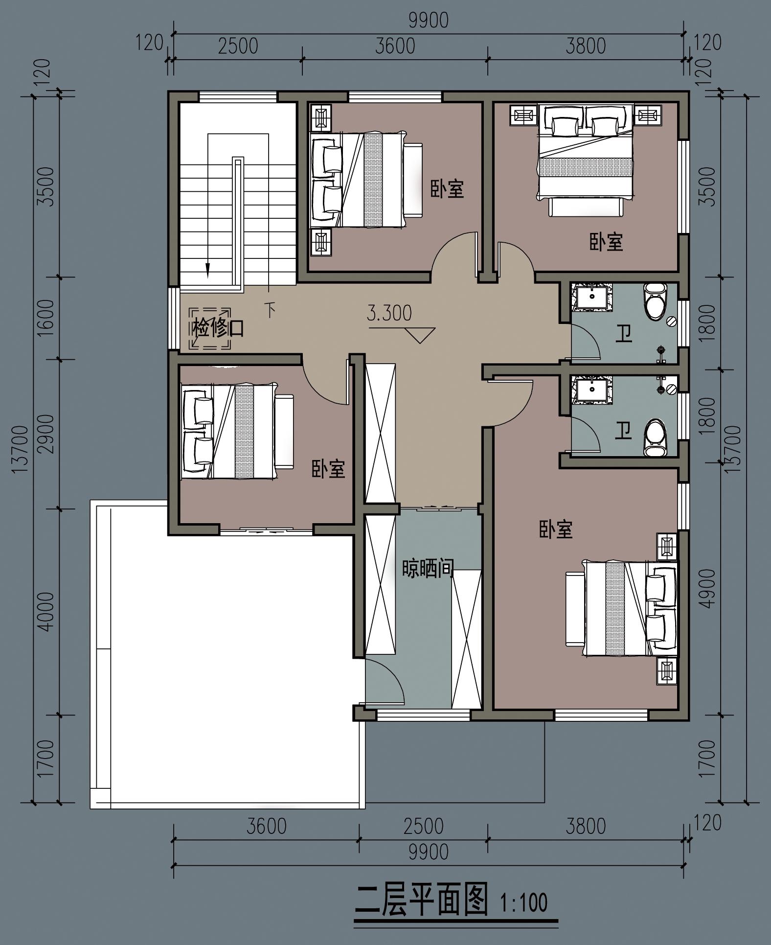
二层平面图.png

一层平面图上,可以看到这栋别墅的面宽9.9米,但是客厅和车库都很宽敞,女性倒车也不用发愁,甚至可以停进两辆车。房间的布局来看就是客厅、厨房、餐厅、卫生间这样的常规布局,但是确实感觉到房间都很大。

一层平面图.jpg

二楼一共四间卧室,一个大主卧和三间次卧,两个卫生间,以及一间晾晒间,还连着很大的露台。孩了看书学习在自己房间里进行就可以,有安静的学习氛围,这样楼上楼下一共是5间卧室,一家人住足够使用了,来了亲戚也住得下。

平面图.jpg

今天这栋农村二层住宅别墅,造型美观,布局简单,因此造价也不会很高,将来有钱了,想要改造,做起来也很方便。您觉得怎么样呢?


 
· 古色古香的一款中式别墅设计推荐...
· 农村自建房如何盖能省钱,小妙招...
· 两款经典的砖混结构的别墅,哪款...
· 过的不是简单的生活,过得是诗情...
· 大理石地砖有辐射吗(怎样选择大...
· 建房不一定得靠儿子,女儿有钱后...
· 2023年农村宅基地可以买卖吗(乡...
· 简约低调才是正轨
  关于我们 网站事务 帮助中心
客服热线:400-079-6579
客服QQ:10928711 10928755 10928799
地址:山东省潍坊财富大厦1801
 

预定须知
顾客必读
配送方式

 


Copyright 2016 www.lemeizhai.com All Rights Reserved ICP备案序号:鲁ICP备2026012448号-1
轩鼎房屋图纸 电 话:0536-3385581 3385582 传 真:0536-3385581 地 址:山东省潍坊财富大厦1801


keywords:房屋设计图 房屋设计图 农村房屋设计图 农村房屋设计图 建房图文