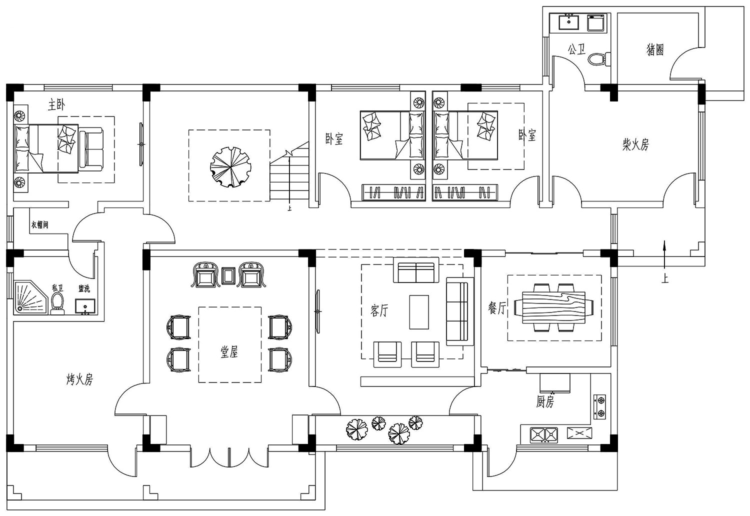
堂屋是传统中国民居中的礼仪空间,一般设计在房屋中间,又称“客堂”。堂屋是正房最中间的一间,用于尊祖敬神、祭天拜地、婚丧寿庆、禳鬼避凶。堂屋的作用对遵循传统的朋友很重要,婚丧嫁娶都离不开它,但随着现代房屋的出现那堂屋又该如何设计?今天给大家推荐一款="://www.lemeizhai.com/Picture.asp?PicClassID=91" target="_self">现代三层别墅设计,这套别墅有堂屋不像传统的堂屋那样在中间,但是如果不喜欢这套方案可以更改,本公司可以私人订制。
效果图:


别墅层数: 三层
别墅风格: 现代
占地面积:294㎡
开 间:21.5m
进 深:13.7m
建筑占地:21.5m×13.7m
建筑面积:546㎡
主体造价:80.0~85.0万
建筑结构:框架结构
效果图:


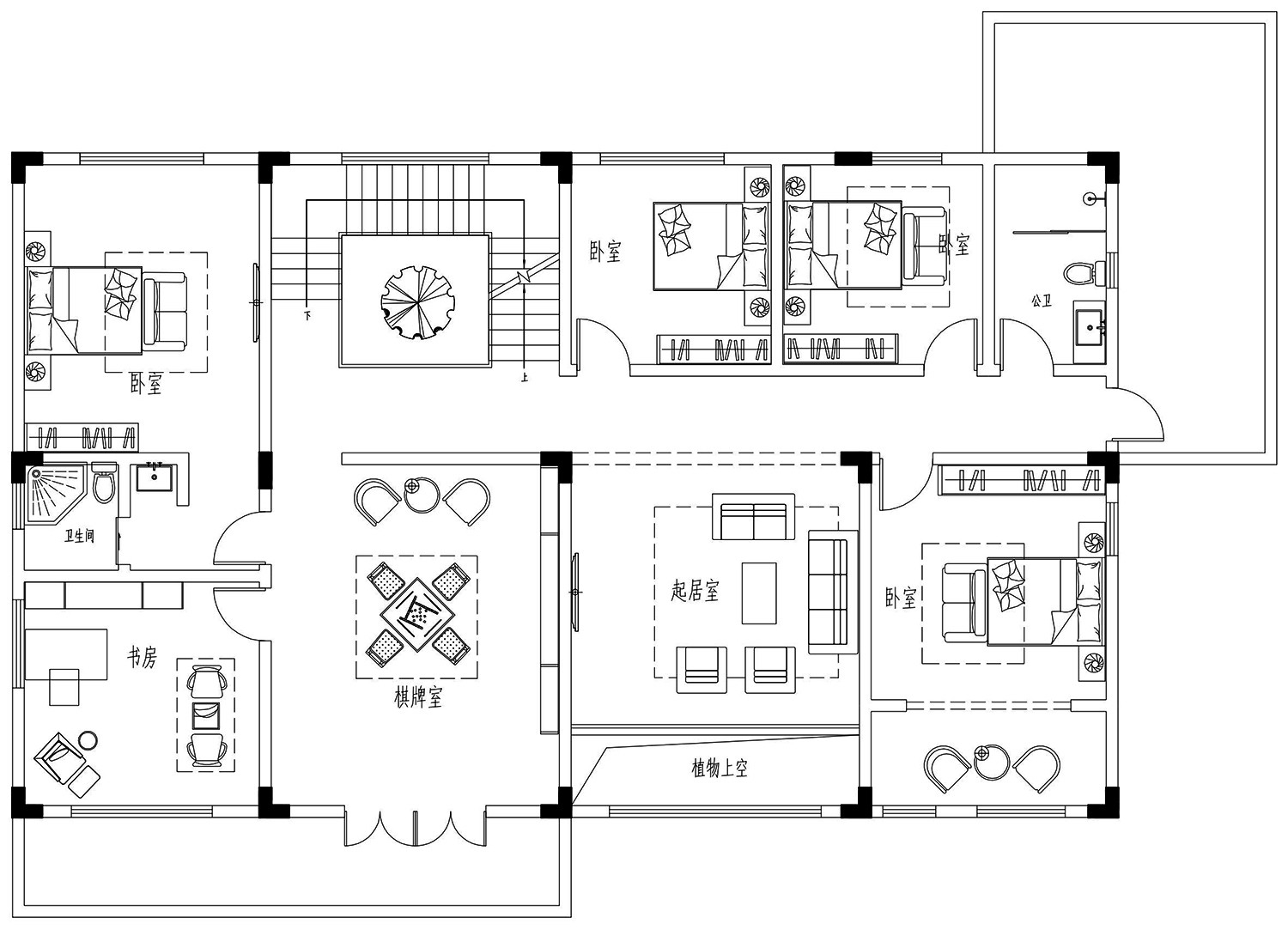
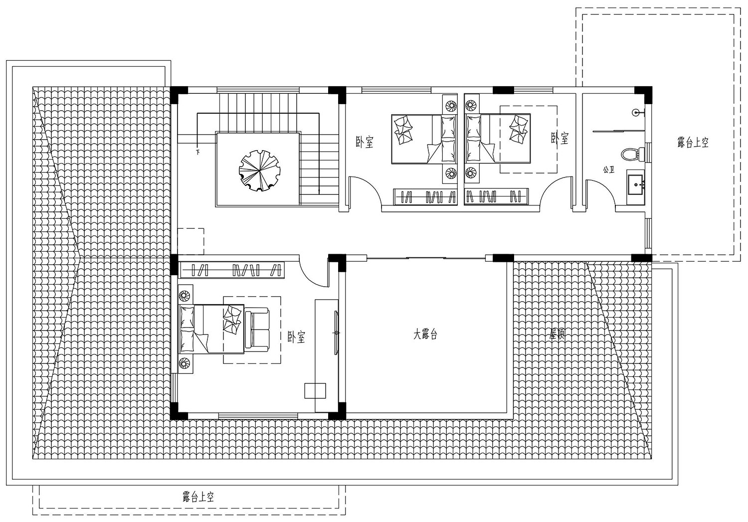
主体设计:

客厅、餐厅、厨房、卧室、公卫、阳台、露台。

。

转载请注明出自轩鼎自建房:://www.lemeizhai.com/