家住浙江金华的金老板很喜欢新中式的农村别墅,想要在农村老家在建一套,在网上找到了我们轩鼎别墅设计,设计师刘工给金老板设计了一款有大露台三层="://www.lemeizhai.com/search.asp?SearchType=Software&imageField.x=26&imageField.y=39&SearchKey=%D0%C2%D6%D0%CA%BD" target="_self">新中式别墅设计,这套房子和绿植很配,院内种几棵树绝对错不了。别墅比较现代,内部布局非常宽裕,客厅厨房的布局令人舒适。
效果图:

别墅层数: 三层
别墅风格: 新中式
占地面积:113㎡
开 间:10.4m
进 深:12.2m
建筑占地:10.4m×12.2m
建筑面积:281.56㎡
主体造价:42.0~47.0万
建筑结构:砖混结构
效果图:


主体设计:。

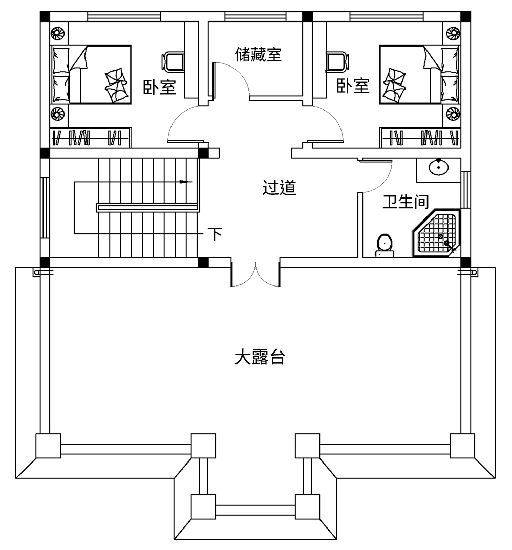
客厅、餐厅、厨房、卧室、公卫、阳台、露台。

。

转载请注明出自轩鼎自建房:://www.lemeizhai.com/