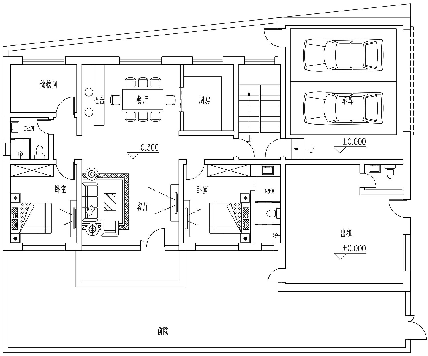
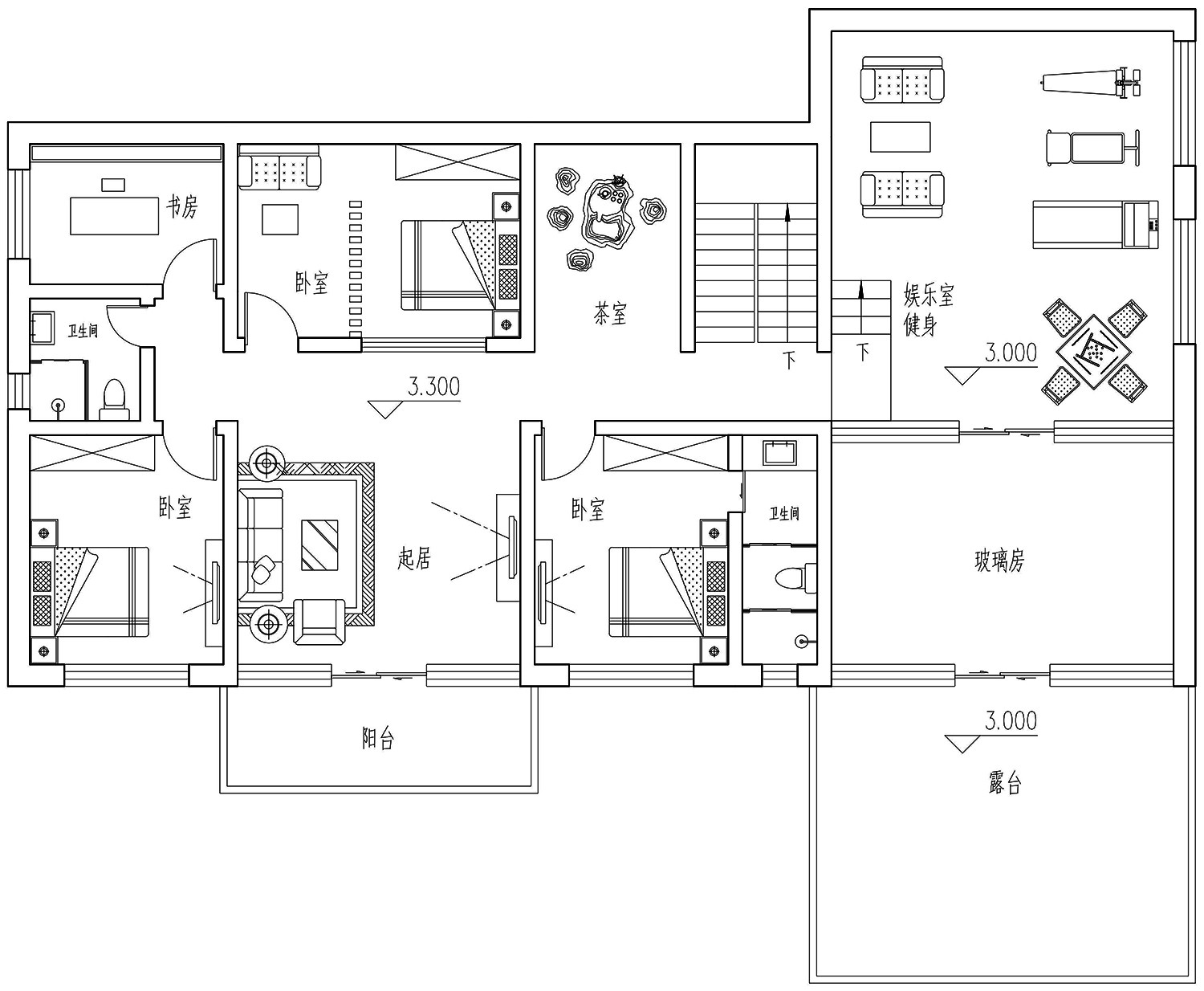
在家就能赚钱的话,其实只要能赚到钱很多人都会愿意的。今天给大家推荐一款山东张先生私人订制的="://www.lemeizhai.com/Picture.asp?PicClassID=88" target="_self">二层农村别墅设计,这是一款可以开商店的农村别墅,张先生家是开熟食店的想要建一栋新房,就找到我们。这是一款适合农村地区的欧式别墅,火红的屋顶非常喜庆,别墅大门朝东有车库房子留有一部分做店铺,一层的布局四平八稳,二层有阳光房和健身室,锻炼身体休息娱乐都可已。以
效果图:


别墅层数: 二层
别墅风格: 欧式
占地面积:340㎡
开 间:17m
进 深:20m
建筑占地:17m×20m
建筑面积:424㎡
主体造价:62.8~67.8万
建筑结构:砖混结构
效果图:




主体设计:

客厅、餐厅、厨房、卧室、公卫、阳台、露台。

。
转载请注明出自轩鼎自建房:://www.lemeizhai.com/