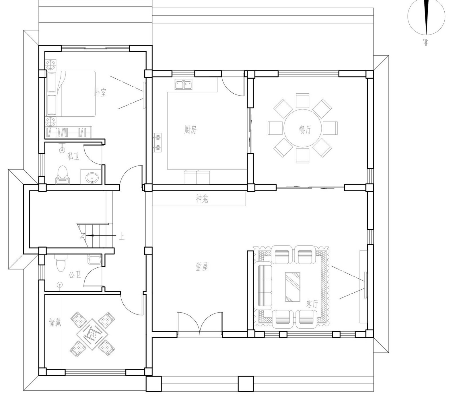
农村建房一定要有堂屋而且堂屋必须剧中,因为这是尊重传统,堂屋婚丧嫁娶都用得着对客人也是尊重体现是很重要的。今天给大家推荐一款有堂屋的="://www.lemeizhai.com/Picture.asp?PicClassID=91" target="_self">三层农村别墅设计,这套别墅是现代风格的有一种厚重感大气好看,有钱人最适合这样的别墅,这套别墅有堂屋,堂屋在中间和传统的堂屋差不多,别墅的内部空间大,客厅、堂屋、餐厅、厨房都很大,楼高三层每一层的房子都不小,适合人口多的家庭居住。
效果图:



别墅层数: 三层
别墅风格: 现代
占地面积:182㎡
开 间:13.6m
进 深:13.4m
建筑占地:13.6m×13.4m
建筑面积:471㎡
主体造价:72.0~77.0万
建筑结构:框架结构
效果图:


主体设计:

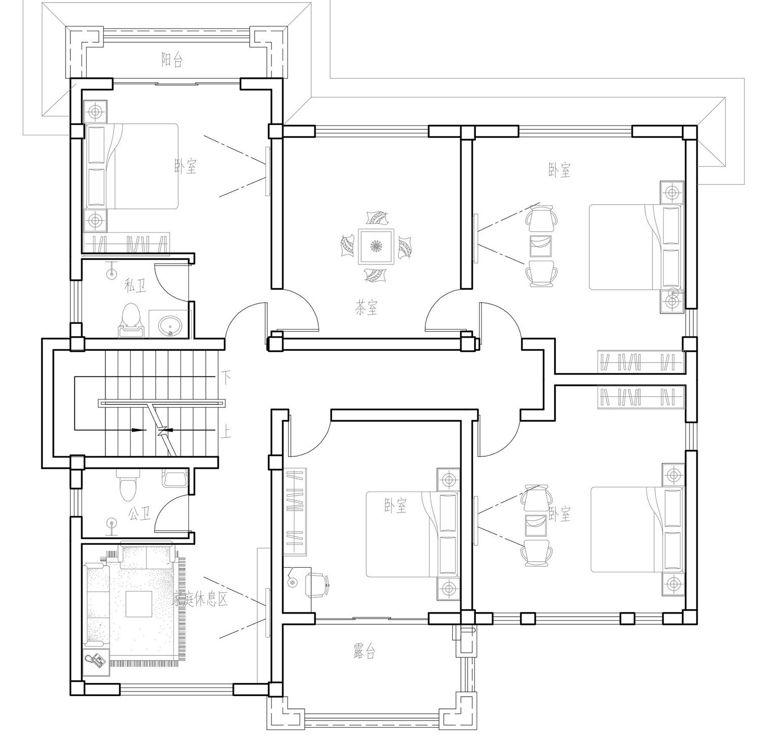
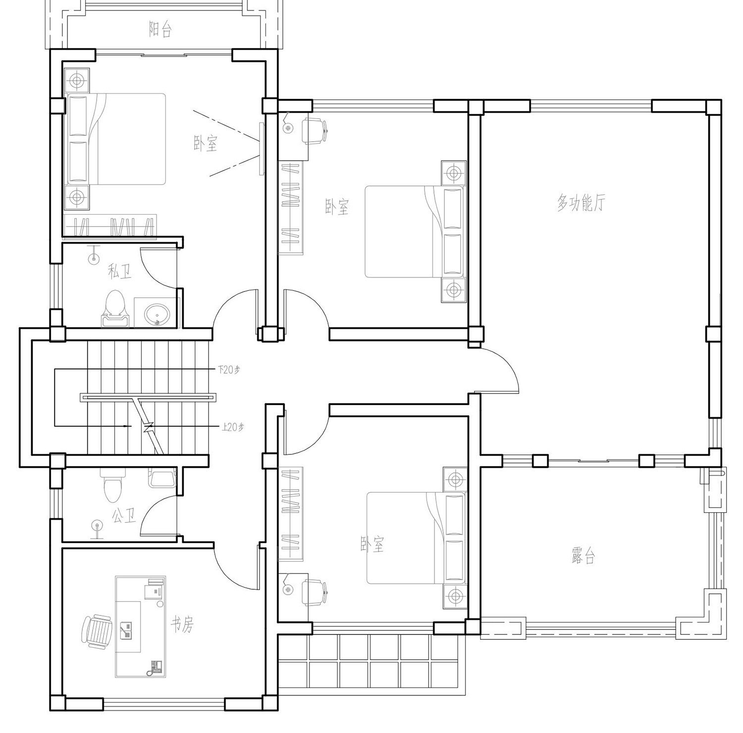
客厅、餐厅、厨房、卧室、公卫、阳台、露台。

。

转载请注明出自轩鼎自建房:://www.lemeizhai.com/