忙忙碌碌又一年,还有一个多月的时间就要新年了,在外打工的大家也都开始盼着快回家了吧。老人和孩子也都在期盼着在外打工的你们。湖南李先生决定年前盖一栋二层自建房,让在家里的父母和孩子,能舒舒服服的住着,自己和妻子也能够在外面放心的工作,没有后顾之忧。今天 我们来欣赏一下湖南李先生的这一套带院子的二层别墅效果图及户型图。

这套农村二层别墅是带着小院一起设计的,整体15.8*21米。孩子能够在院子里面玩耍,在老人的视线范围内,过节回家李先生的汽车也直接停到院里。整栋建筑欧式偏田园风格,红瓦铺顶,外挂板材立面,配上黑色的护栏,干净整洁,过年在挂上大红灯笼,又是另一番的景象。

我们能很清楚地看到院子和别墅的划分。院子的一角也保留了卫生间的设计,厨房位于整个建筑的侧边,非常符合农村的建房。进入室内,对面是神位,右手是餐厅,离厨房最近。另有一间带卫生间主卧和两间次卧,以及公共卫生间,客厅做了悬挑的设计,看起来非常的大气十足,彰显业主生活品质。

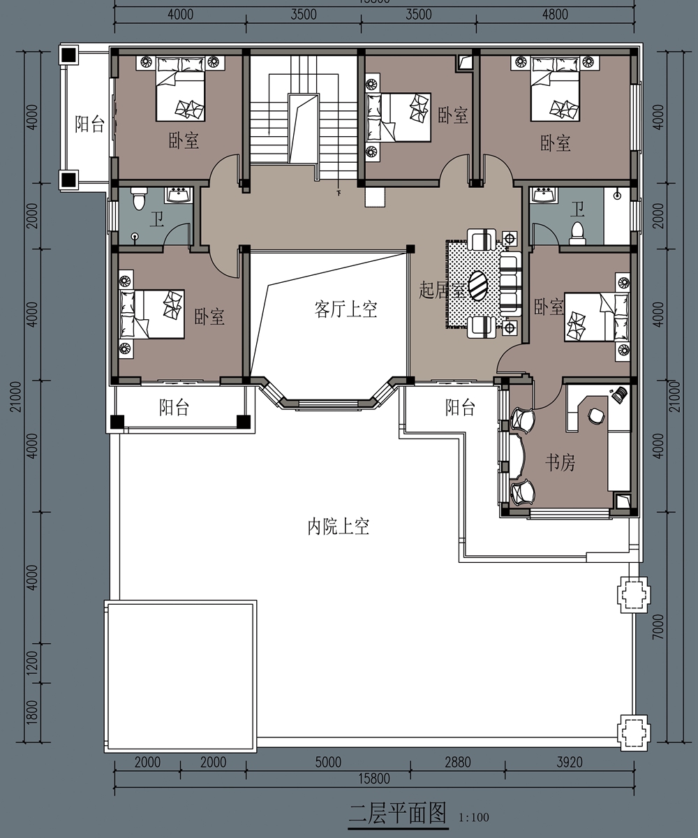
二层两间带卫生间的主卧+三间次卧,还有起居室和书房,以及三处卧室和书房外的阳台。老人和孩子平时都住在一楼,为了过节的时候家里的兄弟姐妹都来有居住的地方,李先生把二楼基本都做成了卧室的设计。这样一大家子过年凑在一起,想想都温馨热闹。
