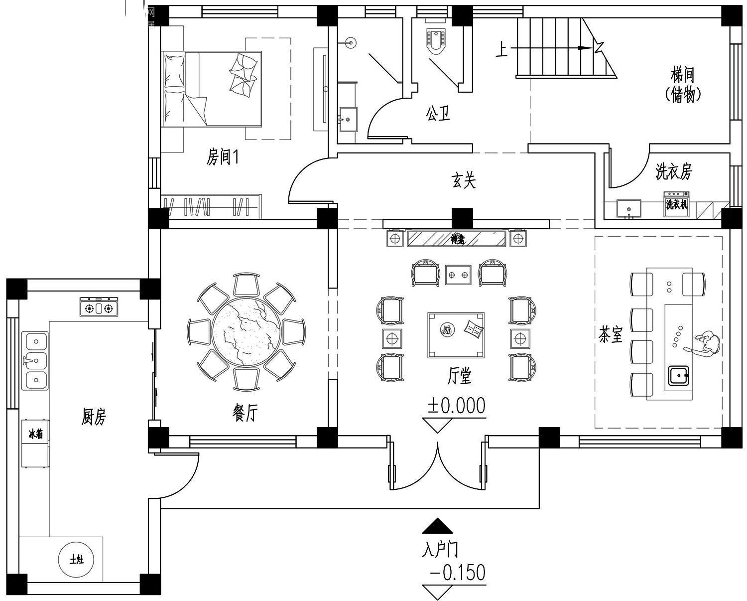
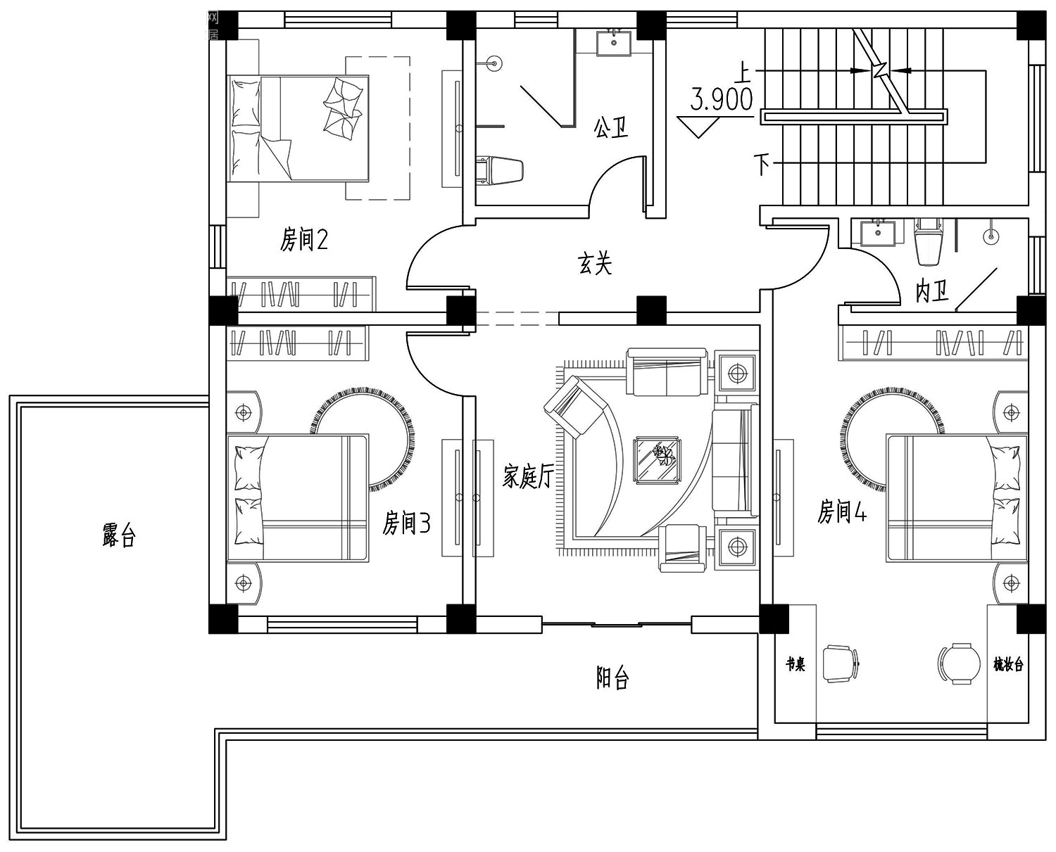
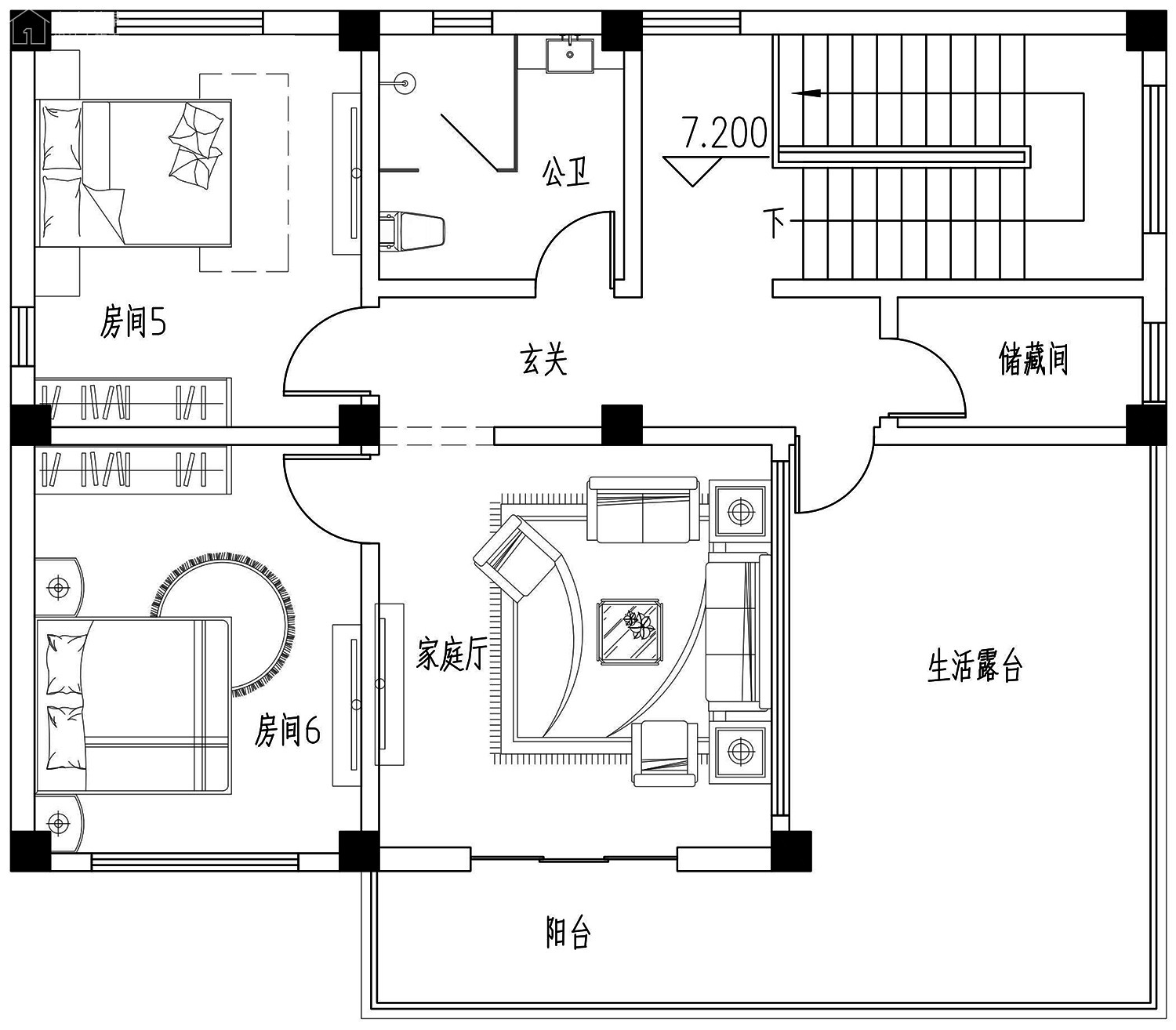
11月10日多云,小编继续推荐令诸位满意的农村自建别墅,给大家带来的是于总私人订制的="://www.lemeizhai.com/search.asp?SearchType=Software&imageField.x=47&imageField.y=45&SearchKey=%D0%C2%D6%D0%CA%BD" target="_self">新中式别墅设计,三层的楼高看起来挺拔好看,底层是青砖上层是白色真石漆,有两个露台。内部布局还算传统没有客厅只有一个堂屋,二三层为主要居住区。这款别墅比较注重隐私比较现代化是这款别墅的卖点。
效果图:




别墅层数: 三层
别墅风格: 中式
占地面积:131㎡
开 间:11.5m
进 深:11.4m
建筑占地:11.5m×11.4m
建筑面积:311㎡
主体造价:45.0~50.0万
建筑结构:框架结构
效果图:


主体设计:

客厅、餐厅、厨房、卧室、公卫、阳台、露台。

。

转载请注明出自轩鼎自建房:://www.lemeizhai.com/