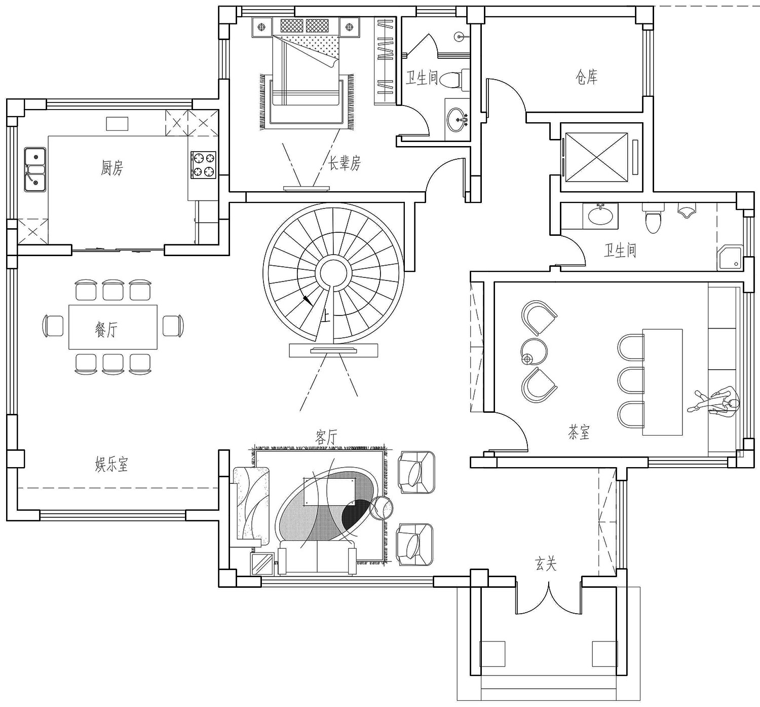
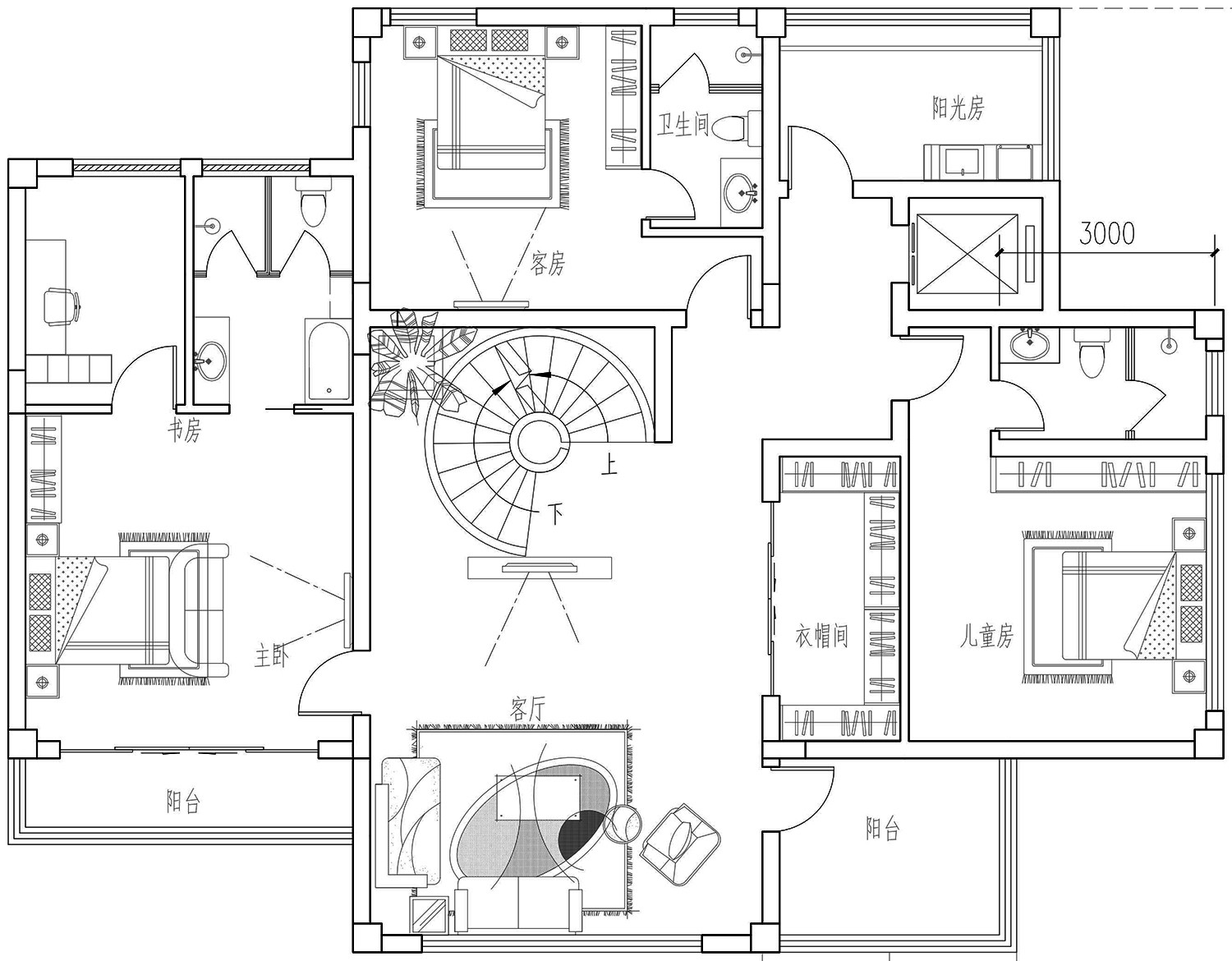
喜欢农村别墅的朋友千万不要忘记收藏本网站,偶尔打开看看会有不一样的惊喜。今小编给大家推荐李总私人订制的欧式="://www.lemeizhai.com/Picture.asp?PicClassID=91" target="_self">三层农村别墅设计,这套别墅看起来很大气蓝色的屋顶和白色真石漆非常搭,这套别墅采光好内部有旋转楼梯,玄关和客厅并列中间是旋转楼梯,一层还有个小仓库,二层就是主要的居住区,三层是多功能厅户主可以随意搭配。
效果图:



别墅层数: 三层
别墅风格: 欧式
占地面积:255㎡
开 间:16.9m
进 深:15.1m
建筑占地:16.9m×15.1m
建筑面积:499㎡
主体造价:80.0~85.0万
建筑结构:框架结构
效果图:



主体设计:

客厅、餐厅、厨房、卧室、公卫、阳台、露台。

。

转载请注明出自轩鼎自建房:://www.lemeizhai.com/