时代不同房屋也是不同的,现在时兴建别墅,未来可能住的比现在更好也可能更加经济实惠,不管怎么变人人都能住上好房子才是我们的未来。今天小编给大家推荐一款田园风情的="://www.lemeizhai.com/Picture.asp?PicClassID=91" target="_self">欧式三层农村别墅设计,这套别墅主体造价:70.0~75.0万左右,整体非常漂亮,大落地窗和露台是标配,室内有挑空客厅。
效果图:


别墅层数: 三层
别墅风格: 欧式
占地面积:200㎡
开 间:14m
进 深:14.3m
建筑占地:14m×14.3m
建筑面积:480㎡
主体造价:70.0~75.0万
建筑结构:砖混结构
效果图:




主体设计:

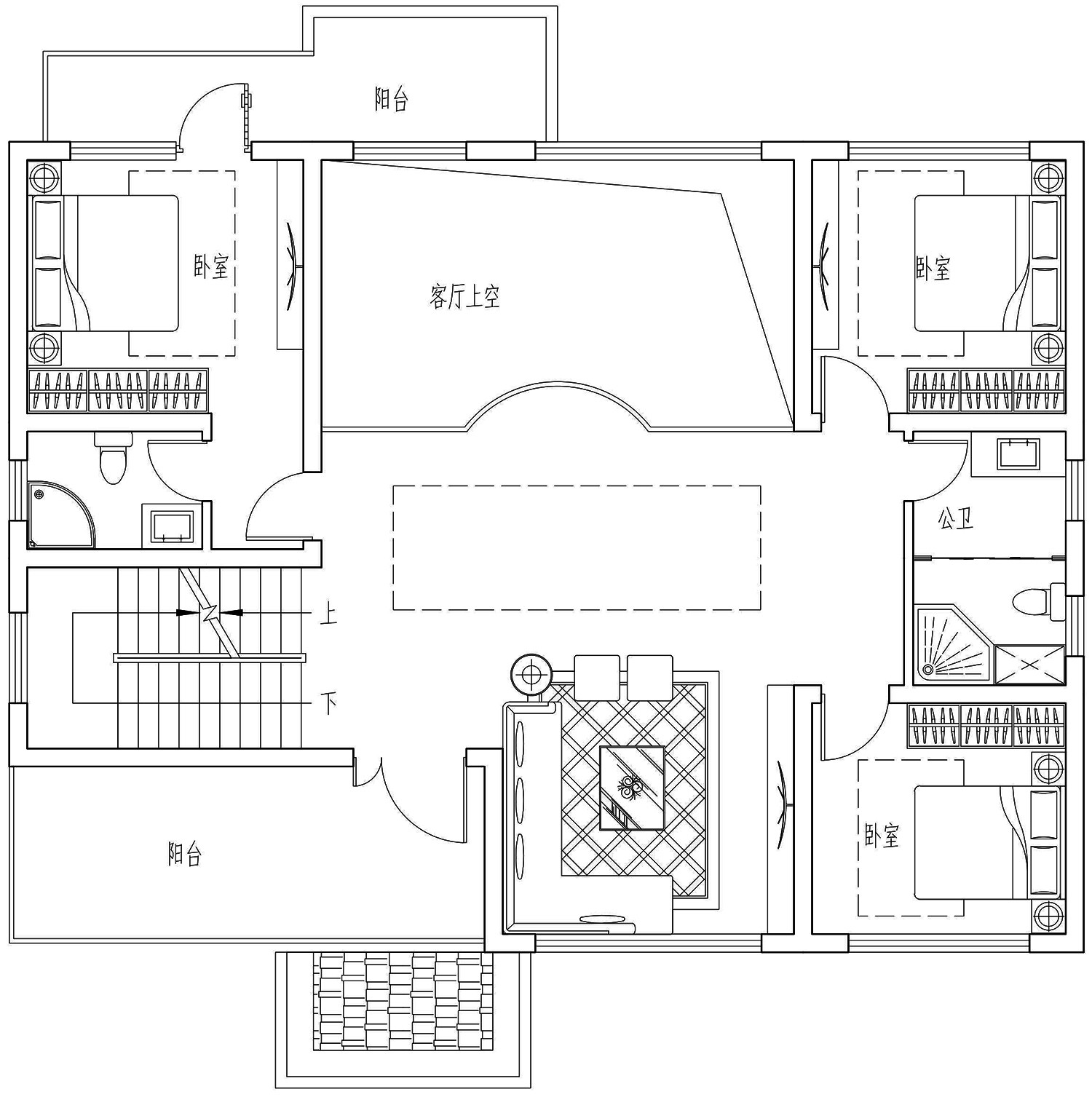
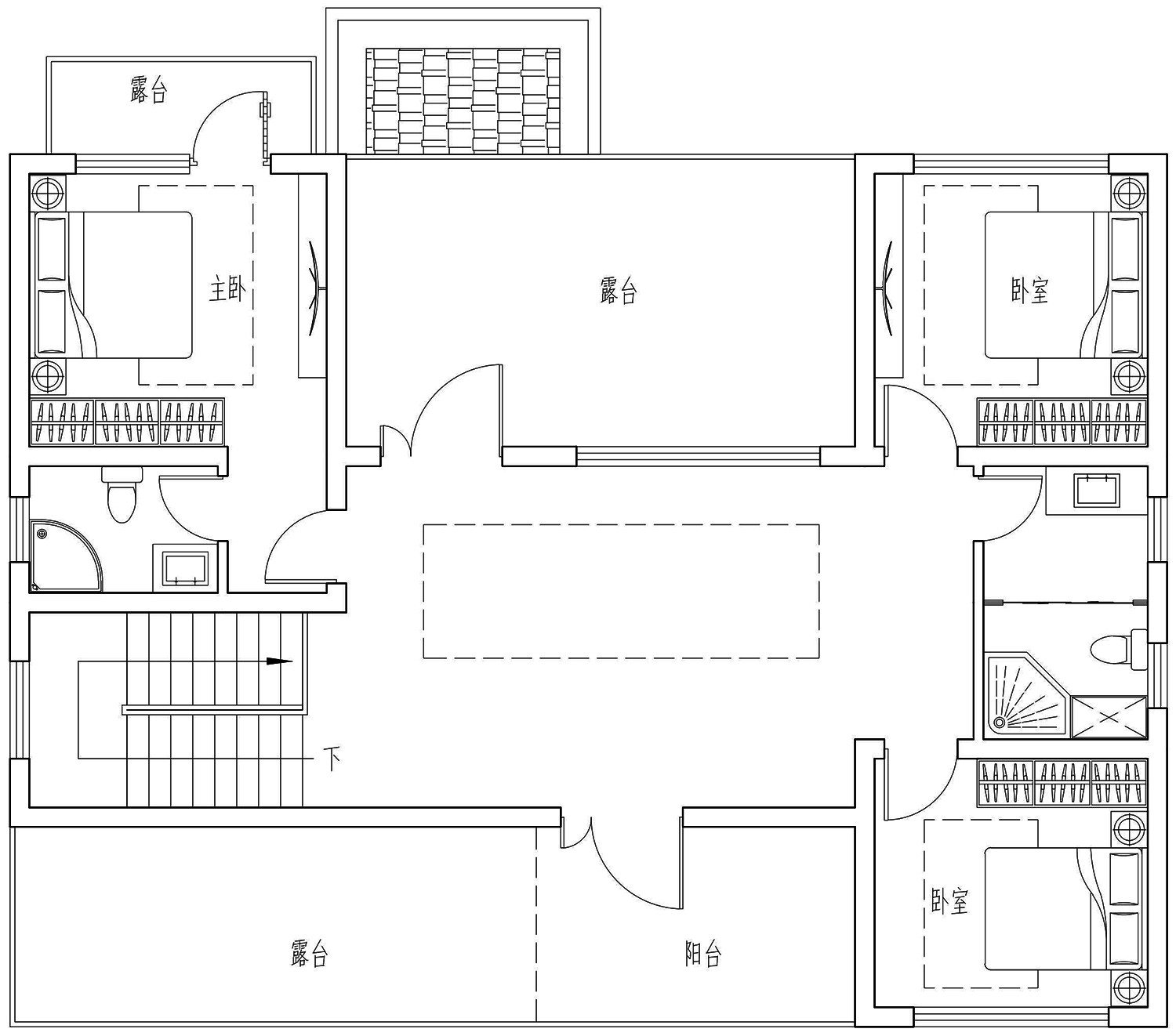
客厅、餐厅、厨房、卧室、公卫、阳台、露台。

。

转载请注明出自轩鼎自建房:://www.lemeizhai.com/