这就是宅基大的好处,大宅基的朋友看过来!,今天给大家推荐浙江温总私人订制的="://www.lemeizhai.com/Picture.asp?PicClassID=91" target="_self">三层别墅设计,这客户又是浙江的,看来哪儿有钱人多啊。这套别墅是现代风格的还是很漂亮的,农村建别墅选择这样一款别墅一准错不了。
效果图:

别墅层数: 三层
别墅风格: 现代
占地面积:288㎡
开 间:18.5m
进 深:15.6m
建筑占地:18.5m×15.6m
建筑面积:448㎡
主体造价:65.0~70.0万
建筑结构:砖混结构
效果图:




主体设计:

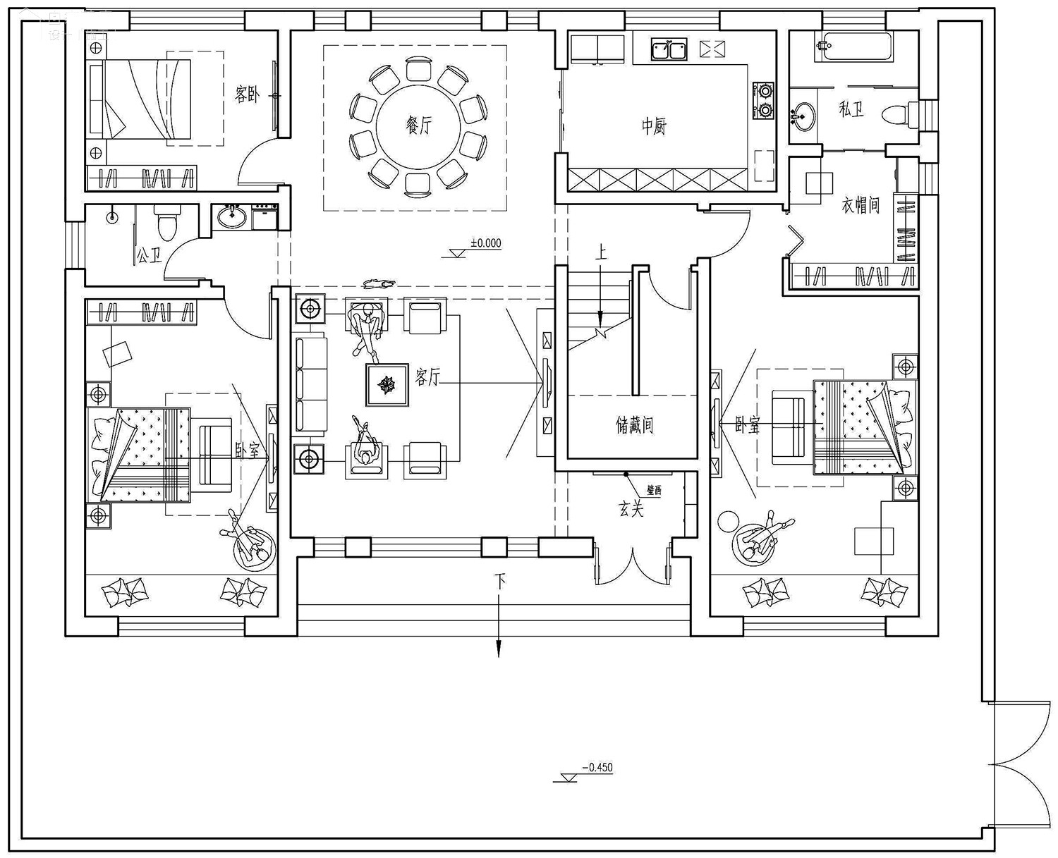
客厅、餐厅、厨房、卧室、公卫、阳台、露台。
一层进门是玄关有三个卧室,客厅厨房近乎居中,楼梯的占用很小。

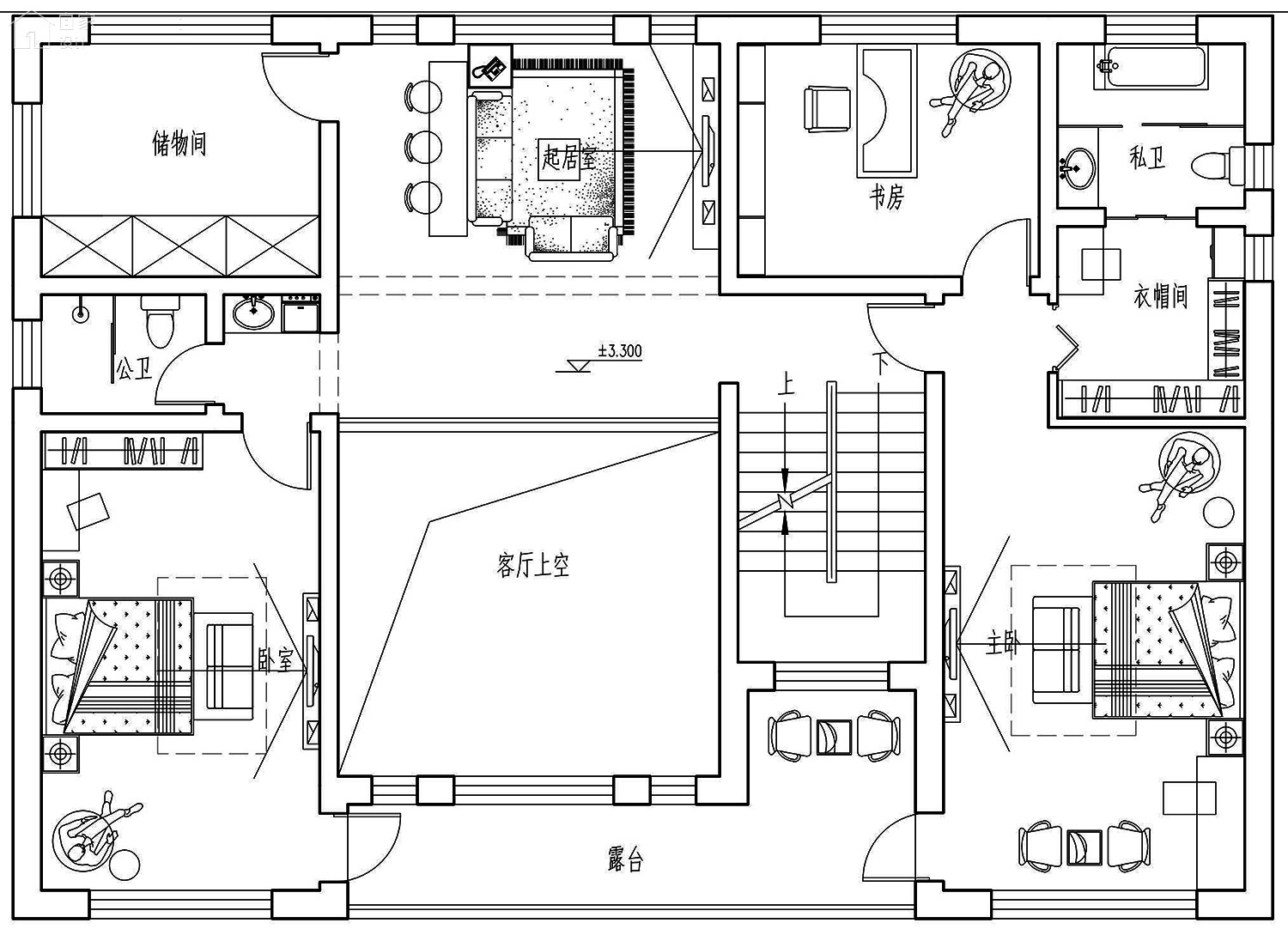
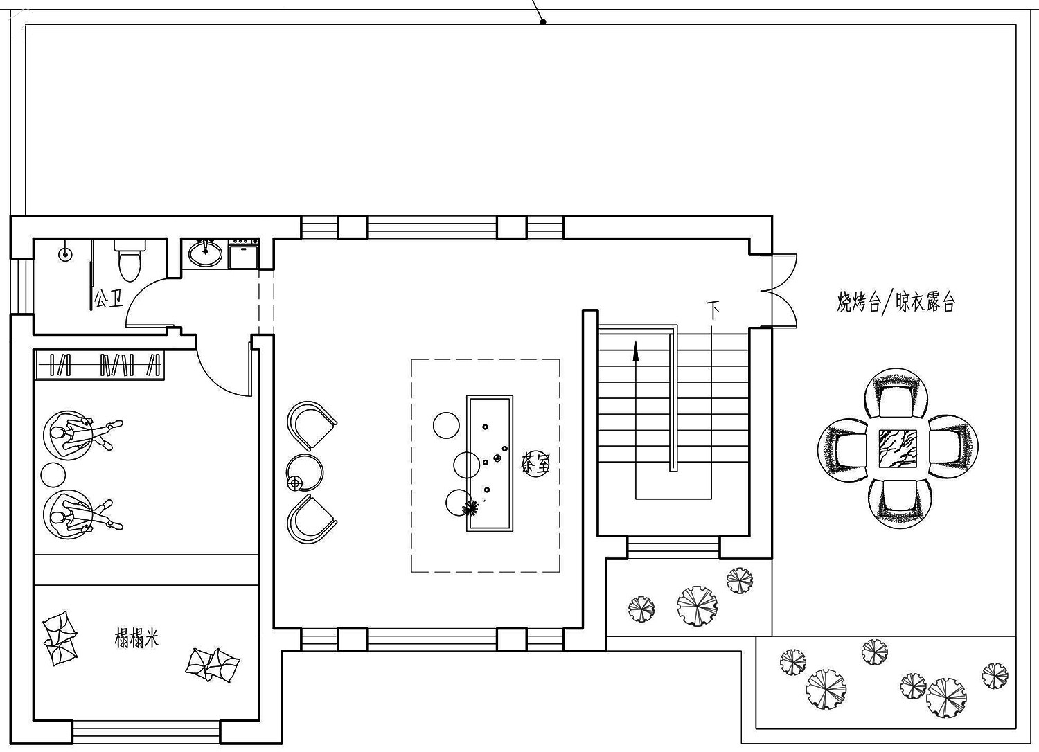
二层是挑空的只有两个卧室,剩下的是书房和储物间。三层是露台和娱乐活动场所。
。

转载请注明出自轩鼎自建房:://www.lemeizhai.com/