农村建别墅不是了不得的事,农村只要愿意建就能建一栋不错的二层小楼,。今天给大家推荐一款孙先生私人订制的二层现代别墅设计,真石漆和大量的蓝色文化石非常好看,还有一个不大不小的庭院正合适,牺牲一部分的庭院面积增加了露台的面积还是很实用的,窗口更大采光更好。
效果图:



别墅层数: 二层
别墅风格: 现代
占地面积:219㎡
开 间:13.2m
进 深:16.3m
建筑占地:13.2m×16.3m
建筑面积:277㎡
主体造价:37.0~42.0万
建筑结构:砖混结构
效果图:


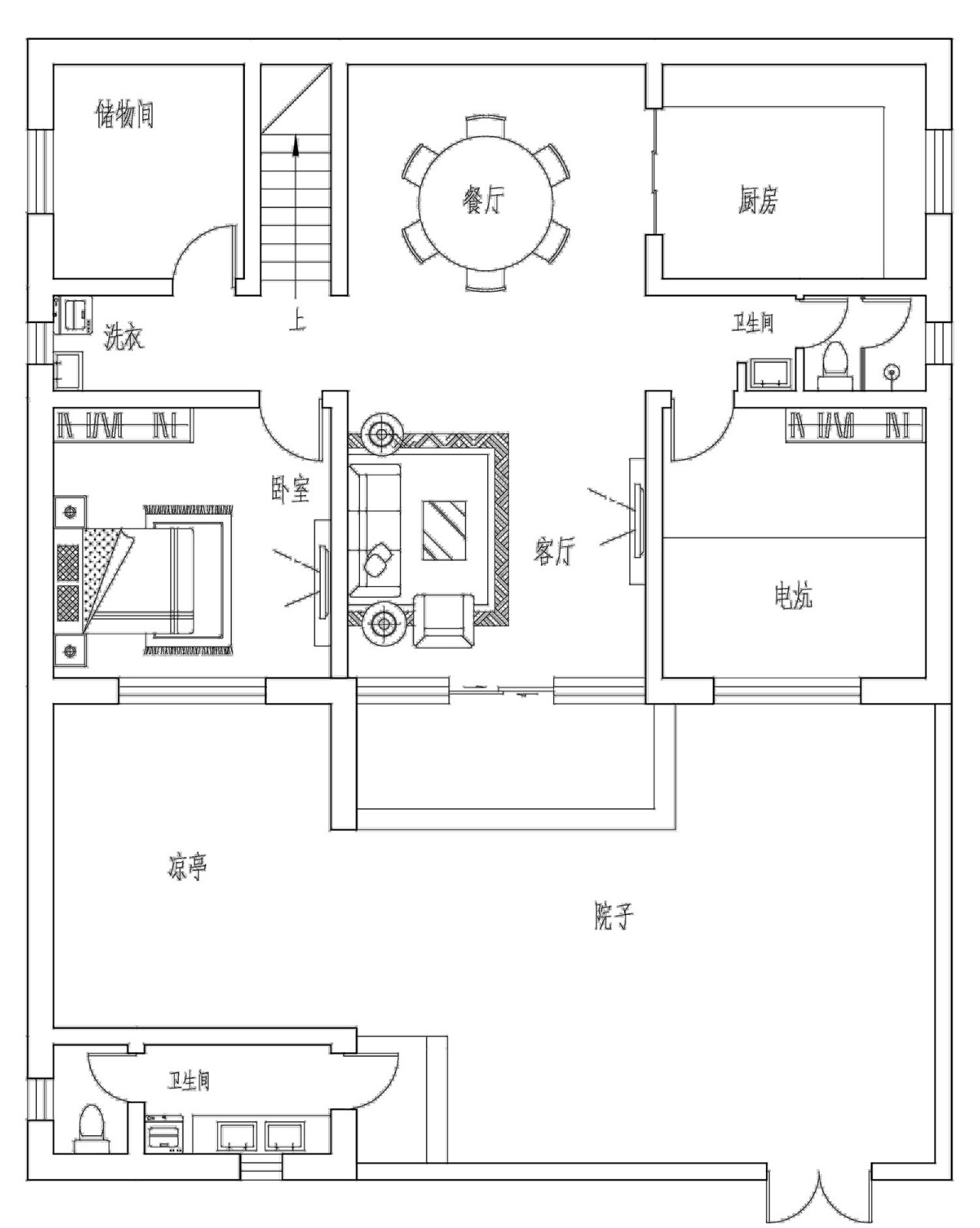
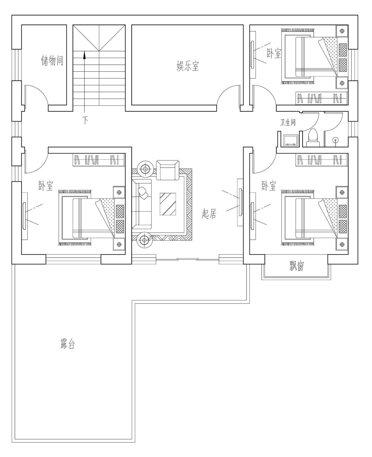
主体设计:

客厅、餐厅、厨房、卧室、公卫、阳台、露台。

。
转载请注明出自轩鼎自建房:://www.lemeizhai.com/