在农村自建房中,也并不是所有的人都喜欢排场豪华,炫耀露富,很多的人还是喜欢低调一些的户型。今天 ,小编就为大家推荐一款低调乡村三层别墅房屋设计图,外表非常朴素,最重要的是它占地不是很大,几乎家家都能盖,而且房间却不少,非常实用。
从此款农村别墅效果图上我们可以看出:外表并不是很亮丽的那种色彩,但是造型还是可以的,这样的配色会给大家一种非常低调的感觉。两个大露台,远眺风景,喝茶休息都是很不错的。虽没有专门的车库,但旁边规划了停车的位置,所以院里停放一辆车的位置还是绰绰有余的。再也不用把车放在路边了,不安全。

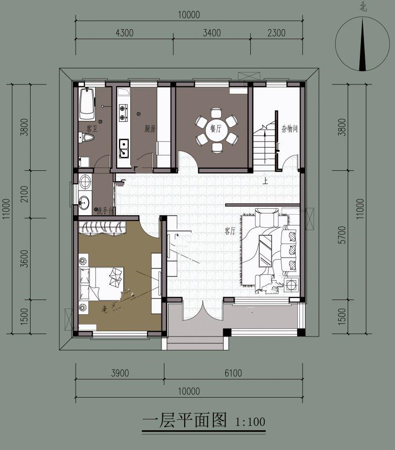
一层:客厅、餐厅、老人卧室都很宽敞,卫生间,厨房、餐厅都有窗户,通风很好,屋内空气 质理不会差。

二层:一个主卧一个次卧,主卧带独产卫生间和衣帽间。有人说卧室带卫生间空气质量差,但这间屋子里,卫生间、衣帽间、卧室连着有三个窗户,通风效果会很好的。另外 还有个大大的起居室 ,其实根据需要也可以改成其它功能室。
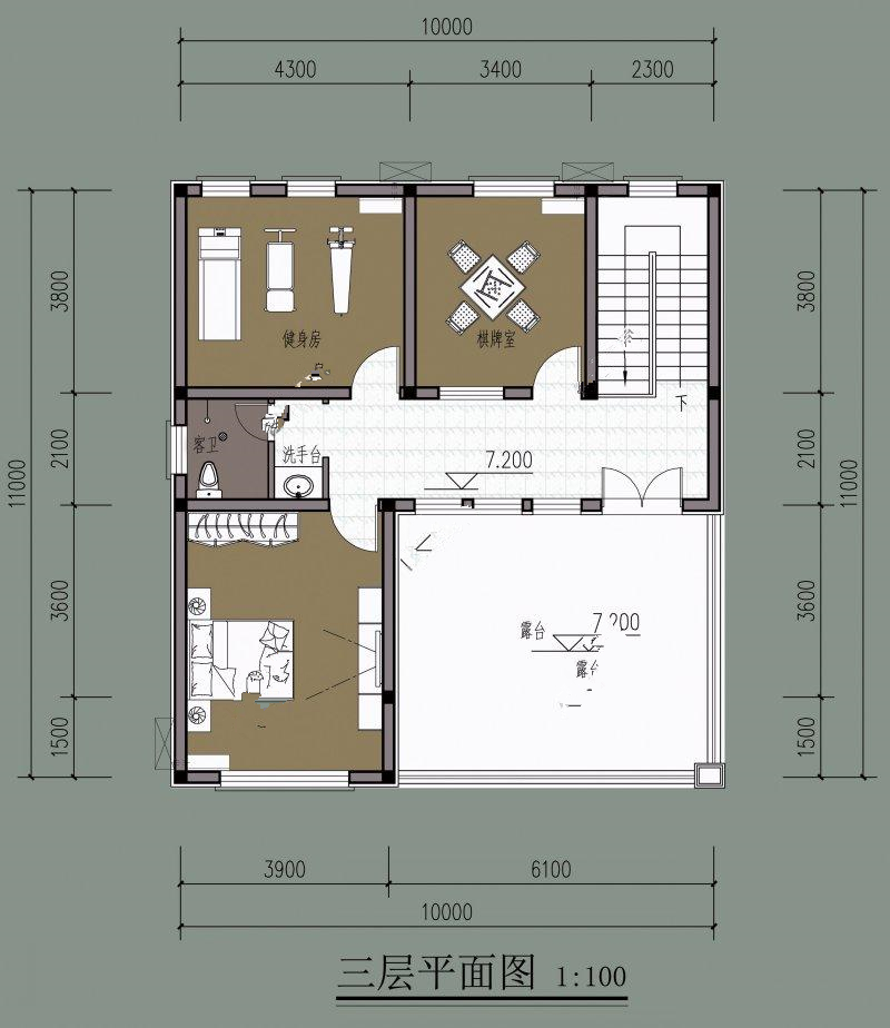
三层:三层更有特色,除去一个卧室之外,还有一间健身房,一间棋牌室,生活真是怡然自得。大大的露台,喝茶、看报、晒太阳都是不错的。
这样一栋10*11m低调乡村三层别墅房屋设计图,您觉得怎么样?