农村建别墅,二层的就很适合你,在农村建房子不用太花哨,简单好看才是王道。今天给大家推荐一款山东张先生私人订制的新式二="://www.lemeizhai.com/Picture.asp?PicClassID=88" target="_self">层农村自建别墅设计,这套别墅外观简单精美漂亮,纯白色的墙体和深色的屋顶还有青砖非常漂亮,不同于传统的瓦片新式瓦片排水更好,窗口设计安全实用保障隐私。这样的房子建在农村绝对会有人夸你懂行!
效果图:

别墅层数: 二层
别墅风格: 新式
占地面积:148㎡
开 间:16.5m
进 深:16m
建筑占地:16.5m×16m
建筑面积:297㎡
主体造价:30.0~35.0万
建筑结构:框架结构
效果图:


主体设计:。

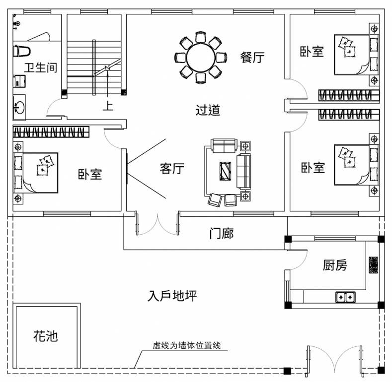
客厅、餐厅、厨房、卧室、公卫、阳台、露台。

。
转载请注明出自轩鼎自建房:://www.lemeizhai.com/