农村别墅的效果图不是越艳丽越好,有时候好看的图纸建出的别墅往往都差强人意,这跟施工团队有关,优秀的施工团队实际效果和效果图差不多的,优秀的施工团队才能建出好别墅。今天给大家推荐孙总私人订制的="://www.lemeizhai.com/Picture.asp?PicClassID=91" target="_self">三层农村自建别墅设计,这套别墅看起来简单实际建一套出来还是很惊艳的。这套别墅的庭院面积小,大多数空间被别墅占据,麻雀虽小五脏俱全,电梯前后院一概不缺非常方便。
效果图:



别墅层数: 三层
别墅风格: 欧式
占地面积:103㎡
开 间:9.4m
进 深:11m
建筑占地:9.4m×11m
建筑面积:265㎡
主体造价:37.4~42.4万
建筑结构:框架结构
效果图:


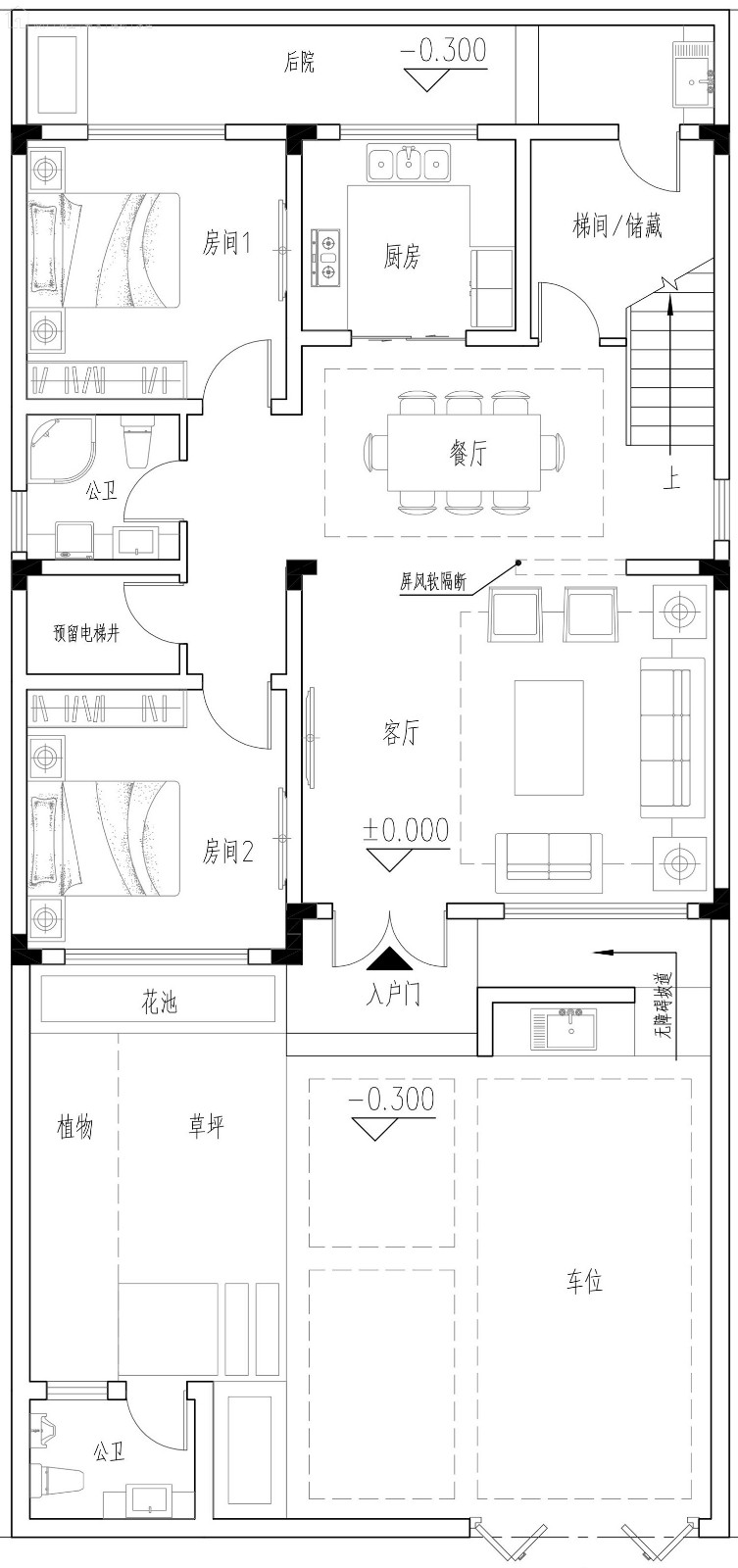
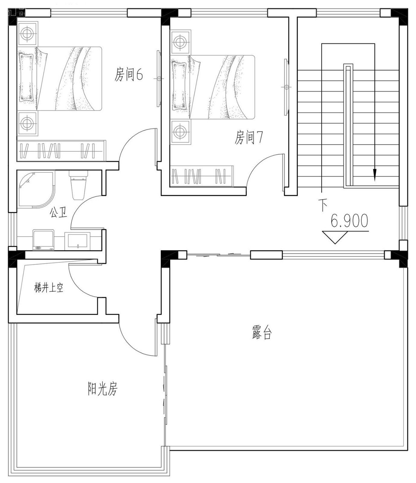
主体设计:

客厅、餐厅、厨房、卧室、公卫、阳台、露台。

。

转载请注明出自轩鼎自建房:://www.lemeizhai.com/