农村自建房现在已经变得五花八门了,什么中式、巴洛克、法式、古典等。只要有钱什么样的都有,有的千奇百怪,什么景观别墅,家庭会议室的别墅,还有双拼自建房应有尽有。今天给大家推荐一款有景观设计的小户型="://www.lemeizhai.com/search.asp?SearchType=Software&imageField.x=27&imageField.y=44&SearchKey=%D0%C2%D6%D0%CA%BD" target="_self">新中式农村自建房,黑瓦青砖很有诗意,门口上书幸福之家。
效果图:


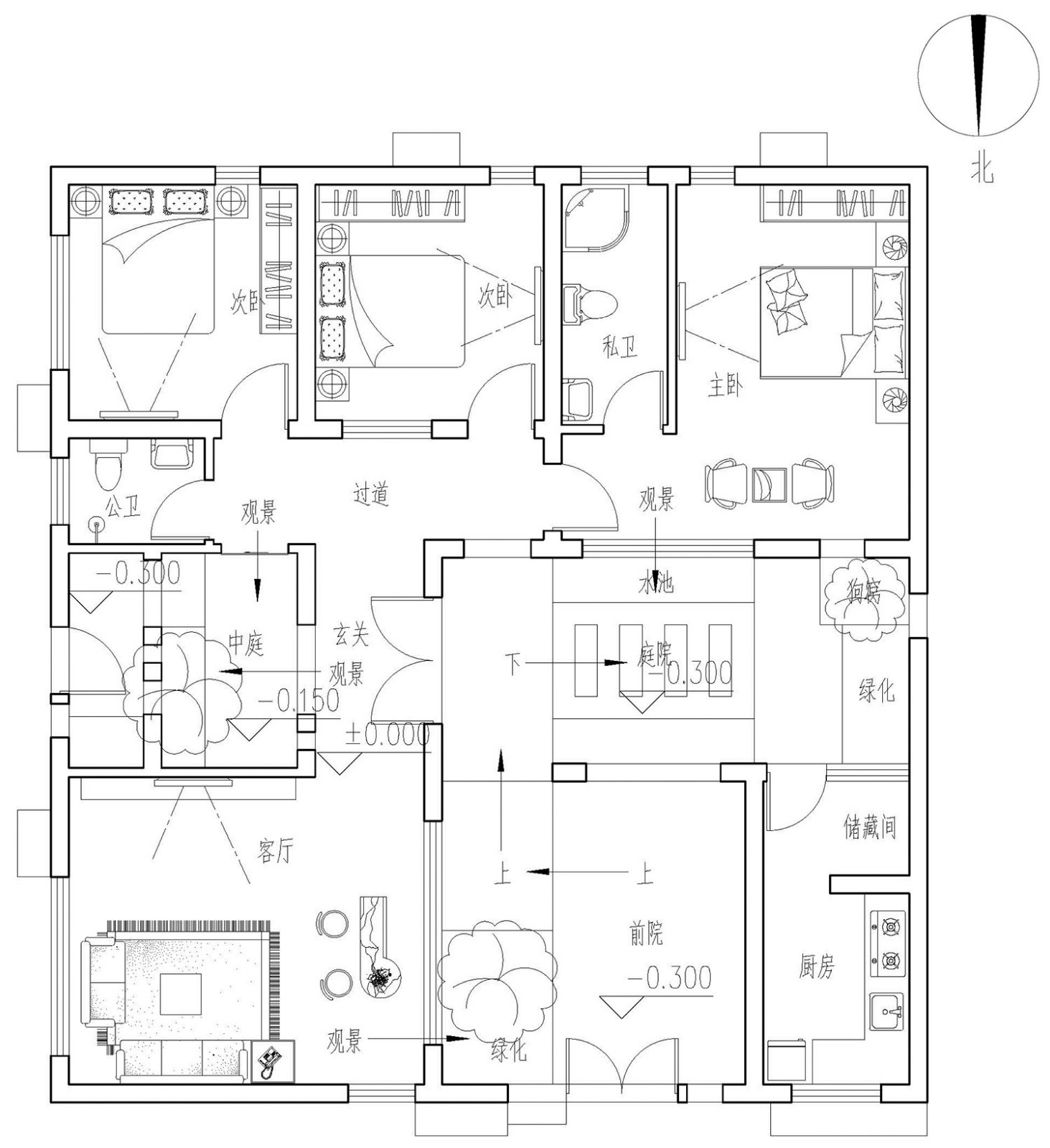
别墅层数: 一层
别墅风格: 中式
占地面积:141㎡
开 间:11.5m
进 深:12.3m
建筑占地:11.5m×12.3m
建筑面积:102㎡
主体造价:12.0~17.0万
建筑结构:砖混结构
效果图:


主体设计:
客厅、餐厅、厨房、卧室、公卫、阳台、露台。

。
转载请注明出自轩鼎自建房:://www.lemeizhai.com/