早晨迎接着朝阳,楼上楼下都亮堂起来。这座农村自建的三层田园别墅房屋设计,13*10的尺寸,所以一般农村宅基地都可以比照着建一栋。
看平面图:一层进门正对的墙可以放神龛,左手是卧室,右手是客厅。这次的卧室在南面,向阳,又在一层,老人住合适。客厅和餐厅也都很大,美中不足的是卫生间因为要和楼上统一位置,所以和卧室隔了一堵墙。如果没有神龛墙,就会宽敞许多。

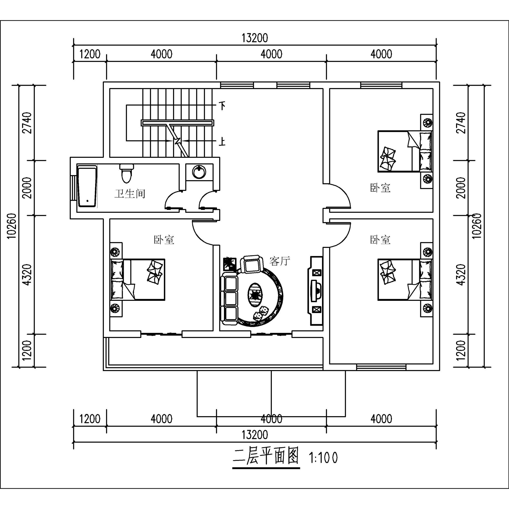
二楼有三个卧室,和一层不同的是,没有了神龛墙,上厕所方便了很多。客厅的位置连着阳台,开窗通风,舒服极了。客厅的位置,国外叫做起居室,在农村就没那么多讲究了,实用就好,看书喝茶都可以。

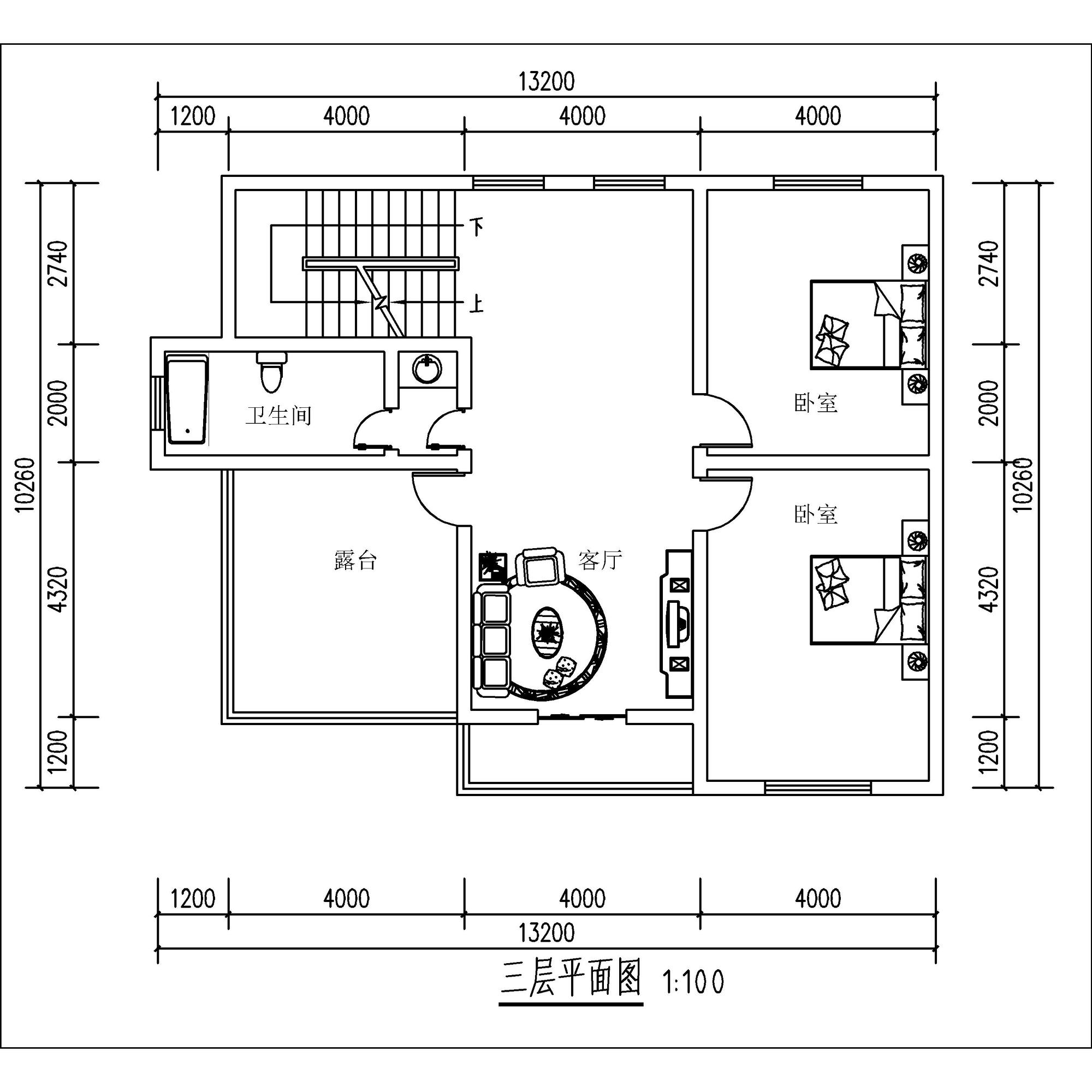
三层,有两间大卧室,一个卫生间。还有大露台,这个客厅就比二层的在实际功能上感觉更像个客厅了。实际上,一层和二层共4个卧室,一层老人住 ,二层年轻的父母住一间,两个孩子各住一间,三层的两个卧室就可以改造成书房或健身活动室了。

是不是更有生活气息,感觉更低调又实用?