在农村建房,大家都希望简单大气的款式,现代的设计,在农村也是越来越流行了,以前村里到处都是欧式风格的设计,现在回村看看,已经有很多家都建起现代风格别墅,别说,和电视剧里的那些大别墅一样的好看。

今天轩鼎小编推荐一套现代="://www.lemeizhai.com/search.asp?SearchType=Software&imageField.x=0&imageField.y=0&SearchKey=%CF%D6%B4%FA" target="_self" title="现代别墅设计">三层别墅房屋设计图,为家人提供更加舒适的居住体验;宽敞的大客厅设计,不管是招待宾客还是亲朋聚会,都是非常的便捷有面子的;带有套卧的设计,进一步提升居住的舒适度;全景落地窗,室内采光通风效果都很好。

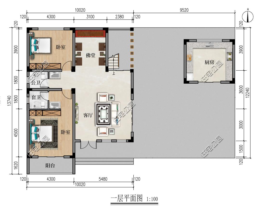
一层设计了主副房之分,厨房在副房,让室内保持良好的室内环境,油烟不会进入到室内。客厅面积设计的也是非常的宽敞、双面开窗且是全景落地窗,室内的采光通风性那是非常好的。西南一间套卧,带有独立卫生间、私人阳台,让老人居住进来,有舒适的环境。

二层起居室也是面积宽敞,直接连通阳台区域和露台,推开门就能感受到室外温暖的阳光。西南侧的卧室依旧延续一层的布局,舒适且实用。北侧1间茶室,和家人或者朋友品一壶茶,欣赏外面风景,生活惬意美哉!

三层依旧是西侧2间卧室,满足一家人基本的生活居住需求。东侧起居室和棋牌室,给每位家人提供最舒适的居住环境。
