
乡村现代二层别墅,外观造型上美观、大方,简洁,内部的布局合理舒适。外观上也采用了真石漆、文化石相互搭配,有着现代设计的时尚感,高级感。内部方案布局客餐区一体化设计、动静分区等,满足家人一切需求。

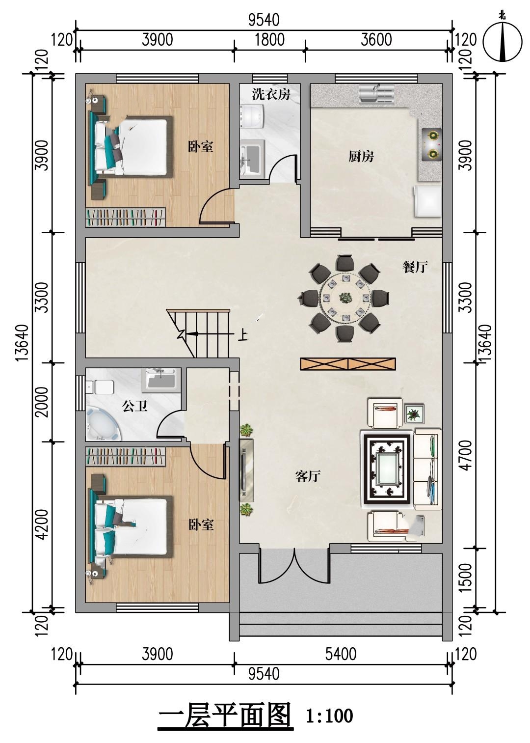
一层进入室内便是客厅的设计,属于客餐区一体化,做了隔断式的设计,让入户有缓过度的作用,南北通透的户型设计,采光通风效果都是极佳的。一楼设计了2间卧室,南侧的卧室采光通风性较好,北侧的卧室更显安静。专门设计1间洗衣房,家人的衣物也能及时地换洗,卫生间和洗衣间的分离式设计,干净卫生整洁。小编认为,洗衣房的位置不用的话,当个杂物间也是不错的选择。

二楼是一家人的居住活动空间,主卧带有独立卫生间,居住舒适度提升。1间书房,大人办公、看书,小朋友读书学习、上网课更方便。起居室连通阳台区域,进一步拓展了家人的活动空间,亲子生活更加丰富。

顶层为大露台花园设计,面积宽敞,顶层的设计,相信是很多人都喜欢的吧,不仅可以在上面进行娱乐活动,也可以晒农作物,宽敞的很。
