随着多孩家庭越来越多,农村建洋楼也会成为常态,三层的房子以后会很常见的,多孩家庭最适合三层的农村别墅。今天给大家推荐安徽吕总私人订制的="://www.lemeizhai.com/Picture.asp?PicClassID=91" target="_self">三层农村自建别墅设计图,这样的房子以后我们大多数人会拥有的,这套别墅是砖混结构现代简洁的外表非常漂亮,这样的房子住着不怕孩子多
效果图:



别墅层数: 三层
占地面积:138㎡
开 间:12.9m
进 深:10.7m
建筑占地:12.9m×10.7m
建筑面积:362㎡
主体造价:54.0~59.0万
建筑结构:砖混结构
效果图:

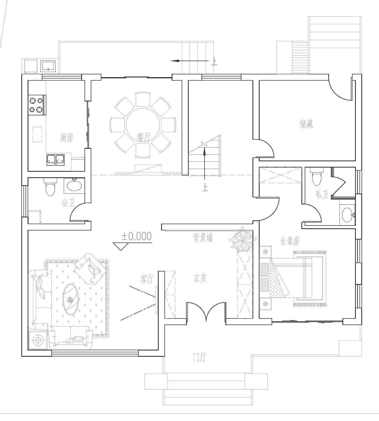
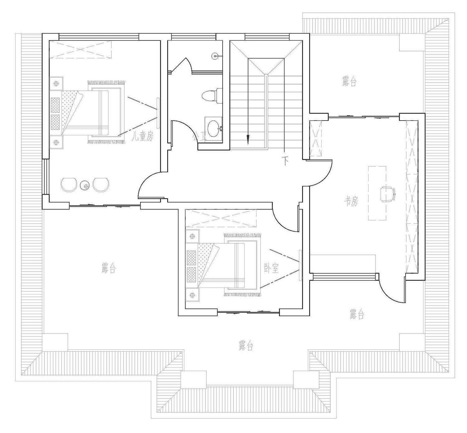
主体设计:

客厅、餐厅、厨房、卧室、公卫、阳台、露台。

。

转载请注明出自轩鼎自建房:://www.lemeizhai.com/