农村建别墅,我建议建一栋二层的欧式别墅,就如今天这款精美的="://www.lemeizhai.com/Picture.asp?PicClassID=88" target="_self">二层农村别墅设计,这套别墅精美漂亮,外表看起来温暖舒适,宅基地大的朋友适合这样的别墅,住在里面心情肯定不错。露台护栏都不少经济实用主体造价:37.0~42.0万,从外形看这房子就非常休闲舒适,采光好这房子住着也舒服。
效果图:

别墅层数: 二层
别墅风格: 欧式
占地面积:157㎡
开 间:15m
进 深:10.5m
建筑占地:15m×10.5m
建筑面积:286㎡
主体造价:37.0~42.0万
建筑结构:砖混结构
效果图:



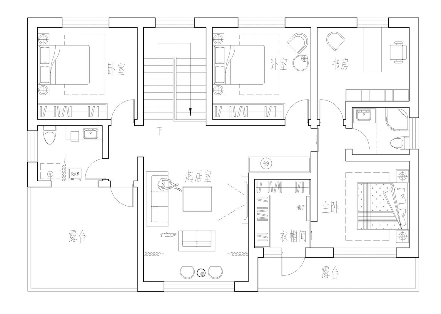
主体设计:

客厅、餐厅、厨房、卧室、公卫、阳台、起居室、衣帽间、书房、露台。

。
转载请注明出自轩鼎自建房:://www.lemeizhai.com/