今天给大家推荐的是山东农村吴先生定制的一款欧式二层农村自建别墅,这套别墅看起来非常好看,下面是别墅实际的样子,一层是文化石,二层喷涂的是真石漆,别墅造价实惠建造的住体价格不超过50万,,立柱是水泥立柱价格实惠,现在的样子是还没完全修缮的,完全体如效果图所示。

效果图:

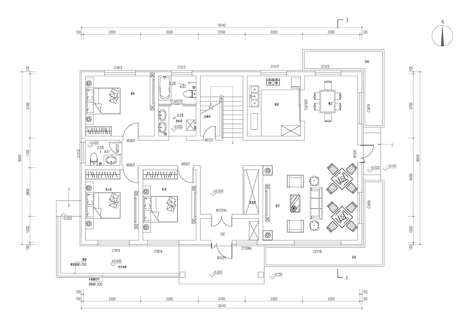
别墅层数: 二层
占地面积:159㎡
开 间:16.1m
进 深:9.9m
建筑占地:16.1m×9.9m
建筑面积:320㎡
主体造价:33.4~38.4万
建筑结构:砖混结构
效果图:



主体设计:

客厅、餐厅、厨房、卧室、公卫、阳台、露台。

。
转载请注明出自轩鼎自建房:://www.lemeizhai.com/