衣食住行是老百姓的刚需,农村建别墅的火热也是有依据的,随着老房子的老化,建新房成了大多数人的需求,农村建别墅实用性才是关键,外表并不是那么重要。今天给大家推荐一款实用性和外观兼具的="://www.lemeizhai.com/Picture.asp?PicClassID=88" target="_self">二层农村自建别墅设计,这款别墅是现代风格的魅力十足,造价最高80万左右,别墅的室内布局非常实用,不信你就看看室内布局吧。

效果图:

别墅层数: 二层
别墅风格: 现代
占地面积:279㎡
开 间:21.5m
进 深:13m
建筑占地:21.5m×13m
建筑面积:501㎡
主体造价:75.1~80.1万
建筑结构:砖混结构
效果图:



主体设计:

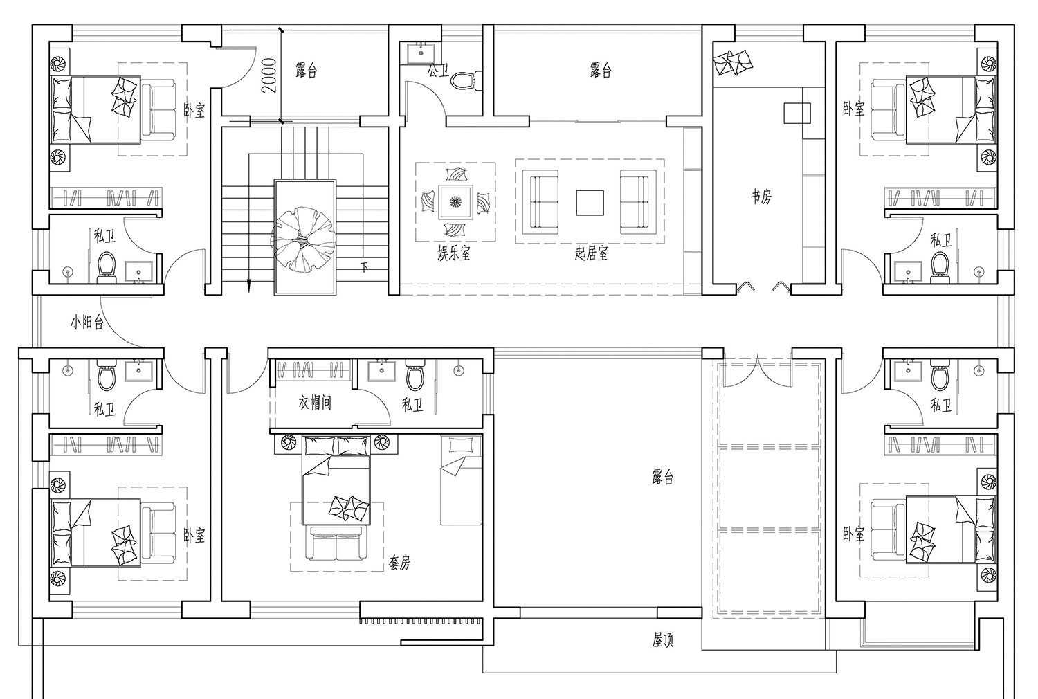
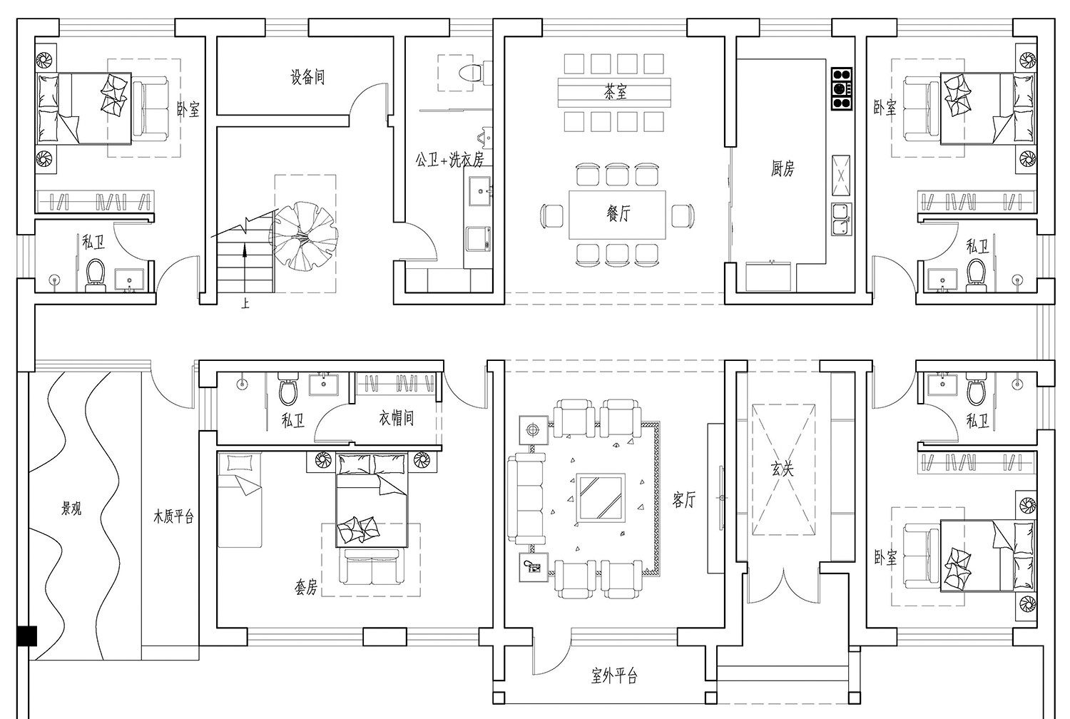
客厅、餐厅、厨房、卧室、公卫、阳台、起居室、衣帽间、书房、露台。

。
转载请注明出自轩鼎自建房:://www.lemeizhai.com/