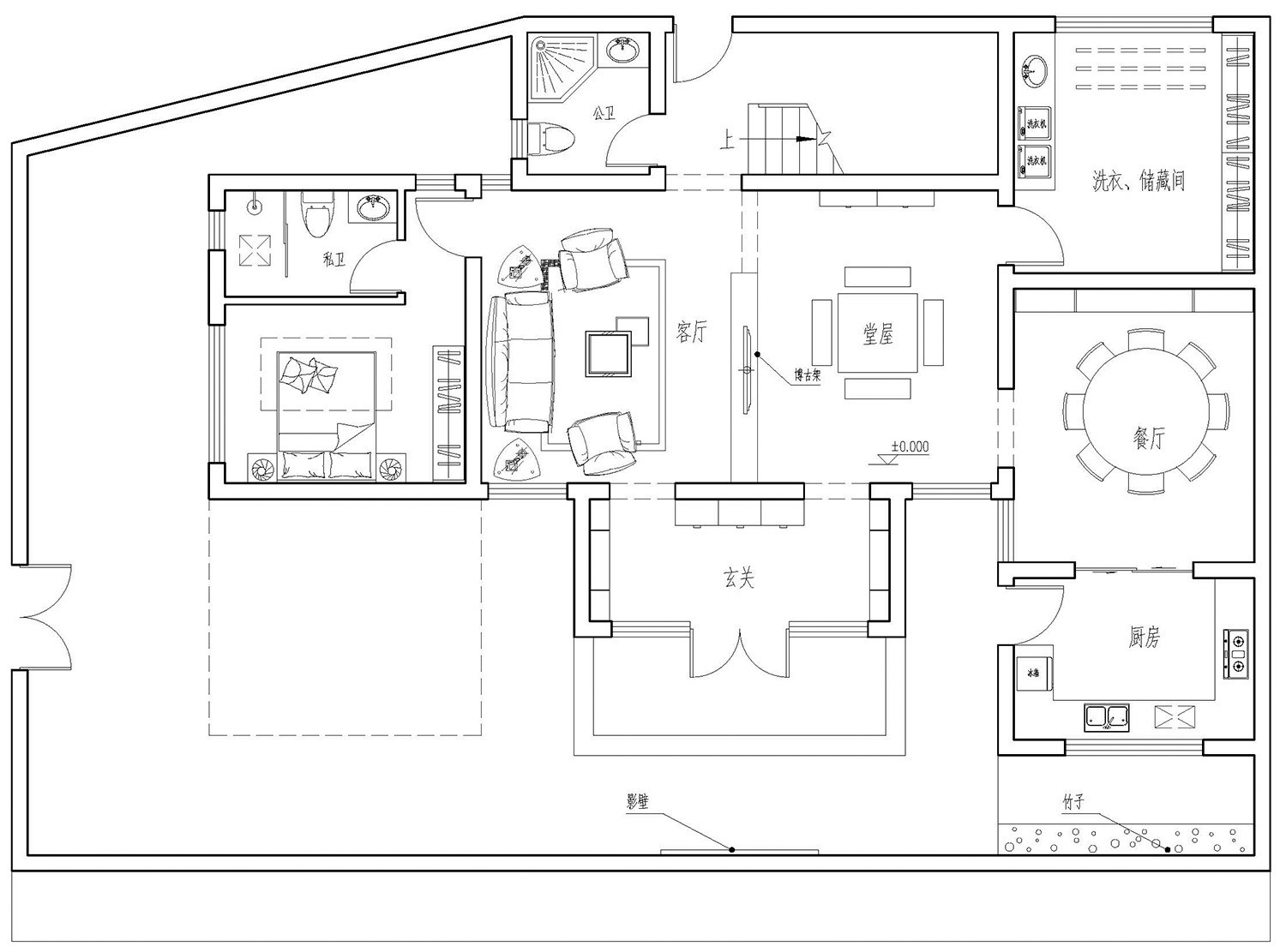
农村建什么样的别墅才不会浪费宝贵的土地资源呢?建新中式风格的别墅就不会,今天这款新中式="://www.lemeizhai.com/Picture.asp?PicClassID=91" target="_self">三层自建别墅设计图推荐给大家,大别墅住着才舒服,这套别墅看起来很霸气,洁白的墙体也很漂亮,而且室内布局很宽敞,有堂屋,大餐厅,大的洗衣房,总之都很实用,这套别墅最高造价不超过60万。
效果图:

别墅层数: 三层
别墅风格: 中式
占地面积:178㎡
开 间:15.9m
进 深:11.2m
建筑占地:15.9m×11.2m
建筑面积:368㎡
主体造价:51.0~56.0万
建筑结构:砖混结构
效果图:




主体设计:

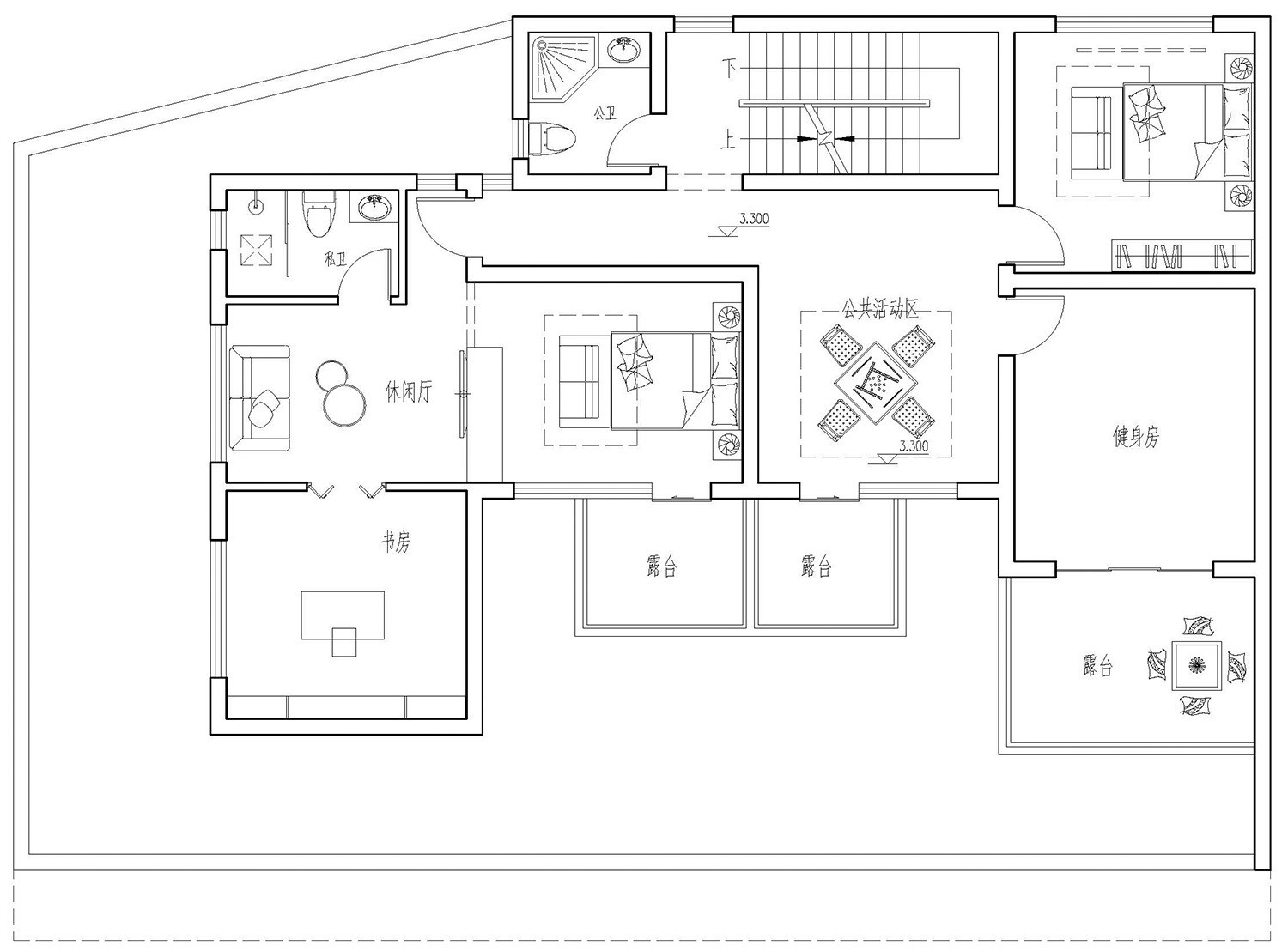
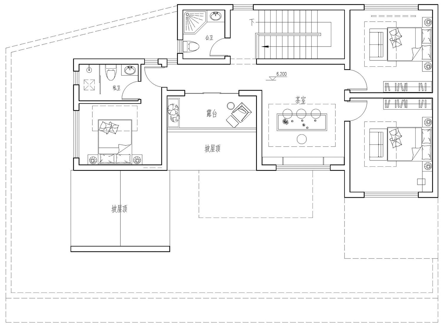
客厅、餐厅、厨房、卧室、公卫、阳台、起居室、衣帽间、书房、露台。

。

转载请注明出自轩鼎自建房:://www.lemeizhai.com/