22年就要结束了,新的一年来了!23年建别墅就选择现代风格的="://www.lemeizhai.com/Picture.asp?PicClassID=88" target="_self">二层农村自建别墅,现代风格时尚漂亮,年轻人建房就应该选择实惠时尚的。就跟今天介绍的现代风格别墅一样,白墙灰瓦有种新中式别墅的样子,这款别墅是现代和新中式结合的产物,主体造价:35.0~40.0万左右,有挑空客厅,房间不少
效果图:

别墅层数: 二层
别墅风格: 现代
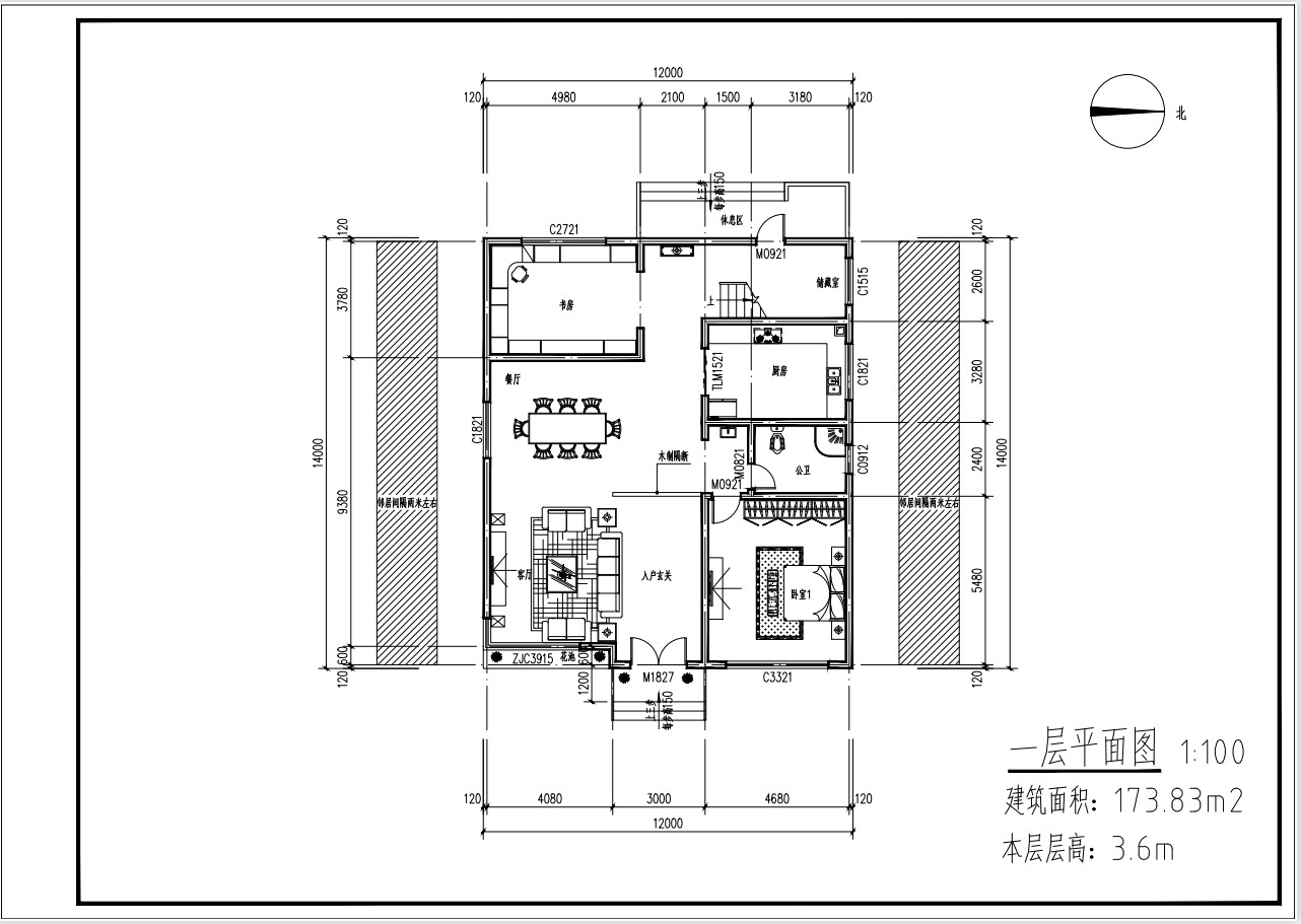
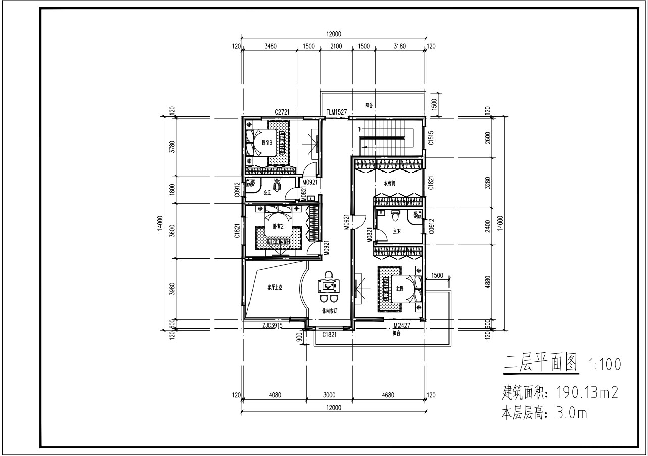
占地面积:173㎡
开 间:12m
进 深:14m
建筑占地:12m×14m
建筑面积:363.96㎡
主体造价:35.0~40.0万
建筑结构:砖混结构
效果图:



主体设计:


客厅、餐厅、厨房、卧室、公卫、阳台、起居室、衣帽间、书房、露台。
。
转载请注明出自轩鼎自建房:://www.lemeizhai.com/