现在的农村生活越过越好,家家户户建别墅,我们可以选择的别墅风格也愈加丰富,但很多人喜欢中式农村自建别墅,于是把新中式当做自己建房第一选择。今天就分享一套="://www.lemeizhai.com/search.asp?SearchType=Software&imageField.x=57&imageField.y=21&SearchKey=%D0%C2%D6%D0%CA%BD" target="_self">新中式别墅设计给大家。新中式的三层户型,这种户型在新农村很流行,其古典的气质,低调的配色,以及整体的格调,很端庄耐看,在农村永远不会过时,

效果图:

别墅层数: 三层
别墅风格: 中式
占地面积:142㎡
开 间:13.1m
进 深:10.9m
建筑占地:13.1m×10.9m
建筑面积:358㎡
主体造价:52.2~57.2万
建筑结构:框架结构
效果图:


主体设计:

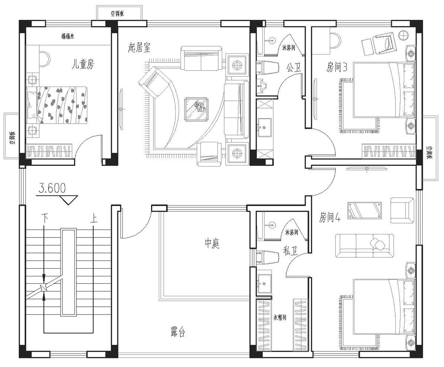
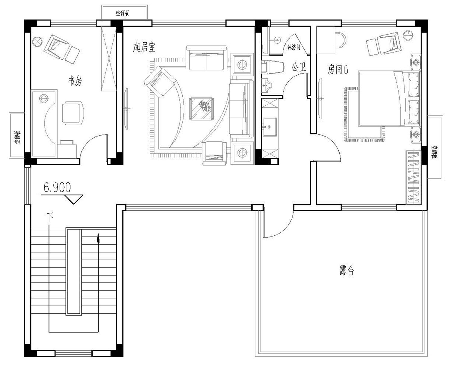
客厅、餐厅、厨房、卧室、公卫、阳台、露台。

。

转载请注明出自轩鼎自建房:://www.lemeizhai.com/