资金20万左右,赠您二层100㎡农村自建别墅设计图,全套别墅施工效果图全新呈现。现在农村自建房很流行,不过很多在建房上缺乏专业知识和设计理念,只能四处模仿别人家的户型,结果建造的房子不能称心如意,不仅浪费了存款,更主要是浪费了时间和精力。今天小编给大家分享1款20万左右二层100㎡农村自建别墅设计图,是经过精心设计的,经济实用,一起来看看。

基本信息:
开间进深:10m×10m
占地面积:96㎡
建筑面积:175㎡
结构形式:砖混结构
参考造价:20万元
这款户型设计独特,有多个落地窗设计,还有高低错落的露台,拱形门廊精致大方,一楼室内采用错层设计,格局分明。本栋别墅最大的特点就是视角广阔的落地窗,其独特的栅栏充满艺术气息。
功能设计
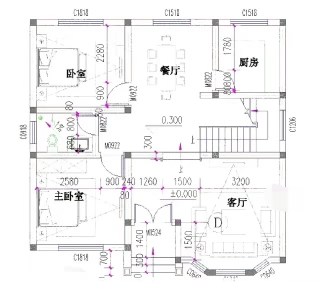
一层平面图

一层: 厨房、餐厅、客厅、公共卫生间、主卧室、次卧室
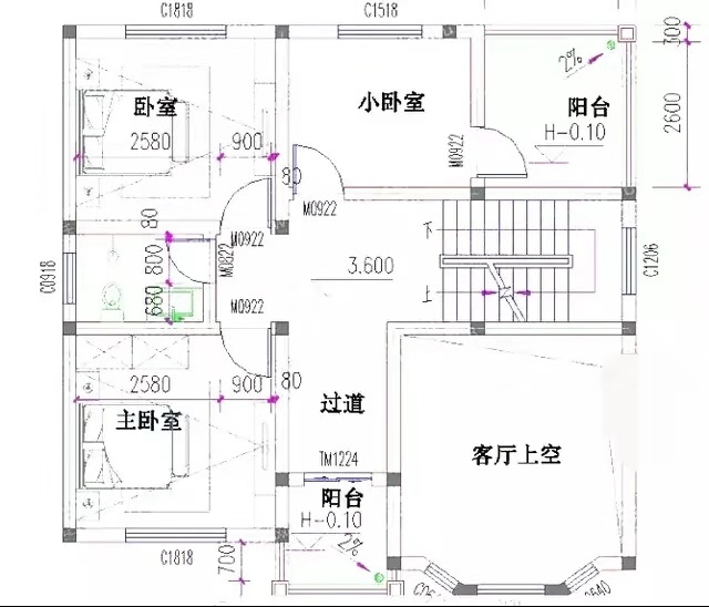
二层平面图

二层: 过道带露台、公共卫生间、主卧室、次卧室、小卧室(带阳台)
错层:露台花园