在农村建房我们大多数都希望能建一套实用性好价格又便宜的好房子,但是我们未必能够如愿,很可能出现这样的情况,房子建好后才发现不仅不实用而且造价高昂,我们不仅要问了怎样才能建一套造价不高实用性好的房子,那么今天我来给大家介绍一套质美价廉的好房子。
如图下所示:

这款别墅开间10.2米,进深12.2米,是一款经典户型别墅,农村大多数都是这种户型,占地125平方米,占地不大,建筑面积207平方米,重点来了,这款别墅的造价只要18万左右,内部含有5卧室、2厅、1厨、4卫还带一露台!这样的组合,建房早的读者请不要后悔。

一层平面图:玄关、客厅、2卧室、主卫、公卫、厨房、餐厅。
进门处的玄关不仅起到一个过渡的作用,还很有实用性,摆放鞋子,大衣还能存放雨具,右侧的房屋可以设为老年房现在的年轻人都不常住农村,老人一人在家还是尽量让他们过的轻松点,少爬点楼梯,卫生间设有屋内,冬季出屋上厕所也很容易受寒,另一间次卧,如果家中人口不是很多,也可以用作娱乐场所,楼梯下面的空间除了可以设置成洗衣房、储藏间等,还可以摆放山水字画用来做书房。

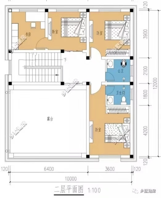
二层平面图:3卧室、书房、主卫、公卫、露台。
别急别急,为了让大家有个更直观的对比,也为了打破效果图实景图不符的传言,实景图奉上:

在我看来, 实景图与效果图完全没有不符,甚至比效果图更美,更有地气,这是你想要的别墅吗?