大部分农村的劳动力差不多都去城市打工赚钱,有些人赚了钱想要在城市买房,但是在城里买房的亲戚跟我拉家常谈到了房子的时候对我抱怨到:都说城里买房好买房好,可真买好了房原本挣得钱就花了不少,我每月工资5600可房贷每月要还三千块钱这还不算水电费其他费呢!唉算了不说了,早知当初还不如回农村建房没有房贷多么轻松啊,二三十万就可以建造一栋农村房子。在我看来在农村建的房屋都不比城里差,有的比城里的独栋别墅都很好看。现在我给大家介绍一下我们身边的真实案例,安徽一位小伙在城市打工赚钱回家花20万建造了二层小洋楼。先来看看设计的效果,二层坡屋顶,还带小露台,平时可以种点花草,添加生活乐趣。只建造二层,面积不大,不浪费。花二十多万可以建造的好看实用。


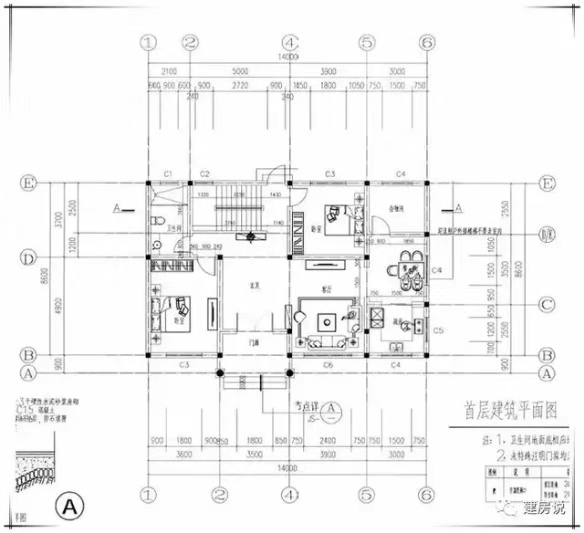
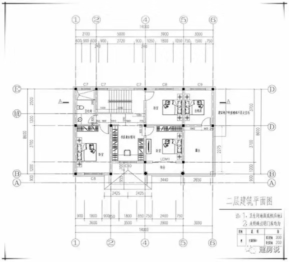
这款户型的占地尺寸:面宽14米x进深8.6米;占地面积:121.9平方;建筑总面积/总层高:224.2平米(不含入户平台、阳台、露台)/总高8.4米,屋檐口高6.4米。


这是房子的室内布局,总共设有7个卧室,满足一家人居住,其它功能设施都设有。下面来看看建好的实景图,比效果图还要漂亮。


二十万建造这个样子怎么样?外墙装饰低调简约,比周围的房子没观多了,这二十多万在城市最多买得到一个房间。在农村可以建造一栋二层小洋楼,接下来装修的美观大气点就可以搬进去居住了。