现在的农村和以前相比面貌发生了翻天覆地的改变,许多漂亮大气的农村小别墅拔地而起。虽然现在农村的生活水平有了很大提升,但在建房方面,还是需要慎重一些,奢华复杂的户型对于普通老百姓来说,一方面建房成本太高,再一个就是好多地方不实用,空间利用率低造成浪费,并且还加重了打扫卫生的负担。简约又时尚大气的户型才是最受农村欢迎的户型,今天小编就来为大家介绍一款20万以内10×12米简约大方农村二层别墅设计图纸(附全套施工图),一起来看看!



层数: 二层 结构形式: 砖混结构 主体造价: 16-18万万
开间:10.3米 进深:11.5米 占地面积:119.75平方米 总建筑面积:235.15平方米
户型点评:
这款别墅设计清新大方,运用了拱形联体通窗玻璃,方形的白色罗马柱,白色宝瓶栏杆,雕刻精细的山花,一层外立面采用复古的文化石装饰,二层淡黄色与之形成鲜明对比,橘色屋顶十分显眼,整个别墅的整体外观和局部细节处理恰到好处,属于简约大气的新农村别墅户型!


室内布局介绍
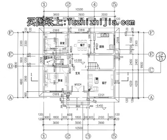
一层平面图
一 层: 走廊、玄关、客厅、卧室×2、餐厅、厨房、卫生间
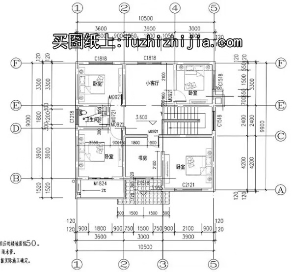
二层平面图
二 层: 过道、娱乐室、卫生间、卧室×4(其中一个卧室带独立阳台)
全套施工图包括:



建 筑 图: 建筑设计说明、工程做法表、一层平面图、二层平面图、屋顶平面图、正立面图、背立面图、左立面图、右立面图、1-1剖面图、楼梯大样图、各节点详图、门窗大样图、门窗表
结 构 图: 结构设计说明、基础平面布置图、基础大样图、二层梁结构图、二层板结构图、坡屋面梁结构图、坡面板结构图、楼梯结构配筋图、大样图
给排水图: 给排水设计说明、一层给排水平面图、二层给排水平面图、屋顶给排水平面图、厨卫给排水详图、给排水系统图
电 气 图: 电气设计说明、设备材料表、一层照明平面图、二层照明平面图、一层插座平面图、二层插座平面图、一层弱电平面图、二层弱电平面图、配电系统图、弱电系统图、配电干线系统图、屋顶防雷平面图、接地平面图、等电位联结做法