在农村人们特别喜欢建二层楼房,复式别墅的需求量极大,很多家庭觉得住平房住久了想换换口味,建一栋二层的别墅正符合需求,三层就过于浪费,一家人口最多也超不过六七口人。今天小编给大家分享2款二层简欧农村小别墅设计图,两套户型主体造价均在25万左右,下面一起来看看这2套小别墅设计图详情介绍。
【户型1】
户型1效果图
本套农村小别墅设计图开间9.34米,进深11.24米,占地面积105平方米左右,砖混结构,房屋总高度8.1米,主体造价25万左右。一层外墙采用深绿色小长方形瓷砖装饰,二层搭配纯白色真石漆,给人一种清爽的感觉,阳台和凸窗、拱形窗、坡屋顶的设计格外雅观,室内布局流畅。
户型1室内功能布局:

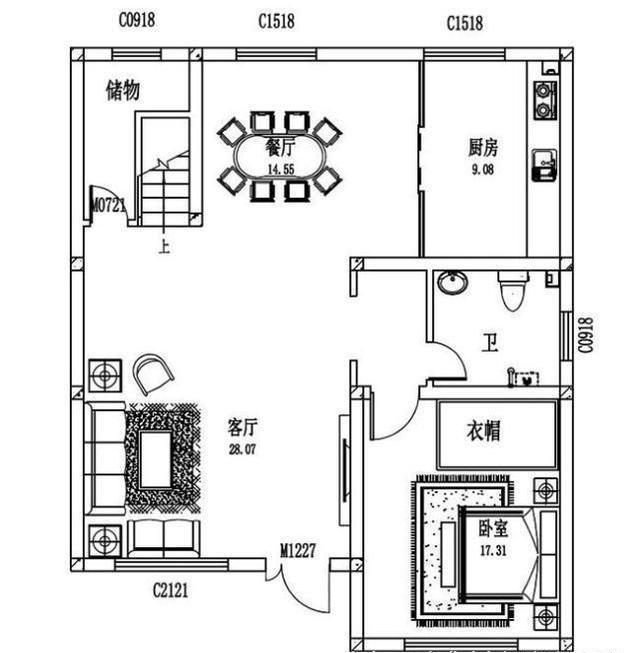
一层平面图

一层:客厅28.07㎡、厨房9.08㎡、餐厅14.55㎡、卧室17.31㎡(带衣帽间)、储物间、楼梯间、卫生间
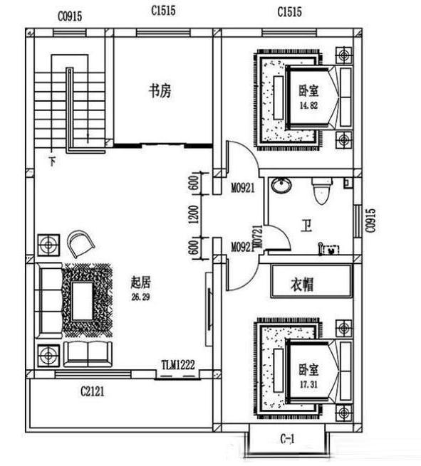
二层平面图

二层:起居室26.29㎡(带露台)、卧室17.31㎡(带衣帽间)、卧室14.82㎡、书房、卫生间
【户型2】

户型2效果图
本套农村小别墅设计图开间11.0米,进深10.0米,占地面积约110㎡,采用砖混结构,主体预算大概25万元。简洁大气的外观,复古而有韵味的文化石装饰,清新现代的黄色真石漆,还有鲜艳明亮的橘黄色坡屋顶,具有质感的精细雕刻山花,展现简欧建筑风格之美。
户型2室内功能布局:

一层平面图
一层:客厅、厨房、餐厅、卧室、卫生间、楼梯间

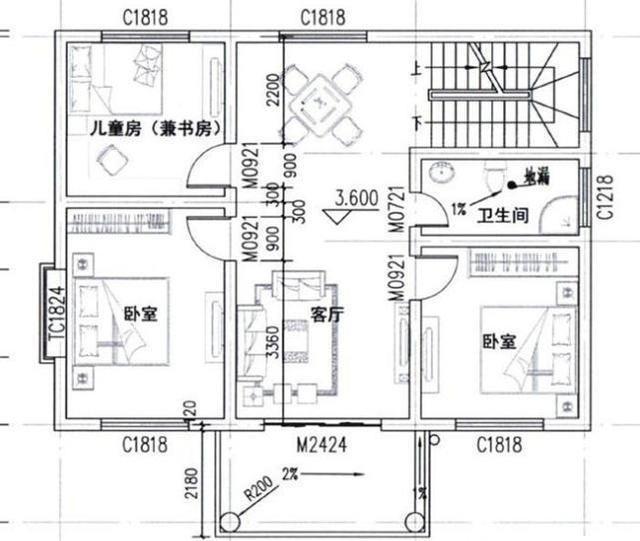
二层平面图
二层:客厅(带阳台)、卧室*2、儿童房兼书房、卫生间、休闲区