在农村房屋翻新重建有两个选择,一普通小平房,二自建小洋楼。有很多人在这两者之间犹豫不决,怕别墅贵承受不起 ,小平房又觉得太单调,现在很多农村地区都开始建别墅,有了钱就要让自己和家人过的好,30万就能有一套不错的别墅,比城里几百万的别墅还要实惠,30万大部分普通工薪家庭就能承受得起,下面小编给大家介绍这2款接地气的农村别墅,建了你肯定不后悔。
户型一

深色瓷砖和浅色真石漆的搭配,美观又耐脏,经济实用还无需花费太多精力围护,这可以称得上是外装的最佳方案,主体造价25万以内。


一些农村地区交通还不是非常方便,代步车出行成为必要,车库设置让农村生活更加现代化。二层设计了露台、起居室、娱乐室,大大丰富了农村生活。
户型二

这一款南北地区都可建造,外形简单大方,经典秀美。宅基地东西长11.1米,南北宽10.8米,占地面积116.38平方米,完全符合国家宅基地面积规定。造价在23——26万之间,也是多数家庭可以承担的起的。


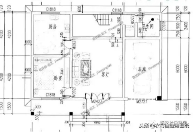
一层布局动静分区,西边为主要活动区域,右边为休息空间,公卫设计在两个卧室中间。二层设计4间卧室,满足日常居住需求。
看完这2套别墅,是不是发现农村建房其实没有想象的那么贵,将钱花在刀刃上,自建别墅不求最贵只求最对,过得舒适安稳才是农村自建房的真谛所在,钱没有挣完时候,人总有老的时候,建好一套别墅,给自己晚年一个美好的时光。