科技时代已经到来,许多人生活习惯发生了很大的变化,人口越来越多,城市越来越拥挤,住房也越来越紧张,人们想办法在有限的空间里将室内空间利用到最大。也可以发现楼层越来越高。人们的房子建的层数越来越多,今天我们来看一款四层的别墅。
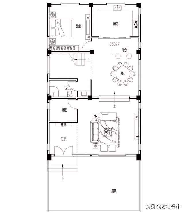
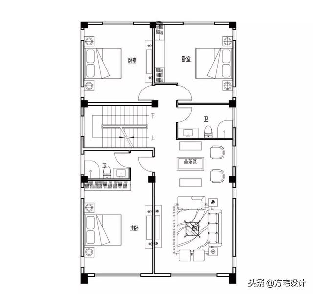
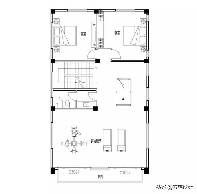
基本信息:
建筑面积:430㎡
建筑结构:框架结构
房屋尺寸:开间10.5米,进深15米
占地面积:160㎡
参考造价:50-70万(仅供参考根据各地人工费及建材价格波动,各地造价差距较大)
设计理念
新中式是传统中国文化与现代简约风格在时间长河里邂逅,以内敛沉稳的传统文化为出发点,融入现代设计语言,为现代空间注入凝练唯美的中国古典情韵。
效果展示



建筑的基调是柔和的灰点缀以柔和的白,局部点缀沉稳的木色——除了在材质上合乎中式的逻辑以外,干净、淡泊、平和是其精神上的主题。
运用现代空间设计和当代建筑,结合当地特色加以点缀,散发着东方风韵的建筑里,处处都埋下了现代设计的伏笔。
回归中式别墅,环境——营造“幽”的气氛,体现“冷”的追求,色彩——渲染“素”的意味,外部——提炼“墙”的形象,规划——表现“村”,内部——强调“院”的作用



